linkedin pixel
På G!
Först på Boneo
Säve, Göteborg

Gullringevägen 7A

Villa4 rok112 + 5403 m² tomt

Fakta

  • BoendetypVilla
  • Rum4 rok
  • Boyta112
  • UpplåtelseformFriköpt
  • Biarea5
  • Tomtarea403 m²
  • Byggnadsår1964

Beskrivning

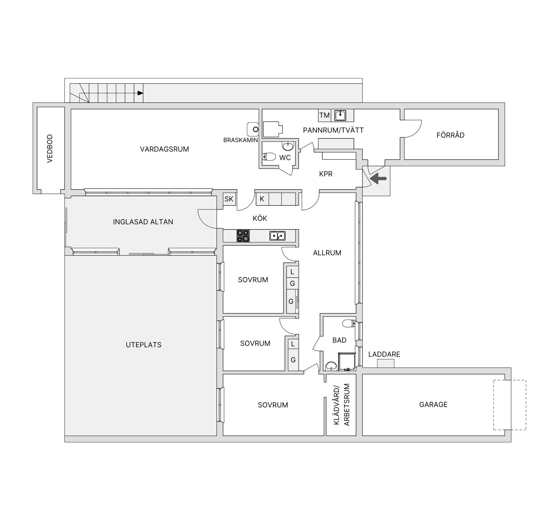
Nu kan vi erbjuda detta moderna och välplanerade gavelradhus med genomtänkta ytor och flera uteplatser. Här får du en trivsam boendemiljö där det är enkelt att kombinera vardagsliv med sociala stunder. På framsidan möts du av en stenlagd uppfart med plats för parkering med laddmöjlighet för elbil. Med sitt östläge finns här även möjlighet att ordna en liten sittgrupp för att njuta av morgonsolen. På baksidan väntar en insynsskyddad trädgård i västerläge med gräsmatta och utrymme för egna planteringar – en perfekt plats att njuta av eftermiddags- och kvällssolen. Från både köket nås det inglasade uterummet som förlänger säsongen och ger extra plats för umgänge. Invändigt välkomnas du av en modern och stilren bostad. Det rymliga vardagsrummet rymmer både större matsalsbord och en generös soffgrupp, och här finns även den stämningsfulla braskaminen som förhöjer atmosfären under årets kallare månader. Köket är funktionellt utformat med moderna vitvaror och bra arbetsytor som gör matlagningen smidig. Huset erbjuder tre sovrum, ett badrum med golvvärme, en gästtoalett i hallen samt en separat tvättstuga. Vidare in från tvättstugan finns ett stort förråd som ger gott om extra förvaringsutrymme.

De installerade solpanelerna bidrar till lägre driftkostnader och en mer hållbar energiförbrukning – ett smart val för både plånbok och miljö. Till bostaden hör även ett garage som ger både bekvämlighet och trygghet.

I Säve bor du med närhet till naturen och dess fina promenadstråk, cykelvägar och grönområden, samtidigt som Göteborgs stadsliv bara ligger en kort bilresa bort. Här finns också skola, förskolor och goda kommunikationer som underlättar vardagen.

Kontakta mäklaren för mer information eller boka förhandsvisning!

Visningar

Mäklare

Louise Wellrath
Ansvarig mäklare
HusmanHagberg Göteborg Hisingen
Kvarnpirsgatan 8, Göteborg
Agency
Agency
banner

Planritning

Tjänster

Bolån

Räkna på bolån för Gullringevägen 7A
nordeaAlltid personlig ränta på ditt bolånRäkna här
Jämför bolån från olika banker!
lanekollPersonlig hjälp hela vägen hem!Räkna direkt!
Bostaden du tittar på matchar med 172 personer i BoneoMatch™

Hur många vill köpa din bostad?

Vi matchar din bostad mot över 500 000 köpsugna personer som går på visningar just nu.

Loading...