linkedin pixel
Fullskärm
Fullskärm
Villa7 rok155 + 1551 392 m² tomt

Fakta om bostaden

  • Pris495 000 kr
  • BoendetypVilla
  • Antal rum7 rok
  • Boyta155
  • UpplåtelseformFriköpt
  • Biarea155
  • Tomtarea1 392 m²
  • Kvadratmeterpris (kr/m²) 3 194 kr/m²
  • Byggnadsår1909
  • Dagar på Boneo6 dagar

Beskrivning

Ett stort hus för den händige då en del renoveringar krävs!

Välkommen till Ållebergsvägen 6 i Vartofta och en F.d. lanthandel med stor lokal i markplan som passar både för hobby- eller näringsverksamhet. Under dom senaste åren har lokalen nyttjats som loppisbutik, därav säljs fastigheten med diverse lösöre så som möbler och andra små attiraljer.

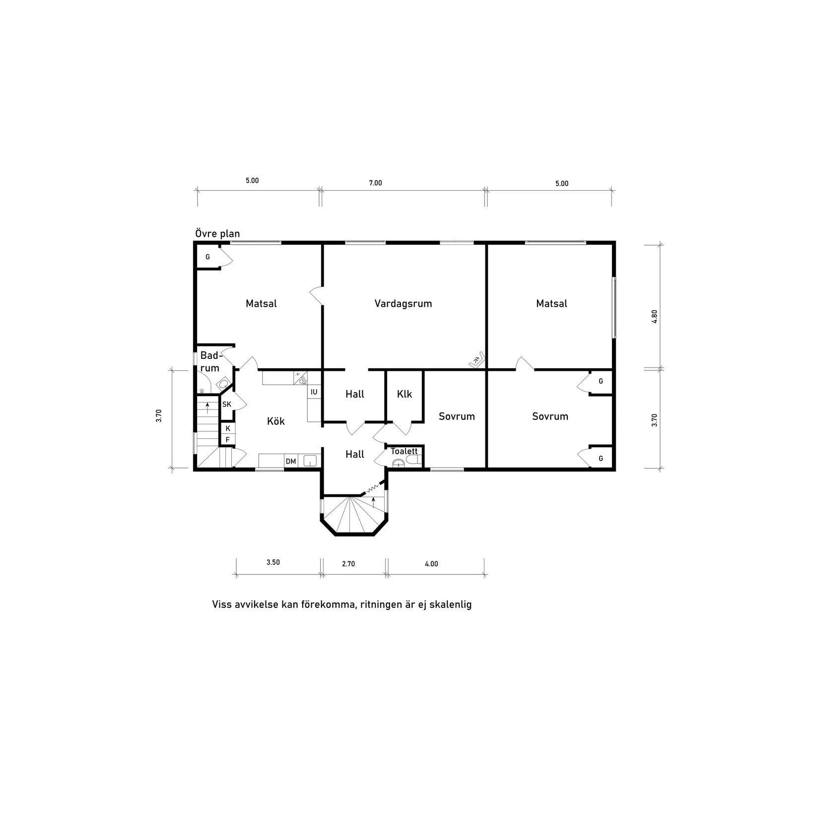
På ovanplanet finns en rymlig lägenhet om 5 rum och kök. Lägenheten erbjuder ett kök med matplats intill och stort vardagsrum med matsal. Vidare finns två sovrum, ett ej fungerande duschrum, en toalett och en trivsam entréhall.

Utvändigt finns en stor byggnad med garage och rymliga förrådsutrymmen. Trevlig trädgård med innergårdsliknande oas där det finns en vedeldad badtunna, trädäck, planteringar, damm m.m.

Fastigheten säljs med diverse lösöre och ett renoveringsbehov finns!

Det lilla samhället Vartofta ligger ca 10 km sydost om Falköping och här bor du med närhet till skola, fotbollsplan och lekpark. I Vartofta bor ca 550 personer och här finns bl.a. förskola, skola F-9 och fritidshem. Här finns också butiken Öppet 24/7.

Varmt välkommen på visning!

Visningar

Vartofta, Falköping

Ållebergsvägen 6

Villa7 rok155 + 1551 392 m² tomt

Mäklare

banner

Tjänster

Bolån

Räkna på bolån för Ållebergsvägen 6
nordeaAlltid personlig ränta på ditt bolånRäkna här
Jämför bolån från olika banker!
lanekollPersonlig hjälp hela vägen hem!Räkna direkt!

Hur många vill köpa din bostad?

Med BoneoMatch™ ser du hur många som letar efter en liknande bostad i ditt område.

Läs mer
Loading...
Vartofta, Falköping

Ållebergsvägen 6

Villa7 rok155 + 1551 392 m² tomt

Mäklare