linkedin pixel
Fullskärm
Fullskärm
externalLinkIconAlla bilder
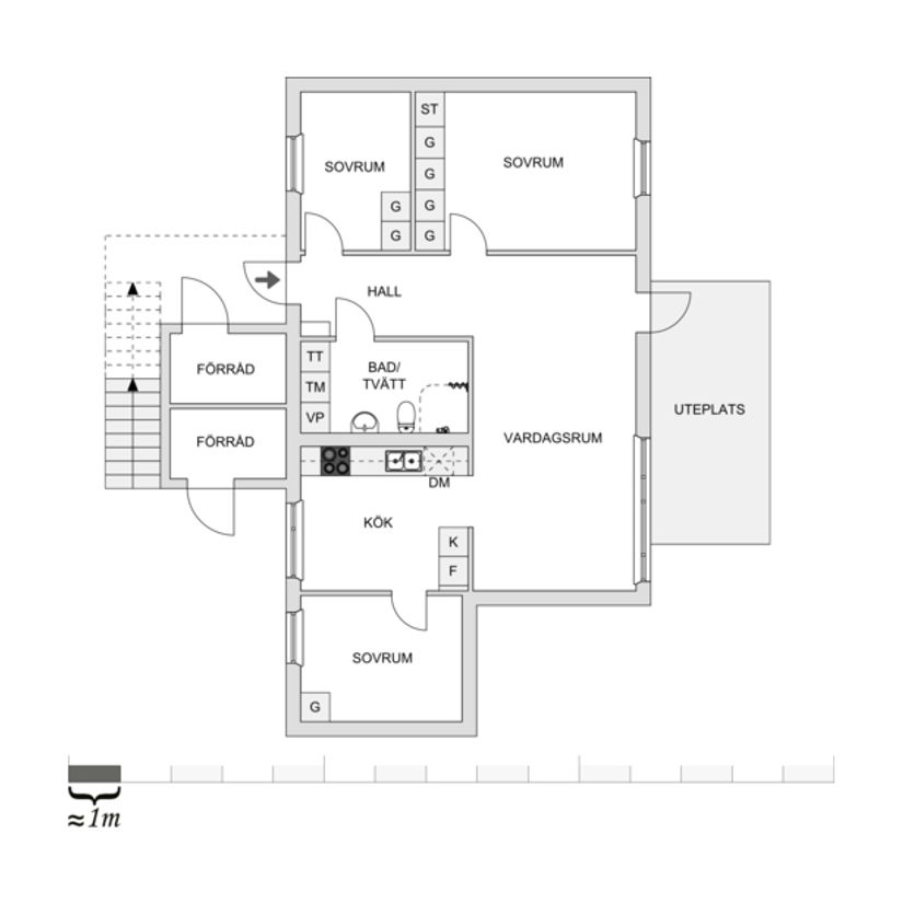
Lägenhet4 rok79

Fakta om bostaden

  • Pris2 095 000 kr
  • BoendetypLägenhet
  • Antal rum4 rok
  • Boyta79
  • UpplåtelseformBostadsrätt
  • Kvadratmeterpris (kr/m²) 26 519 kr/m²
  • Byggnadsår2016
  • Dagar på Boneojuli 2025
  • Våning 1 av 2
  • HissNej
  • Avgift till föreningen4 946 kr/mån

Beskrivning

Denna moderna lägenhet med sitt attraktiva läge i Erikstorp kommer att bli ditt nya drömhem. Med en uteplats i härligt söderläge erbjuder den perfekta platsen för avkoppling och njutning.

Med sina generösa 79 kvadratmeter och smarta planlösning är bostaden både stor och välplanerad. Här finns gott om utrymme för hela familjen att trivas och leva bekvämt. Den moderna utrustningen ger dig alla bekvämligheter du kan önska dig, och de naturnära omgivningarna ger dig möjlighet till en härlig kontakt med naturen samt närhet till en konstgjord liten sjö med badmöjligheter.

Lägenheten är belägen i barnvänligt läge, vilket gör den perfekt för barnfamiljer. Här kan barnen leka fritt och säkert i den lugna omgivningen.

På bottenplan och med ett högt läge erbjuder bostaden en fantastisk utsikt över området. Du kan njuta av soliga dagar på den generösa altanen eller ta en kopp kaffe på den stensatta entrén där morgonsolen värmer skönt.

Förutom allt detta har du även tillgång till en parkeringsplats samt ett separat förråd. Dessutom finns det ett gemensamt soprum där du kan sortera dina sopor på ett miljövänligt sätt.

Missa inte chansen att förvärva denna fantastiska bostad i Bollebygd. Kontakta mäklaren idag för mer information och upptäck allt detta hem har att erbjuda.
Bollebygd - Erikstorp, Bollebygd

Rans floges väg 21

Lägenhet4 rok79

Mäklare

Tjänster

Bolån

Räkna på bolån för Rans floges väg 21
nordeaAlltid personlig ränta på ditt bolånRäkna här
Jämför bolån från olika banker!
lanekollPersonlig hjälp hela vägen hem!Räkna direkt!

Hur många vill köpa din bostad?

Med BoneoMatch™ ser du hur många som letar efter en liknande bostad i ditt område.

Läs mer
Loading...
Bollebygd - Erikstorp, Bollebygd

Rans floges väg 21

Lägenhet4 rok79

Mäklare