linkedin pixel
Tillbaka till sökresultatet
Fullskärm
Fullskärm
Tillbaka till sökresultatet
externalLinkIconAlla bilder
Villa6 rok137 + 1027 756 m² tomt

Fakta om bostaden

  • Pris3 795 000 kr
  • BoendetypVilla
  • Antal rum6 rok
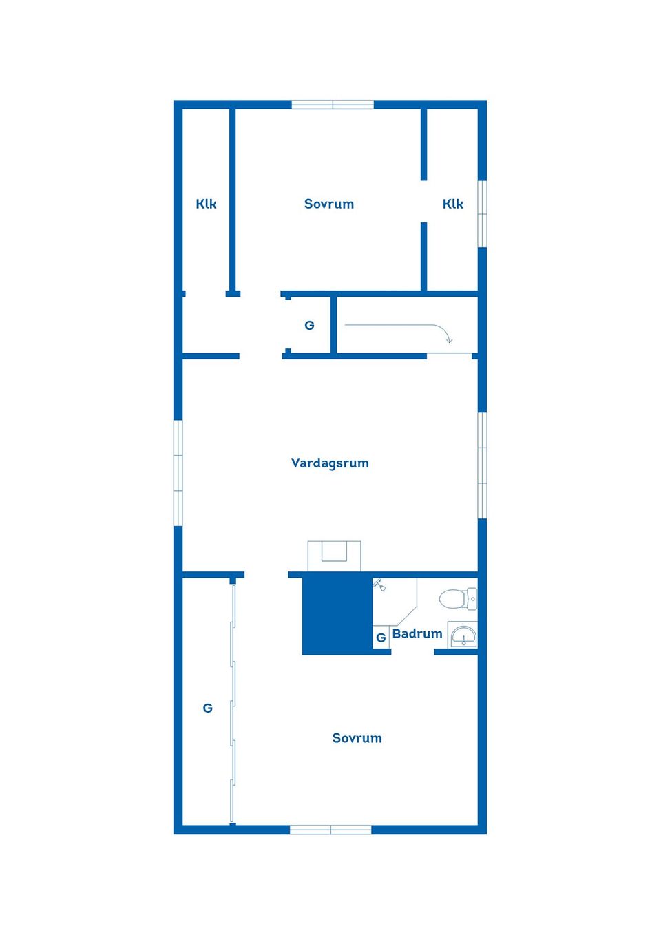
  • Boyta137
  • UpplåtelseformFriköpt
  • Biarea10
  • Tomtarea27 756 m²
  • Kvadratmeterpris (kr/m²) 27 701 kr/m²
  • Byggnadsår1920
  • Dagar på Boneo2 dagar

Beskrivning

Välkommen till ett livsstilsboende utöver det vanliga – en charmig lantbruksenhet i hjärtat av Dalarna, där drömmen om ett friare liv på landet blir verklighet. Här finns möjligheten att skapa din egen hästgård, jaga på egen mark, meka i ditt eget garage eller bara njuta av lugnet och friheten i den vackra naturen.

På den stora tomten omges du av skog, ängar och frisk luft – perfekt för dig som söker ett aktivt liv med djur, jakt och naturen som granne. Här finns två generösa lador med mängder av utrymme för förvaring, maskiner eller verksamhet – och en lång uthuslänga med en inredd uthyrningslägenhet som ger goda möjligheter till extra inkomst eller generationsboende.

Det renoverade boningshuset bjuder på välplanerade utrymmen för hela familjen. Dessutom finns en charmig timrad stuga – idealiskt för gäster - eller varför inte som ateljé?

För dig med passion för fordon och verkstadsliv finns ett stort dubbelgarage med fjärrstyrda garageportar, samt ett extra isolerat garage med plats för två bilar – perfekt som varm verkstad året runt. Här kan du meka, bygga, förvara eller driva hobbyverksamhet utan att tumma på komforten.

Utomhusmiljön är en dröm i sig: en generös altan med vedeldad bastu, utespa, pool och ett taktäckt utekök gör sommarhalvåret till en fest – och vinterkvällarna till en njutning. Dessutom gör uterummet att sommaren blir längre!

Den rymliga tomten erbjuder dessutom ypperliga möjligheter för hagar och djurhållning för dig som vill ha häst, får eller andra djur.

Och för jaktentusiasten? Här finns möjlighet till jakträtt – ett guldläge för dig som vill kombinera boendet med jaktupplevelser direkt utanför dörren.

Sammanfattningsvis är detta mer än bara en gård – det är en livsstil. En plats där arbete, fritid och passion möts i en harmonisk helhet. Välkommen hem till Dalarna och till ett liv med naturen, friheten och möjligheterna i fokus – välkommen till Insjön.

Visningar

Insjön, Leksand

Vintergatan 62

Villa6 rok137 + 1027 756 m² tomt

Mäklare

banner

Tjänster

Bolån

Räkna på bolån för Vintergatan 62
nordeaAlltid personlig ränta på ditt bolånRäkna här
Jämför bolån från olika banker!
lanekollPersonlig hjälp hela vägen hem!Räkna direkt!
Bostaden du tittar på matchar med 108 personer i BoneoMatch™

Hur många vill köpa din bostad?

Vi matchar din bostad mot över 500 000 köpsugna personer som går på visningar just nu.

Loading...
Insjön, Leksand

Vintergatan 62

Villa6 rok137 + 1027 756 m² tomt

Mäklare