linkedin pixel
Tillbaka till sökresultatet
externalLinkIconAlla bilder
Tollare, Nacka

Tollareslingan 12

Lägenhet3 rok85

Fakta om bostaden

  • Pris4 295 000 kr
  • BoendetypLägenhet
  • Antal rum3 rok
  • Boyta85
  • UpplåtelseformBostadsrätt
  • Kvadratmeterpris (kr/m²) 50 529 kr/m²
  • Byggnadsår2020
  • Dagar på Boneoapril 2025
  • Våning 1 av 10
  • HissJa
  • Avgift till föreningen6 277 kr/mån

Beskrivning

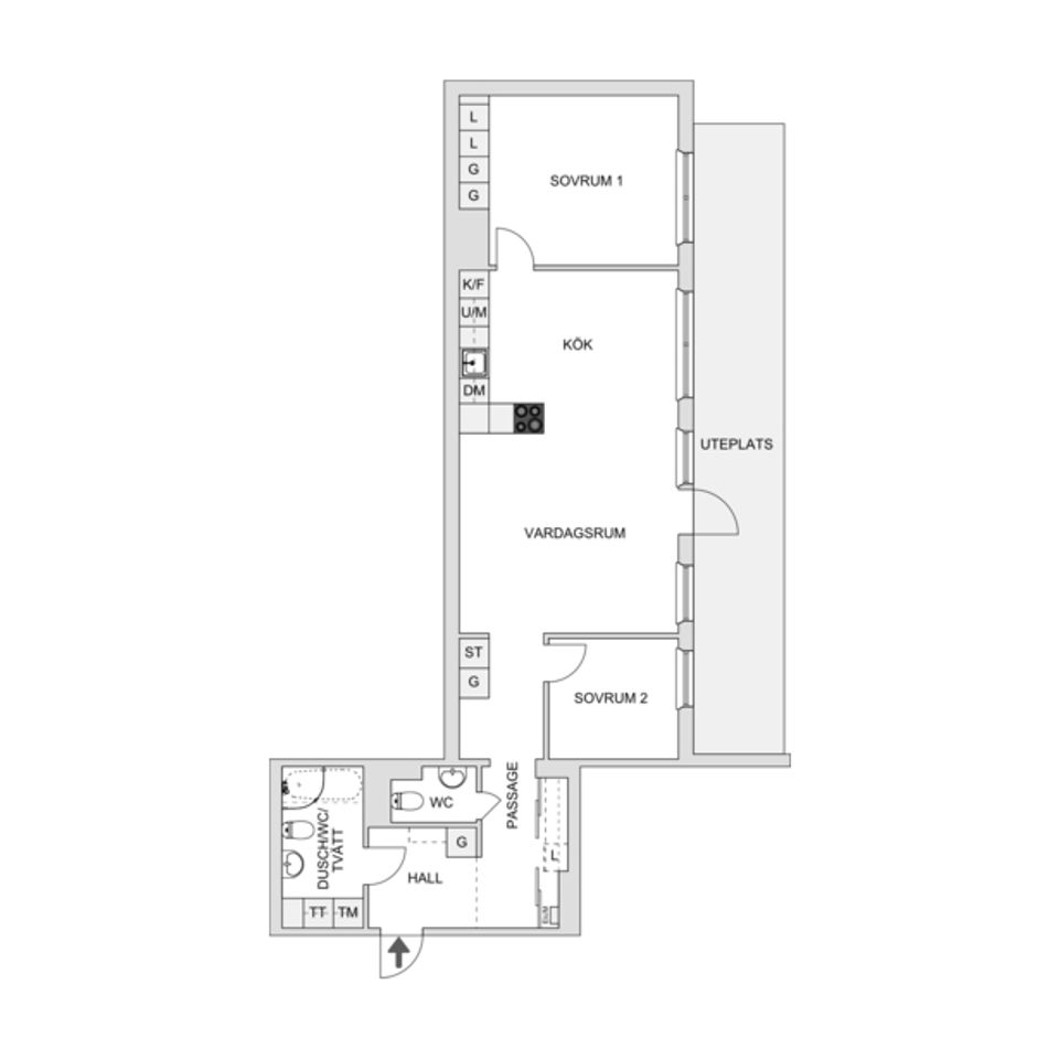
Drömmer du om ett hem som kombinerar stil, komfort och en magisk utsikt? Då är denna exklusiva trea om 85 kvm något för dig! Här erbjuds en genomtänkt planlösning med smakfulla materialval och en fantastisk uteplats i söderläge, där havet breder ut sig i horisonten.

Vid entrén möts du av en rymlig hall med mörkt klinkergolv, varm väggfärg och gott om förvaring. En platsbyggd arbetsplats gör vardagen smidig. Vidare in hittar du det eleganta Epoq-köket med valnötsluckor, grå-beigea överskåp, bänkskiva i marmor och toppmoderna vitvaror. Köket flyter samman med matplats och vardagsrum i en öppen och social planlösning, där stora fönster släpper in rikligt med ljus. En charmig kamin och genomgående vitlaserad ekparkett bidrar till trivseln. Härifrån nås den generösa uteplatsen – en perfekt plats för avkoppling och middagar i solnedgången. På uteplatsen är det tillåtet att grilla med gasol.

Två rymliga sovrum med harmoniska väggfärger och fint ljusinsläpp skapar en lugn och avkopplande miljö. Badrummet är utrustat med tvättmaskin och torktumlare, och för extra bekvämlighet finns även en gäst-wc.

Det här är en bostad som bjuder in till livskvalitet och elegans. Välkommen på visning – ditt nya drömboende väntar!

Visningar

Lägenhet3 rok85

Mäklare

banner

Tjänster

Bolån

Räkna på bolån för Tollareslingan 12
nordeaAlltid personlig ränta på ditt bolånRäkna här
Jämför bolån från olika banker!
lanekollPersonlig hjälp hela vägen hem!Räkna direkt!
Bostaden du tittar på matchar med 103 personer i BoneoMatch™

Hur många vill köpa din bostad?

Vi matchar din bostad mot över 500 000 köpsugna personer som går på visningar just nu.

Loading...