linkedin pixel
På G!
Först på Boneo
Södermalm Katarina, Stockholm

Götgatan 116

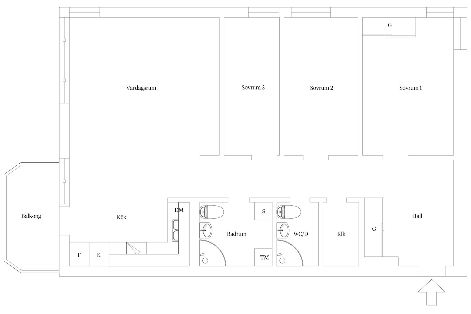
Lägenhet4 rok93

Fakta

  • BoendetypLägenhet
  • Rum4 rok
  • Boyta93
  • UpplåtelseformBostadsrätt
  • Byggnadsår1983
  • Våning 5 av 6
  • HissJa
  • Månadsavgift4 583 kr

Beskrivning

Denna underbara hörnlägenhet, högt belägen i huset, erbjuder en fantastisk västvänd balkong där eftermiddag- och kvällssolen får rummet att glöda. Med sina 93 kvm är lägenheten en perfekt kombination av stil och funktionalitet. Här får du en öppen planlösning mellan kök och vardagsrum, vilket skapar en inbjudande och luftig känsla. De tre rymliga sovrummen är perfekt planerade för både avkoppling och förvaring, medan den generösa hallen med en hel garderobsvägg ger gott om plats för kläder och saker. Två vackra badrum fulländar denna fantastiska bostad.

Här kan man verkligen få det bästa av två världar – närhet till allt vad Söder har att erbjuda, samtidigt som grönska och fina promenadstråk finns runt hörnet. En perfekt balans mellan stadens puls och naturens lugn.

Brf Rektangeln 22 är en stort och stabil bostadsrättsförening i hjärtat av Skanstull. Föreningen upplåter 388 lägenheter varav 33 är hyresrätter samt 10 lokaler.

Området kring Skanstull erbjuder närhet till såväl shopping, restauranger och grönområden. I populära gallerian Ringen som ligger i samma hus finns butiker, mataffär samt ett brett utbud av restauranger i den nya matscenen Teatern. En kort promenad bort ligger Eriksdalsbadet med sina bassänger och utomhusgym. Följer man det fina promenadstråket längst med Årstaviken kan man njuta av flertalet badplatser, foodtrucks och boulebanor innan man tillslut når Hornstull. Goda kommunikationer med både tunnelbana och flertalet busslinjer som utgår från Skanstull.

Mäklare

Adde Duna
Ansvarig mäklare
AwardBadge
Årets Mäklarkedja 2024
Vinnare av Boneo Awards
Bjurfors Södermalm
Götgatan 99, Stockholm
Agency
Agency
AwardBadge
Årets Mäklarkedja 2024
Vinnare av Boneo Awards
banner

Planritning

Tjänster

Bolån

Räkna på bolån för Götgatan 116
nordeaAlltid personlig ränta på ditt bolånRäkna här
Jämför bolån från olika banker!
lanekollPersonlig hjälp hela vägen hem!Räkna direkt!
Bostaden du tittar på matchar med 3 164 personer i BoneoMatch™

Hur många vill köpa din bostad?

Vi matchar din bostad mot över 500 000 köpsugna personer som går på visningar just nu.

Loading...