linkedin pixel
Fullskärm
Fullskärm
På G!
Först på Boneo
Lägenhet2 rok51

Fakta om bostaden

  • Pris2 950 000 kr
  • BoendetypLägenhet
  • Antal rum2 rok
  • Boyta51
  • UpplåtelseformBostadsrätt
  • Kvadratmeterpris (kr/m²) 57 843 kr/m²
  • Byggnadsår2018
  • Våning 1 av 4
  • HissJa
  • Avgift till föreningen4 099 kr/mån

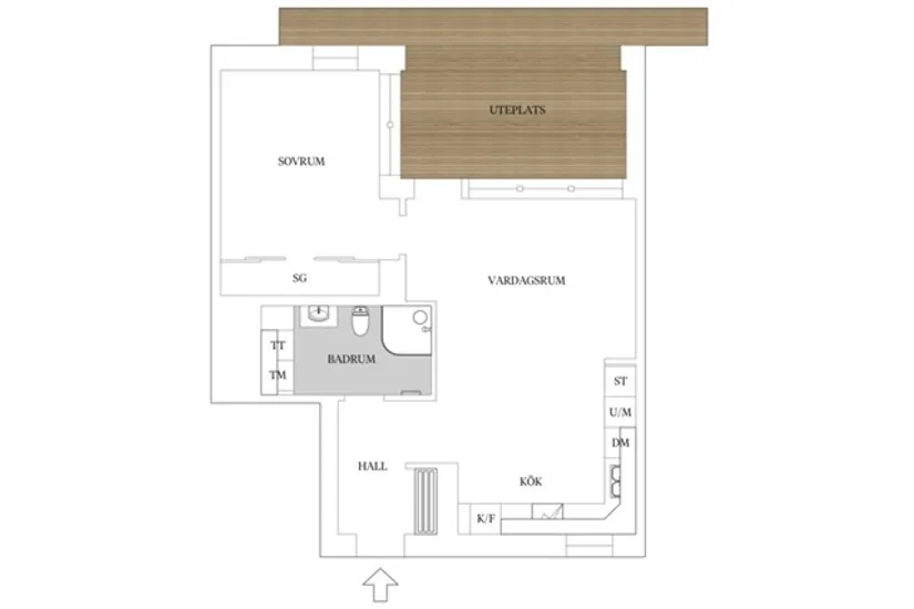
Beskrivning

Välplanerade ytor, generös takhöjd och öppen planlösning i en underbar kombination. Bostadens stora fönsterpartier tillsammans med en gedigen takhöjd skapar ljus och rymd. Här erbjuds en lägenhet med genomgående hög standard, stilfulla materialval samt goda förvaringsmöjligheter. Bostaden präglas av tidlös elegans och ljusa färgval som skapar en perfekt genomgående bas för det skandinaviska hemmet. Köket är placerat i öppen planlösning mot vardagsrummet vilket skapar en social atmosfär. Signerat välrenommerade Marbodal med goda arbetsytor. Bostadens badrum har tvättmaskin samt torktumlare för att underlätta vardagen lite extra. Den inglasade uteplatsen går utmärkt att nyttja året om och är möblerbar då både loungemöbler eller utemöbler ryms. Varmt välkomna att trivas!

Brf Torpaterassens vackra tegelbyggnader ligger belägna i högt läge med slående utsikt över takåsarna i området. Precis utanför uteplatsen finns den mysiga innergården med grönskande planteringar som håller på att skapas och som ska inbringa ett trevligt grannskap för dig och dina grannar. HSB värnar om gemensamma mötesytor och i föreningen Torpaterrassen finns en bokningsbar övernattningslägenhet för dina långväga gäster samt en gemensamhetslokal med plats för 30 personer. Det finns även två tvättstugor i föreningen, en i respektive garagedel. För barnen finns lekplats på gården och en lite större med rutschkana i utkanten av föreningens område. Möjlighet till att hyra garage-eller parkeringsplats finns i föreningen. Bostaden ligger perfekt belägen med närhet till både naturområden som Skatås och Delsjön samt en kort spårvagnstur bort till Avenyn och det pulserande stadslivet.

Visningar

På G!
Först på Boneo
Björkekärr, Göteborg

Smögengatan 24

Lägenhet2 rok51

Mäklare

Mäklare

AwardBadge
Årets Mäklarkontor 2024Årets Mäklarkedja 2024, 2025
Vinnare av Boneo Awards
banner

Tjänster

Bolån

Räkna på bolån för Smögengatan 24
nordeaAlltid personlig ränta på ditt bolånRäkna här
Jämför bolån från olika banker!
lanekollPersonlig hjälp hela vägen hem!Räkna direkt!
Bostaden du tittar på matchar med 2 298 personer i BoneoMatch™

Hur många vill köpa din bostad?

Vi matchar din bostad mot över 500 000 köpsugna personer som går på visningar just nu.

Loading...
På G!
Först på Boneo
Björkekärr, Göteborg

Smögengatan 24

Lägenhet2 rok51

Mäklare

Mäklare

AwardBadge
Årets Mäklarkontor 2024Årets Mäklarkedja 2024, 2025
Vinnare av Boneo Awards