linkedin pixel
Tillbaka till sökresultatet
Fullskärm
Fullskärm
Tillbaka till sökresultatet
externalLinkIconAlla bilder
På G!
Först på Boneo
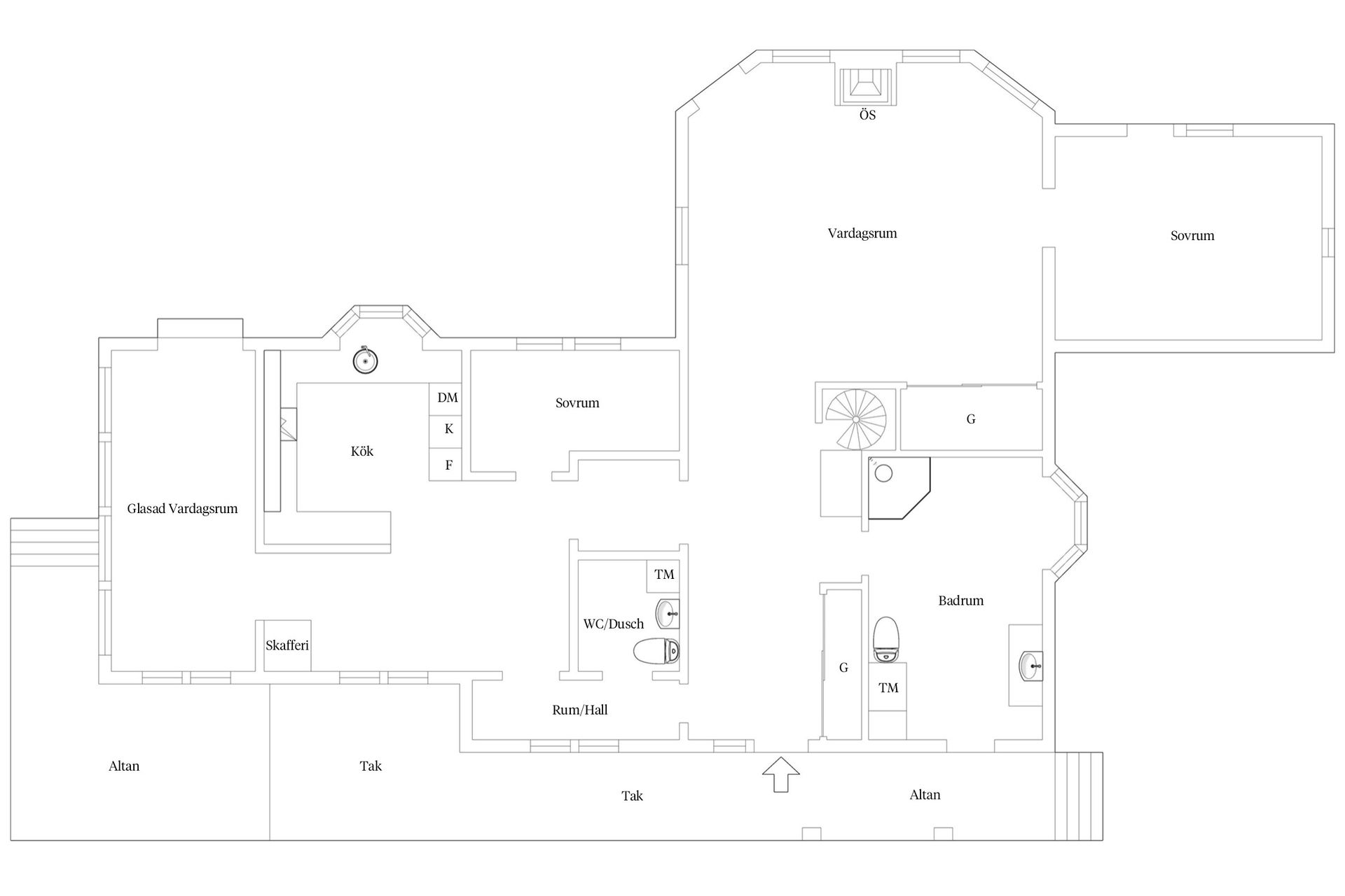
Villa6 rok146 + 123 363 m² tomt

Fakta om bostaden

  • Pris5 895 000 kr
  • BoendetypVilla
  • Antal rum6 rok
  • Boyta146
  • UpplåtelseformFriköpt
  • Biarea12
  • Tomtarea3 363 m²
  • Kvadratmeterpris (kr/m²) 40 377 kr/m²
  • Byggnadsår1977

Beskrivning

Rymlig poolvilla med härligt läge

Välkomna till denna rymliga poolvilla på 146 kvm, högt belägen fastighet med trevlig utsikt över de fina omgivningarna. Fastigheten erbjuder en härlig kombination av modern komfort och naturskön miljö, med närhet till både bad och härliga naturupplevelser. Den välplanerade bostaden har stora fönsterpartier som släpper in rikligt med naturligt ljus och ger en känsla av rymd och öppenhet. Till fastigheten ingår även båtplats och intilliggande sjöbod.

Vardagsrummet är mycket generöst och har högt i tak, vilket skapar en luftig och inbjudande atmosfär. Här finns gott om utrymme för både sittgrupper och sociala sammanhang, och de stora fönstren ger en fin utsikt över den privata trädgården och poolområdet.

Huset har tre till fyra sovrum, där varje rum erbjuder god plats för både säng och förvaring, vilket gör det lätt att skapa en personlig och funktionell sovmiljö. Det finns dessutom gott om förvaringsmöjligheter i hela bostaden.

Köket är rymligt och välutrustat, med en praktisk matplats som ger möjlighet till både snabba måltider och trevliga middagar i sällskap av familj och vänner. Här finns även en fin balans mellan funktionalitet och stil, vilket gör matlagning och umgänge till en ren fröjd.

Fastigheten inkluderar också en dubbelcarport och ett charmigt gästhus, vilket ger extra utrymme för övernattande gäster eller för den som behöver en extra plats för arbete eller hobbyverksamhet.

Den välskötta trädgården och den inbjudande poolen ger en perfekt plats för avkoppling och utomhusaktiviteter under hela året. Oavsett om ni vill ta ett svalkande dopp i sommarvärmen eller njuta av stillheten i trädgården under höstens färgprakt, kommer denna bostad att vara en oas för hela familjen.

Med sitt läge i en naturskön miljö, men samtidigt med nära avstånd till både bad och fritidsaktiviteter, erbjuder denna villa en perfekt kombination av bekvämlighet och livskvalitet.


Området
Djurö-Vindö är en äkta genuin skärgårsbyggd med flera badplatser och bryggplatser. En kort bilresa bort ligger ett väl utvecklat samhälle med all nödvändig service: bibliotek, skola 1-9, förskola, Munkens konditori, ICA-affär, utegym och trevliga småaffärer. Här finns flera välkända krogar som tex Motorverkstan.
Djurönäset Hotell, en välkänd konferensanläggning som även erbjuder lokala boende, roliga aktiviteter, kända artister och vackra omgivningar samt med simhall och spa - öppen för allmänheten. Vid gästbryggorna på västra sidan av udden kan man förtöja båten för en trevlig middag på Sjöboden. Där finns även en kuperad joggingrunda med härlig sjöutsikt.

Kommunikationsmässigt trafikerar SL med buss in till stan (Slussen) samt väldigt lättillgänglig att ta sig till med bil (ca 50 min). Njut även av bedårande skärgårdslandskap längst med vägen ut till Djurö-Vindö.
På G!
Först på Boneo
Djurö, Värmdö

Vindö landsväg 47

Villa6 rok146 + 123 363 m² tomt

Mäklare

Mäklare

AwardBadge
Årets Mäklarkedja 2024, 2025
Vinnare av Boneo Awards
banner

Tjänster

Bolån

Räkna på bolån för Vindö landsväg 47
nordeaAlltid personlig ränta på ditt bolånRäkna här
Jämför bolån från olika banker!
lanekollPersonlig hjälp hela vägen hem!Räkna direkt!

Hur många vill köpa din bostad?

Med BoneoMatch™ ser du hur många som letar efter en liknande bostad i ditt område.

Läs mer
Loading...
På G!
Först på Boneo
Djurö, Värmdö

Vindö landsväg 47

Villa6 rok146 + 123 363 m² tomt

Mäklare

Mäklare

AwardBadge
Årets Mäklarkedja 2024, 2025
Vinnare av Boneo Awards