linkedin pixel
Fullskärm
Fullskärm
externalLinkIconAlla bilder
Lägenhet2 rok51,50

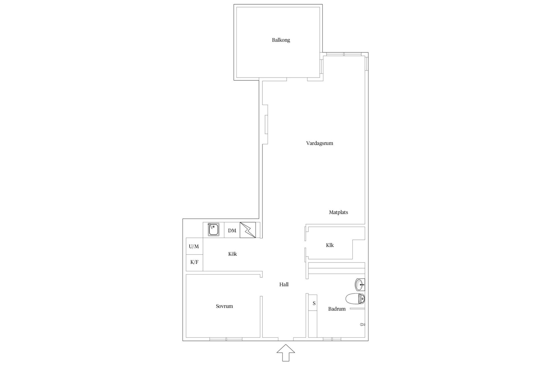
Fakta om bostaden

  • Pris2 090 000 kr
  • BoendetypLägenhet
  • Antal rum2 rok
  • Boyta51,50
  • UpplåtelseformBostadsrätt
  • Kvadratmeterpris (kr/m²) 40 583 kr/m²
  • Byggnadsår1991
  • Dagar på Boneoaugusti 2025
  • Våning 1 av 4
  • HissJa
  • Avgift till föreningen6 112 kr/mån

Beskrivning

Välkomna till denna hemtrevliga tvårummare med genomgående och smart planlösning i Munkebäck. Här stiger man in i en bostad som andas nyproduktion. Köket är fullutrustat med snygga lådor och skåp samt vitvaror i svart design. Bänkskivan i marmor möter vitt fasat kakel i halvförband. Bostadens badrum är verkligen rymligt och erbjuder såväl golvvärme som infällda högtalare i taket. Det är även framdraget för tvättmaskin och torktumlare. Bostadens vardagsrum är rymligt och har en given plats för både soffgrupp, stort matsalsbord samt skrivbord. Här har man även byggt upp en stenvägg där en given plats för tv:n finns och under denna en elektrisk eldstad. Härlig inglasad balkong som kan nyttjas under många av årets månader. Fint golv möter ljusa ytskikt och väldisponerade ytor. I taket sitter infällda dimbara spotlights som även kan styras med telefonen. En lägenhet som måste upplevas.

I det direkta närområdet finns ett stort serviceutbud med bland annat ICA Kvantum, nattöppen bensinstation, systembolag och andra affärer som Torpavallen har att erbjuda. Vid Munkebäckstorget ligger videobutik, apotek, vårdcentral, fruktaffär och hållplats för kommunikationer. En liten promenad bort finner ni Bagaregårdens caféer och små butiker, Redbergsplatsen och det stora serviceutbudet vid Olskrokstorget. Här har ni även nära till naturen och rekreationsområdet kring Skatås och Delsjön som bjuder in till en mängd olika fritidsaktiviteter året om.
Munkebäck, Göteborg

Ernst Torulfsgatan 17C

Lägenhet2 rok51,50

Mäklare

Mäklare

AwardBadge
Årets Mäklarkontor 2024Årets Mäklarkedja 2024, 2025
Vinnare av Boneo Awards
banner

Tjänster

Bolån

Räkna på bolån för Ernst Torulfsgatan 17C
nordeaAlltid personlig ränta på ditt bolånRäkna här
Jämför bolån från olika banker!
lanekollPersonlig hjälp hela vägen hem!Räkna direkt!
Bostaden du tittar på matchar med 2 092 personer i BoneoMatch™

Hur många vill köpa din bostad?

Vi matchar din bostad mot över 500 000 köpsugna personer som går på visningar just nu.

Loading...
Munkebäck, Göteborg

Ernst Torulfsgatan 17C

Lägenhet2 rok51,50

Mäklare

Mäklare

AwardBadge
Årets Mäklarkontor 2024Årets Mäklarkedja 2024, 2025
Vinnare av Boneo Awards