linkedin pixel
Tillbaka till sökresultatet
Fullskärm
Fullskärm
Tillbaka till sökresultatet
På G!
Först på Boneo
Radhus5 rok113 + 12163 m² tomt

Fakta om bostaden

  • BoendetypRadhus
  • Antal rum5 rok
  • Boyta113
  • UpplåtelseformFriköpt
  • Biarea12
  • Tomtarea163 m²
  • Byggnadsår1978

Beskrivning

Välkommen till Gulklövergatan 70 – Ett magiskt hem i hjärtat av Nödinge med fantastiskt läge, stor altan, jacuzzi och 3 välplanerade våningar! På populära Överstegården väntar ett välplanerat och charmigt radhus i tre genomtänkta våningar – perfekt för den moderna familjen som söker både funktion och livskvalitet.

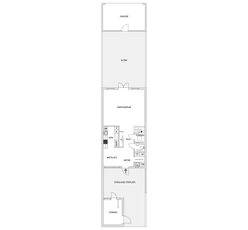
Entréplan – Sällskapsyta med stil
Här möts du av en inbjudande hall med god förvaring i form av skjutdörrsgarderob med spegeldörrar. Köket är ljust och praktiskt med plats för matbord vid fönstret. Vardagsrummet är rymligt och har direkt utgång till den stora altanen – perfekt för sommarens middagar eller avkoppling i den lyxiga jacuzzin. På entréplan finns även en gäst-WC samt en separat tvättstuga med tvättmaskin och torktumlare.

Plan 2 – Privat sovavdelning
På andra våningen finner du tre rogivande sovrum i varierande storlek samt ett stilrent, helkaklat badrum med dusch – renoverat med känsla för både estetik och funktion.

Plan 3 – Flexibelt extrautrymme
Överst i huset ligger ett ljust och mysigt allrum – perfekt som lekrum, kontor eller extra vardagsrum. Här finns även praktisk förvaring i kattvindarna.

Utemiljö – Två uteplatser & garage
På framsidan välkomnas du av en stenlagd uteplats och ett förråd – perfekt för cyklar, verktyg eller barnvagnar. På baksidan ligger den generösa altanen med gott om plats för loungemöbler och grill, och direkt intill finns garage som ingår i bostaden.

Från bostaden har du gångavstånd till bland annat skola, förskola, bibliotek och Ale Kulturrum. Varför inte ta en trevlig golfrunda på Backa Säteri golf, eller en glass medan du njuter av den härliga omgivningen. Även barnvänliga Vimmersjön med både sandstrand, brygga, grillplats och en stor gräsplan för brännboll och andra utomhusaktiviteter finner du inom kort avstånd från bostaden. Ale Torg med all tänkbar handel, service och pendelstation finner du bara en kort promenad från barnvänliga Backa Säteri. Via pendeltåg och bil tar du dig till Göteborgs centrum på endast 20 minuter.

Här är det bara att flytta in och njuta! Varmt välkommen att boka din visning!
På G!
Först på Boneo
Nödinge, Ale

Gulklövergatan 70

Radhus5 rok113 + 12163 m² tomt

Mäklare

banner

Tjänster

Bolån

Räkna på bolån för Gulklövergatan 70
nordeaAlltid personlig ränta på ditt bolånRäkna här
Jämför bolån från olika banker!
lanekollPersonlig hjälp hela vägen hem!Räkna direkt!
Bostaden du tittar på matchar med 472 personer i BoneoMatch™

Hur många vill köpa din bostad?

Vi matchar din bostad mot över 500 000 köpsugna personer som går på visningar just nu.

Loading...
På G!
Först på Boneo
Nödinge, Ale

Gulklövergatan 70

Radhus5 rok113 + 12163 m² tomt

Mäklare