linkedin pixel
Tillbaka till sökresultatet
Fullskärm
Fullskärm
Tillbaka till sökresultatet
externalLinkIconAlla bilder
Villa6 rok1262 045 m² tomt

Fakta om bostaden

  • Pris4 610 000 kr
  • BoendetypVilla
  • Antal rum6 rok
  • Boyta126
  • UpplåtelseformFriköpt
  • Tomtarea2 045 m²
  • Kvadratmeterpris (kr/m²) 36 587 kr/m²
  • Byggnadsår2025
  • Dagar på Boneomaj 2025

Beskrivning

Bygg nytt i Fjuckby, utanför Stovreta!

Bygg nytt i Fjuckby! Tillsammans med A-hus kan vi nu presentera byggklara tomter i Fjuckby utanför Storvreta.
Villa Vallda, 4 610 000 kr. Totalpriset innefattar tomt, lagfartskostnad, nyckelfärdigt hus, VA, el, fiber och bygglovskostnader.

I Fjuckby har du endast 6 minuter med bil till Storvreta centrum, där finns skolor, affärer, vårdcentral, tandläkare, apotek, bibliotek, restauranger, mm. Snabbtåg till Uppsala/Stockholm, samt goda bussförbindelser. Det tar 15 minuter med bil till Uppsala.
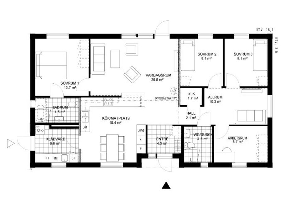
Villa Vallda i modern stil är ett 1-planshus på 126 välplanerade kvadrat där alla får utrymme att trivas.

Välkommen hem till Villa Vallda. Kliv in genom den väderskyddade entrén och du kommer in i ett ombonat kök med egen matplats som vetter mot framsidan. Här öppnar den avslappnade bardisken upp mot det ljusa vardagsrummet med sina stora fönster mot uteplatsen. En smart planlösning med välplanerade rum gör det lätt att trivas. Ert sovrum är stort och har ett lyxigt privat badrum. Barnen har två egna sovrum och ett rejält tilltaget sällskapsrum att umgås med kompisar i. Och med ett eget kontor blir det lätt att stänga dörren om sig och jobba ostört.

Observera att det endast är exempelbilder som kan innehålla tillval som kan påverka priset.
Självklart kan man välja ett annat hus ur A-hus breda utbud av husmodeller. Kontakta oss för att ta reda på vilket hus som passar er bäst.

Bjurfors förmedlar endast tomten. Entreprenadkontrakt skrivs med A-hus.

För mer info kontakta:

Anton Törne
0733060196
Anton.torne@a-hus.se

Pernilla Blomfelt
0737083122
Pernilla.blomfelt@a-hus.se
Uppsala

Fjuckby 1:72

Villa6 rok1262 045 m² tomt

Mäklare

Mäklare

AwardBadge
Årets Mäklarkedja 2024, 2025
Vinnare av Boneo Awards
banner

Tjänster

Bolån

Räkna på bolån för Fjuckby 1:72
nordeaAlltid personlig ränta på ditt bolånRäkna här
Jämför bolån från olika banker!
lanekollPersonlig hjälp hela vägen hem!Räkna direkt!
Bostaden du tittar på matchar med 120 personer i BoneoMatch™

Hur många vill köpa din bostad?

Vi matchar din bostad mot över 500 000 köpsugna personer som går på visningar just nu.

Loading...
Uppsala

Fjuckby 1:72

Villa6 rok1262 045 m² tomt

Mäklare

Mäklare

AwardBadge
Årets Mäklarkedja 2024, 2025
Vinnare av Boneo Awards