linkedin pixel
Tillbaka till sökresultatet
Fullskärm
Fullskärm
Tillbaka till sökresultatet
externalLinkIconAlla bilder
Villa3552 047 m² tomt

Fakta om bostaden

  • Pris4 195 000 kr
  • BoendetypVilla
  • Boyta355
  • UpplåtelseformFriköpt
  • Tomtarea2 047 m²
  • Kvadratmeterpris (kr/m²) 11 817 kr/m²
  • Byggnadsår1899
  • Dagar på Boneoseptember 2025

Beskrivning

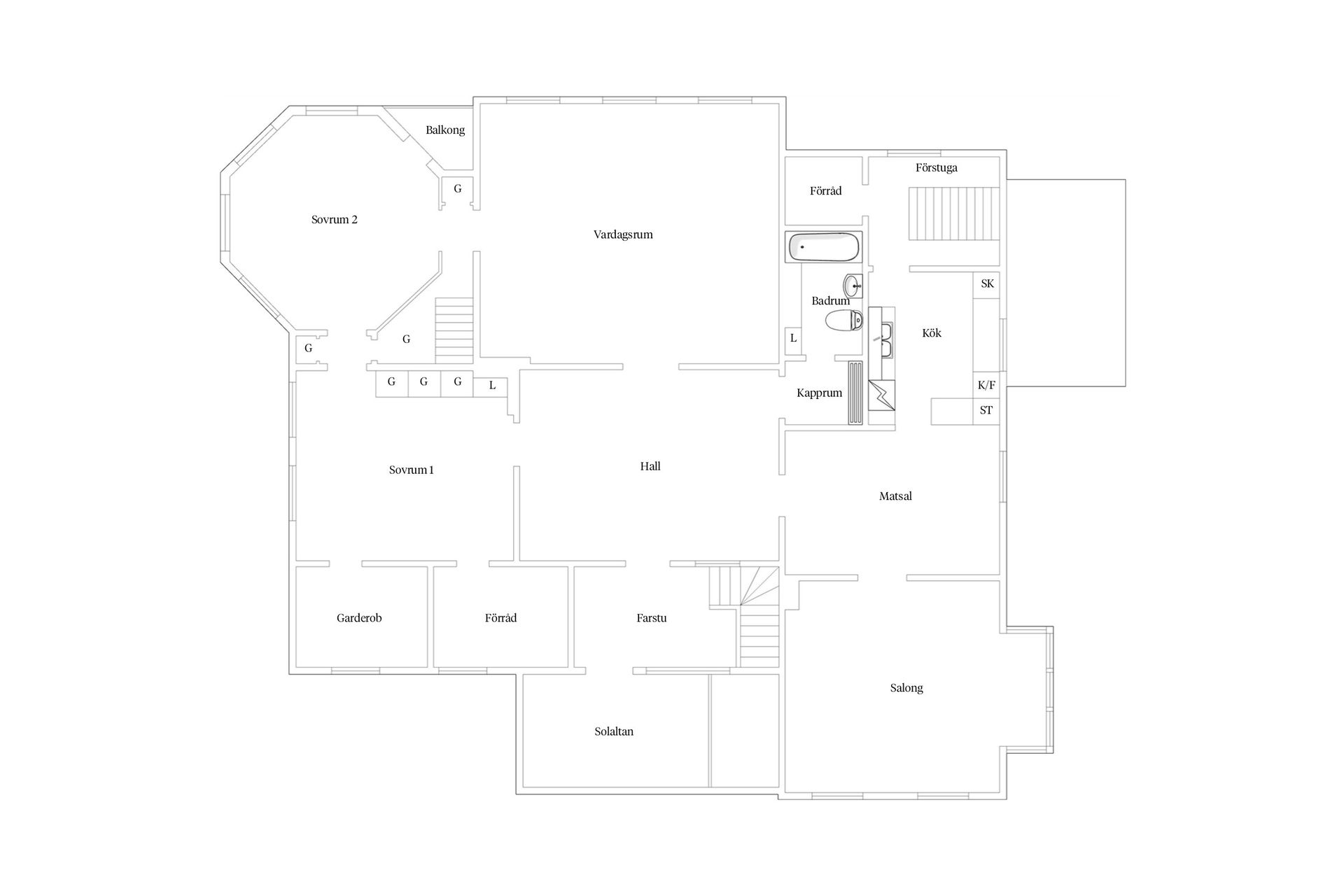
Varmt välkomna till Kungsgatan 25 i Åmål och denna fantastiska fastighet som inrymmer totalt tre lägenheter, en om ca. 160 kvm, en på ca. 60 kvm och den sista är ca 120 kvm. Med sin totala brist på symmetri verkar "Waldenströmska villan" vara byggd i spontanitetens och glädjens tecken. Bostadshuset är i två plan och har en stomme av trä med liggande fasspontpanel som fasad. Fastigheten har en välbevarad yttre karaktär med stort kulturhistoriskt värde. Bostadshuset består av tre lägenheter, två på nedre plan och en större på övre plan. Den större lägenheten på nedre plan har möjlighet till två stora sovrum, sociala ytor i matsalen och även ett praktiskt kök. Denna lägenhet har även ett smakfullt renoverat duschrum. Den mindre av lägenheterna på nedre plan har ett rejält vardagsrum, sovrum och ett praktiskt kök. Den största bostaden på övre plan som tidigare var representationsvåning har två stora sovrum, varav ett är i det åttkantiga tornrummet. Två stora allrum, badrum och ett rejält kök med matsalsdel.

Uthuset byggdes som vagnskjul men har under åren används som kiosk. Kiosken är i ett och ett halvt plan och ligger med skyltfönster mot Kungsgatan, här kan man ha sin egen verksamhet om så önskas alternativt inreda som gästhus eller liknande.
Fastigheten är taxerad som 321, hyreshusenhet, bostäder och lokaler.
Fastigheten bör upplevas på plats, varmt välkomna!
Åmål

Kungsgatan 25

Villa3552 047 m² tomt

Mäklare

Mäklare

AwardBadge
Årets Mäklarkedja 2024, 2025
Vinnare av Boneo Awards
banner

Tjänster

Bolån

Räkna på bolån för Kungsgatan 25
nordeaAlltid personlig ränta på ditt bolånRäkna här
Jämför bolån från olika banker!
lanekollPersonlig hjälp hela vägen hem!Räkna direkt!

Hur många vill köpa din bostad?

Med BoneoMatch™ ser du hur många som letar efter en liknande bostad i ditt område.

Läs mer
Loading...
Åmål

Kungsgatan 25

Villa3552 047 m² tomt

Mäklare

Mäklare

AwardBadge
Årets Mäklarkedja 2024, 2025
Vinnare av Boneo Awards