linkedin pixel
På G!
Först på Boneo
Sparsör, Borås

Rosenvägen 3A

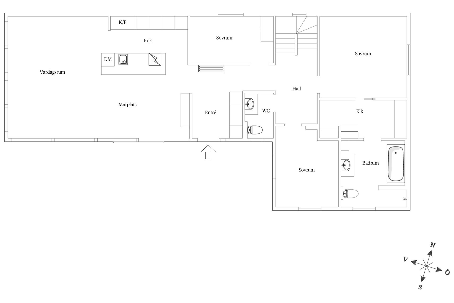
Villa7 rok162 + 72,501 005 m² tomt

Fakta

  • Pris6 495 000 kr
  • BoendetypVilla
  • Rum7 rok
  • Boyta162
  • UpplåtelseformFriköpt
  • Biarea72,50
  • Tomtarea1 005 m²
  • Pris/m² 40 093 kr/m²
  • Byggnadsår1935

Beskrivning

Rosenvägen 3A erbjuder ett boende där varje detalj är noggrant genomtänkt – från val av material till teknisk funktion och planlösning. I ett lugnt och barnvänligt område i Sparsör, med närhet till skola, står denna villa färdig för nästa familj att ta över.

Här bor du med naturen runt knuten – med gångavstånd till både Mölarps Kvarn och det natursköna området Kryklings-Hage. För varma sommardagar ligger badplatsen nära till hands, och från flera av husets rum kan du njuta av vacker sjöutsikt som förstärker den rofyllda känslan i hemmet.

Huset har genomgått en fullständig renovering och tillbyggnad under 2024 – resultatet är en bostad i mycket gott skick där varje kvadratmeter präglas av omsorg, kvalitet och genomtänkt funktion. Villan om totalt 162 kvm boarea plus 72,5 kvm biarea fördelar sig över två plan och en inredd källare. Intrycket präglas av exklusiva materialval, generösa ljusinsläpp och en genomgående känsla av rymd och harmoni. Här möts klassisk elegans och modern funktion i perfekt samklang.

Det här är ett hem att leva länge i. Den generösa planlösningen, den tekniska standarden, komforten och det barnvänliga läget skapar tillsammans ett boende utöver det vanliga. Här finns rum för både vardag och fest, vila och aktivitet, familjeliv och hemarbete.
Välkommen till Rosenvägen 3A – där allt redan är gjort. Bara att flytta in!

Visningar

Mäklare

Jonathan Schagerlind
Ansvarig mäklare
Jonathan Schagerlind
AwardBadge
Årets Mäklarkedja 2024
Vinnare av Boneo Awards
Bjurfors Borås
Västerlånggatan 24, Borås
Agency
Agency
AwardBadge
Årets Mäklarkedja 2024
Vinnare av Boneo Awards
banner

Planritning

Tjänster

Bolån

Räkna på bolån för Rosenvägen 3A
nordeaAlltid personlig ränta på ditt bolånRäkna här
Jämför bolån från olika banker!
lanekollPersonlig hjälp hela vägen hem!Räkna direkt!
Bostaden du tittar på matchar med 81 personer i BoneoMatch™

Hur många vill köpa din bostad?

Vi matchar din bostad mot över 500 000 köpsugna personer som går på visningar just nu.

Loading...