linkedin pixel
Tillbaka till sökresultatet
Fullskärm
Fullskärm
Tillbaka till sökresultatet
På G!
Först på Boneo
Lägenhet1 rok21,50

Fakta om bostaden

  • BoendetypLägenhet
  • Antal rum1 rok
  • Boyta21,50
  • UpplåtelseformBostadsrätt
  • Byggnadsår1931
  • Våning 3 av 5
  • HissJa
  • Avgift till föreningen2 185 kr/mån

Beskrivning

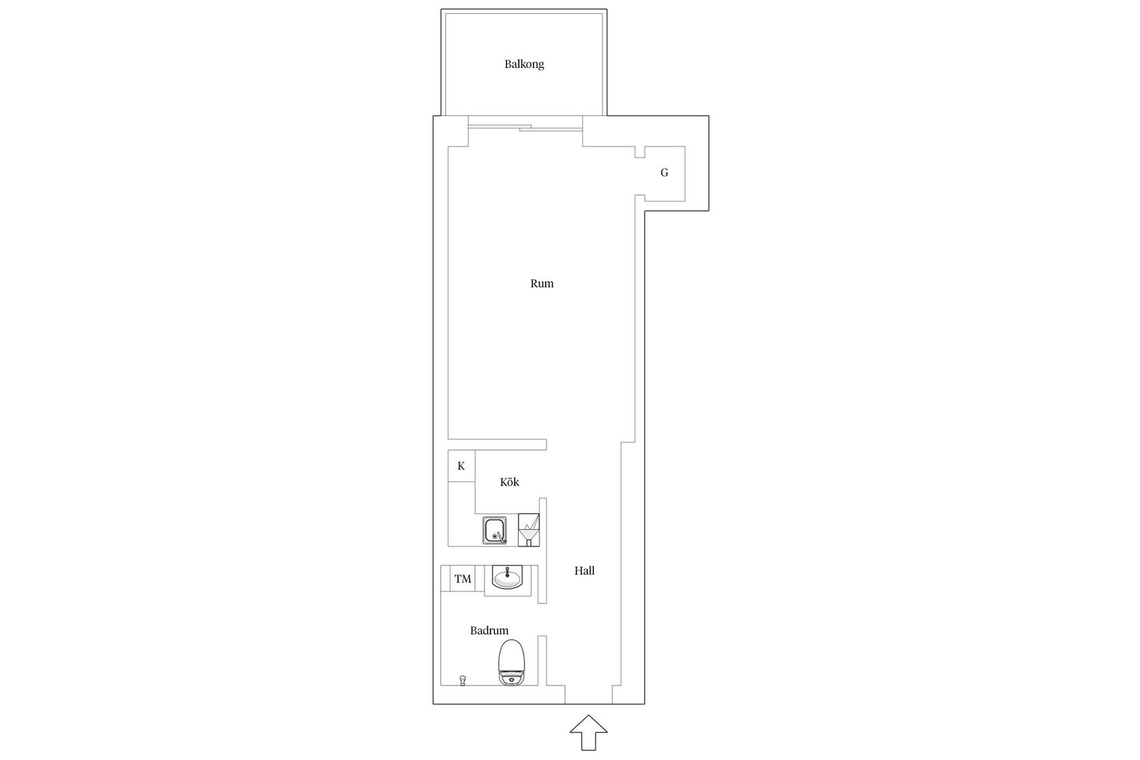
Nu finns chansen att bo på en av Södermalms mest eftertraktade adresser – Tavastgatan 16, mitt i hjärtat av historiska och pittoreska Mariaberget. På ett högt läge i huset hittar du denna välplanerade enrummare med solig balkong i eftertraktat sydvästläge. Lägenheten bjuder på en härlig mix av klassisk charm och smart funktion, med vackra detaljer bevarade från byggåret så som fiskbensparkett, spegeldörrar och generös takhöjd som skapar en luftig och ljus känsla.

Det stora rummet rymmer både säng, soffa och matplats utan att kompromissa med rymden. Via vackra pardörrar i glas kliver du ut på den privata balkongen där solen ligger på från lunch och framåt. Köket är yteffektivt med bra förvaring och arbetsyta, och det fräscha badrummet är utrustat med tvättmaskin. Därtill finns en praktisk klädkammare som förenklar vardagen.

Välvårdad förening som har stabil ekonomi, låg belåningsgrad, stambytt och äger marken.

Här bor du på ett av Södermalms mest attraktiva lägen på historiska Mariaberget med lugna kullerstensgator och gamla, vackra fastigheter. Mariatorget med dess otroliga utbud av restauranger, barer, kläd- och inredningsbutiker samt teatrar har de senaste åren gjort att området är Södermalms naturliga samlingsplats. Om somrarna tar du gärna picknick-korgen under armen och sätter dig vid Ivar Los-park och Monteliusvägen eller strosar ner till Mariatorgets park. Mycket goda kommunikationer med endast fyra minuters promenad till Mariatorgets tunnelbana och flertalet busslinjer. Vidare till Swedenborgsgatan varifrån du även når Södra Stations pendeltåg som går direkt till Arlanda.
På G!
Först på Boneo
Södermalm Maria, Stockholm

Tavastgatan 16

Lägenhet1 rok21,50

Mäklare

Mäklare

AwardBadge
Årets Mäklarkedja 2024, 2025
Vinnare av Boneo Awards
banner

Tjänster

Bolån

Räkna på bolån för Tavastgatan 16
nordeaAlltid personlig ränta på ditt bolånRäkna här
Jämför bolån från olika banker!
lanekollPersonlig hjälp hela vägen hem!Räkna direkt!
Bostaden du tittar på matchar med 996 personer i BoneoMatch™

Hur många vill köpa din bostad?

Vi matchar din bostad mot över 500 000 köpsugna personer som går på visningar just nu.

Loading...
På G!
Först på Boneo
Södermalm Maria, Stockholm

Tavastgatan 16

Lägenhet1 rok21,50

Mäklare

Mäklare

AwardBadge
Årets Mäklarkedja 2024, 2025
Vinnare av Boneo Awards