linkedin pixel
Tillbaka till sökresultatet
Fullskärm
Fullskärm
Tillbaka till sökresultatet
På G!
Först på Boneo
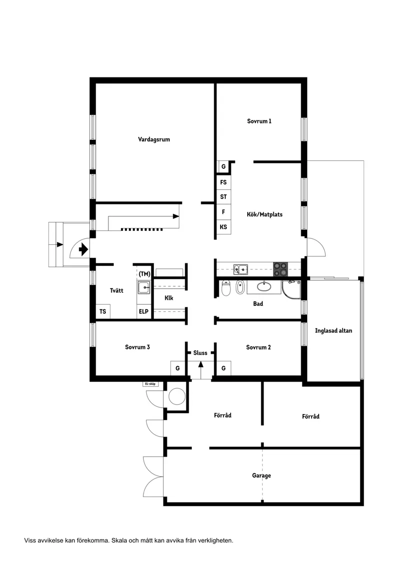
Villa7 rok158 + 47989 m² tomt

Fakta om bostaden

  • Pris1 150 000 kr
  • BoendetypVilla
  • Antal rum7 rok
  • Boyta158
  • UpplåtelseformFriköpt
  • Biarea47
  • Tomtarea989 m²
  • Kvadratmeterpris (kr/m²) 7 278 kr/m²
  • Byggnadsår1981

Beskrivning

Försprång!
Välkommen till en trevlig 1 1/2 plansvilla om 158 kvm med möjlighet till hela sex sovrum. Dessutom får du generösa förvaringsytor, varmgarage, fiber och vattenburet värmesystem. Här bor man i ett lugnt och barnvänligt område med närhet till både förskola och naturnära läge.
Anmäl ditt intresse redan nu.
På G!
Först på Boneo
Moliden, Örnsköldsvik

Kantarellvägen 4

Villa7 rok158 + 47989 m² tomt

Mäklare

banner

Tjänster

Bolån

Räkna på bolån för Kantarellvägen 4
nordeaAlltid personlig ränta på ditt bolånRäkna här
Jämför bolån från olika banker!
lanekollPersonlig hjälp hela vägen hem!Räkna direkt!
Bostaden du tittar på matchar med 131 personer i BoneoMatch™

Hur många vill köpa din bostad?

Vi matchar din bostad mot över 500 000 köpsugna personer som går på visningar just nu.

Loading...
På G!
Först på Boneo
Moliden, Örnsköldsvik

Kantarellvägen 4

Villa7 rok158 + 47989 m² tomt

Mäklare