linkedin pixel
Fullskärm
Fullskärm
externalLinkIconAlla bilder
På G!
Först på Boneo
Lägenhet6 rok150

Fakta om bostaden

  • BoendetypLägenhet
  • Antal rum6 rok
  • Boyta150
  • UpplåtelseformBostadsrätt
  • Byggnadsår1998
  • Våning 6
  • HissJa
  • Avgift till föreningen12 585 kr/mån

Beskrivning

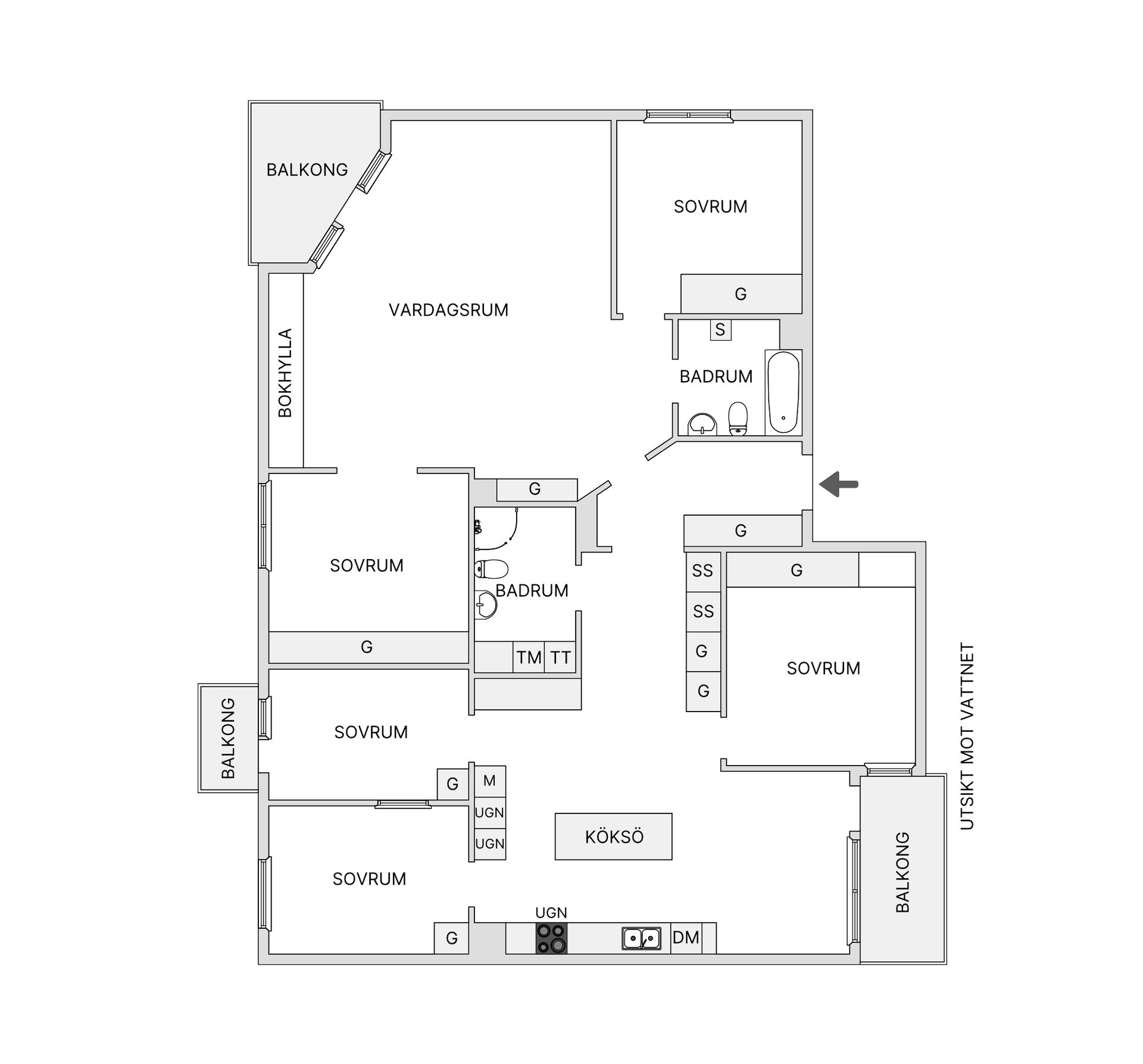
Välkommen till denna generösa och välplanerade lägenhet om hela 150 kvm på en av Södermalms mest barnvänliga och lugna adresser. Här bor du med närhet till både stadspuls och grönska – mitt i ett av Stockholms mest eftertraktade områden.

Lägenheten erbjuder sex rum och kök, varav fem välplanerade sovrum, perfekt för den stora familjen eller för dig som vill kombinera hemmakontor med sociala ytor. Den genomgående planlösningen med fönster i tre väderstreck ger ett fantastiskt ljusflöde och en härlig rymd genom hela bostaden.

Det sociala köket är verkligen hjärtat i hemmet – här finns gott om plats för både matlagning och umgänge. Från köket nås dessutom en av bostadens tre balkonger, med underbar utsikt mot Hammarbykanalen.

Bostaden rymmer två rymliga badrum, och det genomgående goda skicket gör att det bara är att flytta in och börja trivas.

Fastigheten är välskött och har en stor hiss, och lägenheten är belägen på tredje våningen med ett lugnt och fritt läge.

Ett boende som kombinerar rymlighet, ljus, utsikt och familjevänlighet – mitt på charmiga Södermalm.


Brf Hammarby Strand är en stor och stabil bostadsrättsförening med hela 216 lägenheter och fyra lokaler. Föreningen är känd för sin välskötta ekonomi och den fantastiska innergården, en grön oas med sittplatser och lekytor som uppskattas av både stora och små.

För den bilburne finns ett garage med 89 platser (för närvarande kö). Här bor du i en trygg och välorganiserad förening där allt är ordnat för en smidig vardag – mitt i hjärtat av Södermalm.
På G!
Först på Boneo
Södermalm - Norra Hammarbyhamnen, Stockholm

Nackagatan 14

Lägenhet6 rok150

Mäklare

banner

Tjänster

Bolån

Räkna på bolån för Nackagatan 14
nordeaAlltid personlig ränta på ditt bolånRäkna här
Jämför bolån från olika banker!
lanekollPersonlig hjälp hela vägen hem!Räkna direkt!
Bostaden du tittar på matchar med 402 personer i BoneoMatch™

Hur många vill köpa din bostad?

Vi matchar din bostad mot över 500 000 köpsugna personer som går på visningar just nu.

Loading...
På G!
Först på Boneo
Södermalm - Norra Hammarbyhamnen, Stockholm

Nackagatan 14

Lägenhet6 rok150

Mäklare