linkedin pixel
Fullskärm
Fullskärm
externalLinkIconAlla bilder
På G!
Först på Boneo
Lägenhet3 rok76

Fakta om bostaden

  • BoendetypLägenhet
  • Antal rum3 rok
  • Boyta76
  • UpplåtelseformBostadsrätt
  • Byggnadsår2023
  • Våning 2 av 5
  • HissJa
  • Avgift till föreningen6 548 kr/mån

Beskrivning

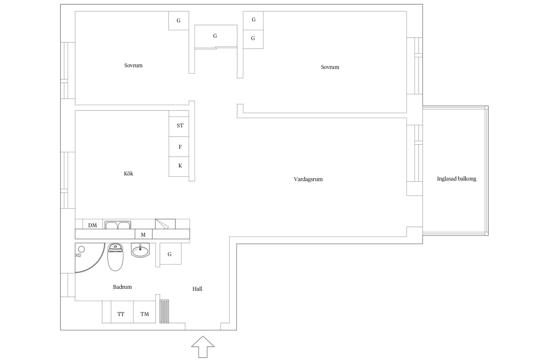
Modern genomgångstrea av hög kvalité erbjuds nu på Backadalen 28. Här finner du en välplanerad bostad om 76 kvm med traditionell planlösning som inte lämnar något att önska. Bostaden genomsyras av genomgående hög standard med fina och enhetliga ytskikt och ett generöst ljusinsläpp från två väderstreck. Köket är fullutrustat med alla maskiner för vardagen och stilrent utfört med vita fronter och matchande kakel ovan arbetsytorna. Intill köket ligger det rymliga vardagsrummet som är enkelt att möblera och sällskapsytorna förlängs av utgången till den inglasade balkongen i söderläge med utsikt mot den lugna innergården. Vidare erbjuder bostaden två sovrum med goda förvaringsmöjligheter. Det större sovrummet rymmer med lätthet en dubbelsäng samt kompletterande möblemang, medan det andra passar utmärkt som barnrum, gästrum eller hemmakontor. Badrummet är helkaklat samt modernt och erbjuder egen tvättavdelning med arbetsyta och förvaring. Till bostaden hör ett vindsförråd.

Via föreningen har du tillgång till en lugn innergård anpassad för barn och grillkvällar. Här bor du mitt i hjärtat av Backa precis vid Selma Lagerlöfs torg och en ny stadsdel som vuxit fram. Du finner all tänkbar service inom gångavstånd så som matbutik, fiskbutik, gym, pizzeria, apotek och läkarhus m.m. Från området avgår bussar frekvent som tar dig till Hjalmar Brantingsplatsen på ca 10 minuter eller centrala Göteborg på ca 15 minuter. På behändigt avstånd har även Bäckebol med utbud som IKEA och andra stora butiker.

Kontakta mäklaren för mer info!
På G!
Först på Boneo
Hisings Backa, Göteborg

Backadalen 28

Lägenhet3 rok76

Mäklare

Mäklare

AwardBadge
Årets Mäklarkedja 2024, 2025
Vinnare av Boneo Awards
banner

Tjänster

Bolån

Räkna på bolån för Backadalen 28
nordeaAlltid personlig ränta på ditt bolånRäkna här
Jämför bolån från olika banker!
lanekollPersonlig hjälp hela vägen hem!Räkna direkt!
Bostaden du tittar på matchar med 764 personer i BoneoMatch™

Hur många vill köpa din bostad?

Vi matchar din bostad mot över 500 000 köpsugna personer som går på visningar just nu.

Loading...
På G!
Först på Boneo
Hisings Backa, Göteborg

Backadalen 28

Lägenhet3 rok76

Mäklare

Mäklare

AwardBadge
Årets Mäklarkedja 2024, 2025
Vinnare av Boneo Awards