linkedin pixel
Fullskärm
Fullskärm
På G!
Först på Boneo
Villa5 rok1471 189 m² tomt

Fakta om bostaden

  • BoendetypVilla
  • Antal rum5 rok
  • Boyta147
  • UpplåtelseformFriköpt
  • Tomtarea1 189 m²
  • Byggnadsår2008

Beskrivning

FÖRHANDSVISNING inom kort! Gör gärna en intresseanmälan så blir du bland de första som får mer information.

Modernt enplanshus i Kode med kamin, garage och med fri utsikt över den stora, lummiga tomten som omfamnar huset.

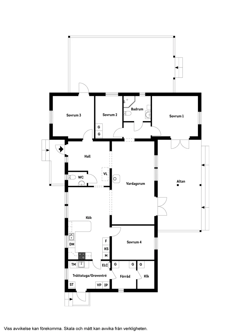
Villan erbjuder en väl genomtänkt planlösningen med samtliga rum på samma våning något som gör detta hus till ett harmonisk och praktisk boendemiljö. Här finns en rymlig hall, kök, vardagsrum, fyra sovrum, kaklad badrum, gästtoalett, groventré/ tvättstuga, flera klädförråd samt en vind.

Huset värms upp av en frånluftsvärmepump som minskar din energiförbrukning för uppvärmning med 50–65 % genom att återvinna värme från luften som annars skulle ventileras ut ur huset samtidigt som den bidrar till en mycket sundare inomhusmiljö.

Härlig atmosfär med flera rum i trädgården där det finns en altan med och utan tak, köksträdgård, gräsmatta med fruktträd och bärbuskar samt en mysig stenlagd innegård med en mindre vattenfontän vilket skapar en helt idyllisk utomhusmiljö. Allt detta är skapt mellan garage och hus så det inte finns något insyn. Och för att du ska trivas och kunna slappna av ordentligt i trädgården finns det även plank med klätterväxter på väl valda platser.

Utgångspris, utomhusfilm och tid för förhandsvisning kommer inom kort så anmäl ditt intresse så är du bland de första som får informationen.

Detta barnvänliga läget nära havet och natursköna omgivningar gör att detta hem är perfekt för familjen som inte vill missa chansen att förverkliga drömmen om ett lantligt boende med alla bekvämligheter. Trevliga grannar, med gemensamma barnvänliga festligheter i området kring midsommar ex.vis. Fem minuters med bil till badplatsen på Rörtången.

Besiktningsprotokollet får du på visningen då det är lättare att läsa det på plats samt eventuellt ställa frågor. Som seriös spekulant har du också möjlighet att få en kostnadsfri genomgång av protokollet på telefon med besiktningsmannen. Säljaren kommer teckna en doldfel försäkring som köparen kommer få använda vid behov.

Varmt välkommen att kontakta mäklaren för närmare information och intresse! Charlotte Arnet - 0761 751212
På G!
Först på Boneo
Solberga-Kode, Kungälv

Åsebyberg 852

Villa5 rok1471 189 m² tomt

Mäklare

banner

Tjänster

Bolån

Räkna på bolån för Åsebyberg 852
nordeaAlltid personlig ränta på ditt bolånRäkna här
Jämför bolån från olika banker!
lanekollPersonlig hjälp hela vägen hem!Räkna direkt!
Bostaden du tittar på matchar med 2 056 personer i BoneoMatch™

Hur många vill köpa din bostad?

Vi matchar din bostad mot över 500 000 köpsugna personer som går på visningar just nu.

Loading...
På G!
Först på Boneo
Solberga-Kode, Kungälv

Åsebyberg 852

Villa5 rok1471 189 m² tomt

Mäklare