linkedin pixel
Tillbaka till sökresultatet
Fullskärm
Fullskärm
Tillbaka till sökresultatet
externalLinkIconAlla bilder
På G!
Först på Boneo
Bostadsrättskedjehus6 rok141

Fakta om bostaden

  • Pris5 595 000 kr
  • BoendetypBostadsrättskedjehus
  • Antal rum6 rok
  • Boyta141
  • UpplåtelseformBostadsrätt
  • Kvadratmeterpris (kr/m²) 39 681 kr/m²
  • Byggnadsår2017
  • Våning 0
  • HissNej
  • Avgift till föreningen5 969 kr/mån

Beskrivning

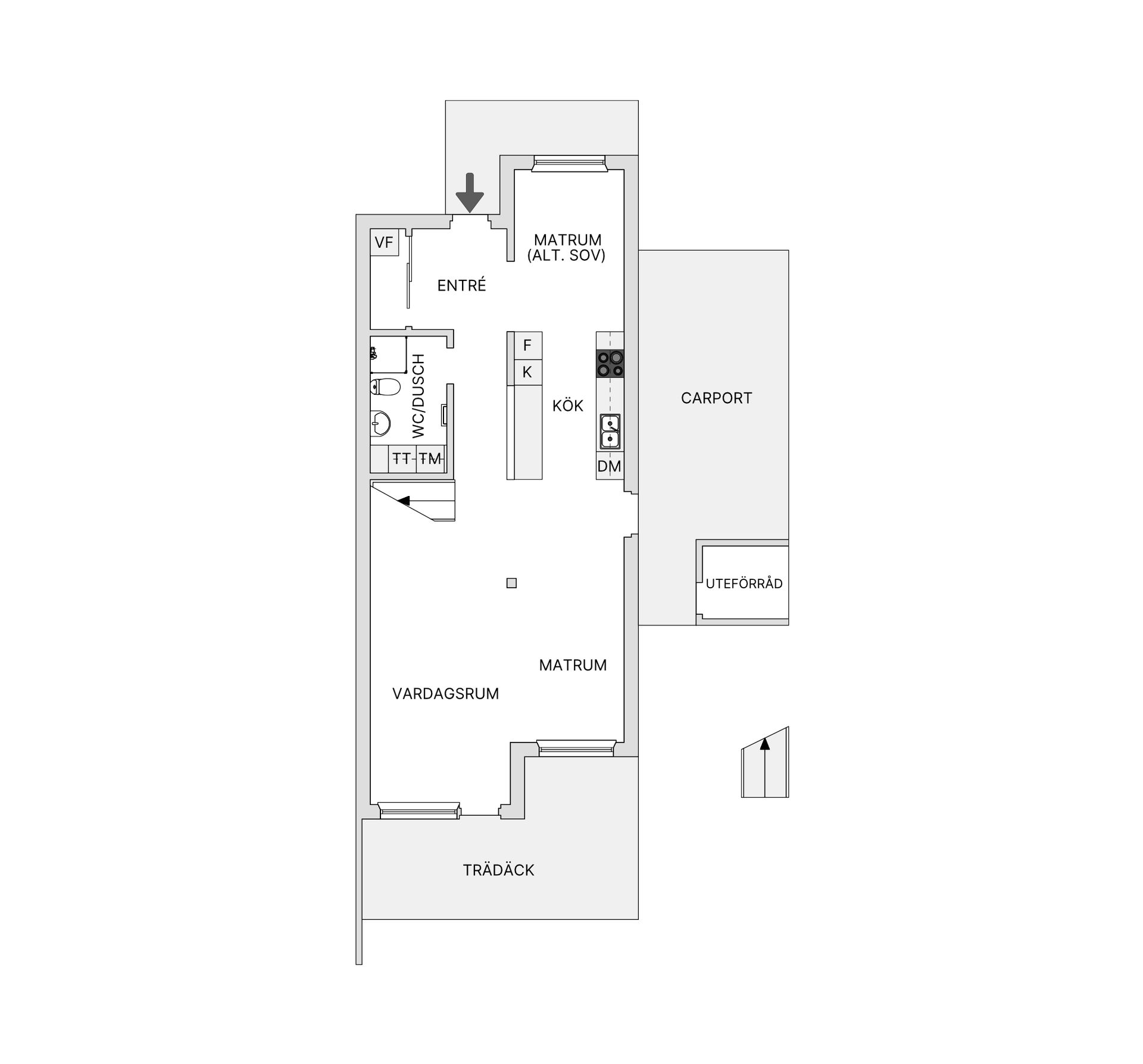
Välkommen till detta stilfulla och arkitektoniskt spännande 2-plans radhus i bostadsrättsform, beläget i omtyckta och barnvänliga Vattmyra i Jakobsberg. Med en generös boarea om 141 kvm, genomtänkt planlösning och ett lugnt läge på promenadavstånd till Jakobsbergs pendeltågsstation och centrum, erbjuds här ett bekvämt och hållbart boende för den moderna familjen, nära till såväl förskolor, skolor som Järvafältets naturreservat.

Visning planeras nu under maj, men gör gärna din intresseanmälan redan nu på www.husmanhagberg.se, under den aktuella adressen. Då får du löpande information om när kompletterande interiörbilder publiceras samt exakt tidpunkt för visning.

Bostaden är energiklassad B och utrustad med solpaneler, vilket ger både låga driftkostnader och ett klimatsmart boende.

Entréplan – sociala ytor med hög livskvalitet

Entréplanet präglas av ljus, rymd och social samvaro. Här möts du av ett smakfullt och välutrustat kök med matplats i öppen planlösning mot vardagsrummet – en perfekt miljö för både vardag och fest. Från vardagsrummet nås den stora, trädäcksförsedda altanen i soligt söderläge, där ett nedsänkt spabad skapar en exklusiv oas för avkoppling året om.

På entréplanet finns även ett helkaklat WC-/badrum utrustat med tvättmaskin och torktumlare, vilket ger en praktisk och funktionell vardag.

Övre plan – familjens privata sfär

Övre plan erbjuder fyra välplanerade sovrum, ett trivsamt TV-/allrum, samt ytterligare ett helkaklat WC-/badrum. Härifrån nås även en terrass, perfekt för morgonkaffet eller en lugn stund i solen.

Bekvämt och genomtänkt boende

Till bostaden hör carport med elbilsladdare samt dubbla bilplatser direkt vid huset – ett stort plus i vardagen.

Detta är ett hem att trivas i – varmt välkommen att anmäla ditt intresse.
På G!
Först på Boneo
Jakobsberg, Järfälla

Stuterivägen 17

Bostadsrättskedjehus6 rok141

Mäklare

banner

Tjänster

Bolån

Räkna på bolån för Stuterivägen 17
nordeaAlltid personlig ränta på ditt bolånRäkna här
Jämför bolån från olika banker!
lanekollPersonlig hjälp hela vägen hem!Räkna direkt!

Hur många vill köpa din bostad?

Med BoneoMatch™ ser du hur många som letar efter en liknande bostad i ditt område.

Läs mer
Loading...
På G!
Först på Boneo
Jakobsberg, Järfälla

Stuterivägen 17

Bostadsrättskedjehus6 rok141

Mäklare