linkedin pixel
Tillbaka till sökresultatet
Fullskärm
Fullskärm
Tillbaka till sökresultatet
Tomt802 m² tomt

Fakta om bostaden

  • Pris6 900 000 kr
  • BoendetypTomt
  • UpplåtelseformFriköpt
  • Tomtarea802 m²
  • Dagar på Boneo51 dagar

Beskrivning

Välkommen till en unik möjlighet att förverkliga ditt drömboende på en av Enstas högsta och mest attraktiva platser, med fri utsikt och naturnära omgivningar. Här erbjuds två intilliggande tomter där de omfattande markarbetena redan är utförda och kommunalt vatten och avlopp är framdraget – allt för att göra vägen till ditt nya hem så smidig som möjligt.

För tomterna finns framtaget bygglov samt färdig projektering med genomarbetade ritningar, redo att omsättas i verklighet. Ett perfekt tillfälle för dig som söker ett skräddarsytt hem med hög arkitektonisk kvalitet utan att behöva börja från grunden.

Husen är ritade av prisbelönte arkitekten Andreas Forsberg, framröstad till Årets arkitekt. Arkitekturen präglas av tidlös elegans där mörka fasader möter generösa glaspartier som suddar ut gränsen mellan inne och ute. Naturtomternas nivåskillnader och inslag av berg skapar förutsättningar för spännande landskapsarkitektur och välplacerade uteplatser i bästa solläge.

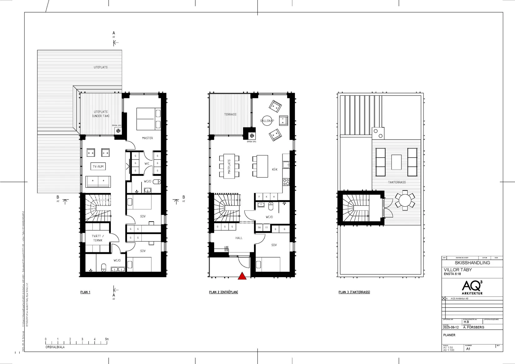
Bygglovet omfattar en genomtänkt planlösning med:

• Entréplan med öppna sociala ytor, kök med köksö, vardagsrum med kamin och direkt access till terrass
• Privat våningsplan med huvudsovrum och walk-in-closet, tre ytterligare sovrum, TV-rum, badrum, gäst-wc samt tvätt- och teknikrum
• Övre plan med privat takterrass i soligt läge

Här bor du med naturen runt knuten samtidigt som stadens bekvämligheter finns nära till hands. Området erbjuder lugn och hög livskvalitet med skolor på bekvämt avstånd och Täby centrum inom räckhåll med shopping, restauranger och service.

Detta är ett sällsynt tillfälle att skapa ett exklusivt hem i en av Täbys mest eftertraktade miljöer, där genomtänkt arkitektur och moderna lösningar möter naturens kvaliteter.

Konkreta prisuppgifter för komplett färdigställt hus med beräknad byggtid om cirka 6–8 månader finns tillgängliga.

Välkommen att kontakta ansvarig mäklare för mer information om tomterna.
Ensta, Täby

Sälgvägen

Tomt802 m² tomt

Mäklare

Mäklare

AwardBadge
Årets Mäklarkedja 2024, 2025
Vinnare av Boneo Awards
banner

Tjänster

Bolån

Räkna på bolån för Sälgvägen
nordeaAlltid personlig ränta på ditt bolånRäkna här
Jämför bolån från olika banker!
lanekollPersonlig hjälp hela vägen hem!Räkna direkt!

Hur många vill köpa din bostad?

Med BoneoMatch™ ser du hur många som letar efter en liknande bostad i ditt område.

Läs mer
Loading...
Ensta, Täby

Sälgvägen

Tomt802 m² tomt

Mäklare

Mäklare

AwardBadge
Årets Mäklarkedja 2024, 2025
Vinnare av Boneo Awards