linkedin pixel
Fullskärm
Fullskärm
externalLinkIconAlla bilder
Lägenhet3 rok79,50

Fakta om bostaden

  • Pris1 495 000 kr
  • BoendetypLägenhet
  • Antal rum3 rok
  • Boyta79,50
  • UpplåtelseformBostadsrätt
  • Kvadratmeterpris (kr/m²) 18 805 kr/m²
  • Byggnadsår1984
  • Dagar på Boneofebruari 2026
  • Våning 2 av 2
  • HissNej
  • Avgift till föreningen4 744 kr/mån

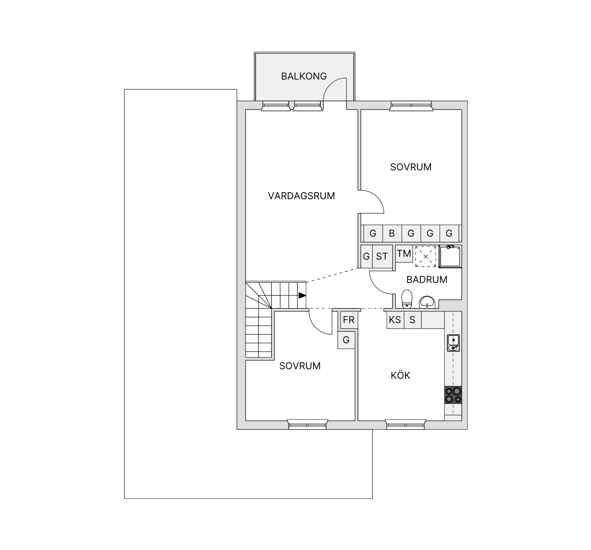
Beskrivning

Varmt välkommen till en trivsam och välplanerad trerumslägenhet om rymliga 79,5 kvm, belägen i ett stillsamt och uppskattat område i Malmslätt. Här bor du med ett bekvämt läge och genomtänkta ytor som skapar en inbjudande helhet.

Bostaden har en trevlig entré med fint altandäck utanför din entrédörr - perfekt för avkopplande stunder i solen eller middagar under sommarkvällarna. På entréplanet finns hall och ett praktiskt förråd inomhus. En trappa upp öppnar bostadens huvudsakliga boyta upp sig.

Kök och vardagsrum erbjuder generösa och luftiga ytor och från vardagsrummet når du balkongen – en härlig plats att njuta av morgonkaffet. Köket är ljust och rymligt och ger utrymme till matbord intill fönsterparti. Härifrån har du bra uppsikt över föreningens stillsamma innergård.

Badrummet är utrustat med badkar, wc och tvättmaskin, vilket förenklar vardagen. Lägenheten rymmer dessutom två rymliga sovrum med gott om plats för både säng och förvaring. Förvaringsmöjligheterna är goda tack vare bostadens egna lösningar samt två externa förråd – ett på tomten och ytterligare ett i anslutning till föreningens gemensamma tvättstuga.

I Malmslätt finns ett brett serviceutbud med vårdcentral, apotek, matbutik, bibliotek, restauranger, skolor och förskolor inom bekvämt avstånd. På promenadavstånd ligger idrottsanläggningen Hellgrenshagen med elljusspår och utegym. För den padelintresserade finns även MAIK Padel med tre bokningsbara banor. Området erbjuder smidiga kommunikationer med belysta cykelvägar, och till Linköpings universitet cyklar du på cirka tio minuter. Goda bussförbindelser tar dig enkelt till centrala Linköping samt Universitetet/Mjärdevi.

Välkommen att kontakta ansvarig mäklare för ytterligare information och visning!

Visningar

Malmslätt, Linköping

Björkliden 56

Lägenhet3 rok79,50

Mäklare

Tjänster

Bolån

Räkna på bolån för Björkliden 56
nordeaAlltid personlig ränta på ditt bolånRäkna här
Jämför bolån från olika banker!
lanekollPersonlig hjälp hela vägen hem!Räkna direkt!
Bostaden du tittar på matchar med 2 457 personer i BoneoMatch™

Hur många vill köpa din bostad?

Vi matchar din bostad mot över 500 000 köpsugna personer som går på visningar just nu.

Loading...
Malmslätt, Linköping

Björkliden 56

Lägenhet3 rok79,50

Mäklare