linkedin pixel
Tillbaka till sökresultatet
Fullskärm
Fullskärm
Tillbaka till sökresultatet
Villa2 rok702 081 m² tomt

Fakta om bostaden

  • Pris2 100 000 kr
  • BoendetypVilla
  • Antal rum2 rok
  • Boyta70
  • UpplåtelseformFriköpt
  • Tomtarea2 081 m²
  • Kvadratmeterpris (kr/m²) 30 000 kr/m²
  • Dagar på Boneo20 dagar

Beskrivning

Det är inte ofta det händer – men nu ges möjligheten att förvärva ett charmigt fritidshus på friköpt tomt med vacker sjöutsikt på attraktiva Sämsholm!

På Ekudden 96 erbjuds ett perfekt läge för dig som söker lugnet, naturen och närheten till sjön. Här bor du fritt och avskilt utan grannar tätt inpå, med skogen och härliga strövområden precis runt knuten. En kort promenad till bad och fiske, och endast 50 meter till allmänning med brygga och båtplats. Ett sant paradis för naturälskaren.

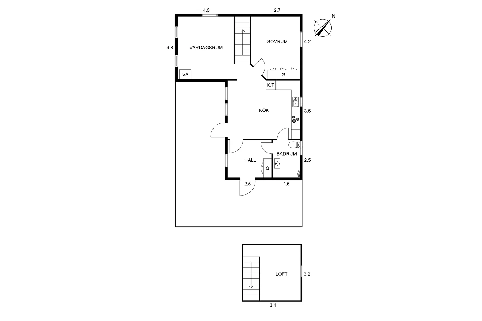
Stugan om ca 70 kvm är välplanerad och inbjudande. Det trivsamma köket har generös storlek och en underbar vy mot sjön från matplatsen. Storstugan/vardagsrummet imponerar med ryggåstak och braskamin som skapar både rymd och mysfaktor. Här finns även ett bra sovrum, ett praktiskt sovloft samt duschrum. Om ny ägare hellre vill bygga om till ett större permanenthus finns bygglov för tillbyggnad. Total area 151 kvm.

Från den väl tilltagna altanen njuter du av en härlig utsikt över sjön – en självklar plats för morgonkaffet, långa sommarkvällar och avkoppling i solnedgången.

Detta är den perfekta tillflyktsorten för dig som vill ha lugn och ro, men ändå med bekvämt avstånd till stadens utbud. Göteborg nås på drygt en timme, Borås på cirka 45 minuter och Falköping på omkring 40 minuter.

Välkommen att upptäcka Sämsholm och dess natursköna omgivningar. Här kan fritidsdrömmen bli verklighet!
Säm, Herrljunga

Sämsholm Ekudden 96

Villa2 rok702 081 m² tomt

Mäklare

banner

Tjänster

Bolån

Räkna på bolån för Sämsholm Ekudden 96
nordeaAlltid personlig ränta på ditt bolånRäkna här
Jämför bolån från olika banker!
lanekollPersonlig hjälp hela vägen hem!Räkna direkt!

Hur många vill köpa din bostad?

Med BoneoMatch™ ser du hur många som letar efter en liknande bostad i ditt område.

Läs mer
Loading...
Säm, Herrljunga

Sämsholm Ekudden 96

Villa2 rok702 081 m² tomt

Mäklare