linkedin pixel
Tillbaka till sökresultatet
Fullskärm
Fullskärm
Tillbaka till sökresultatet
externalLinkIconAlla bilder
På G!
Först på Boneo
Villa7 rok180 + 12811 m² tomt

Fakta om bostaden

  • Pris4 495 000 kr
  • BoendetypVilla
  • Antal rum7 rok
  • Boyta180
  • UpplåtelseformFriköpt
  • Biarea12
  • Tomtarea811 m²
  • Kvadratmeterpris (kr/m²) 24 972 kr/m²
  • Byggnadsår1920

Beskrivning

Vem har sagt att ett liv på landet måste innebära en hundraårig länga med renoveringsbehov? Mellan vidsträckta åkerfält på Landsvägen utanför Anderslöv bevisas motsatsen.
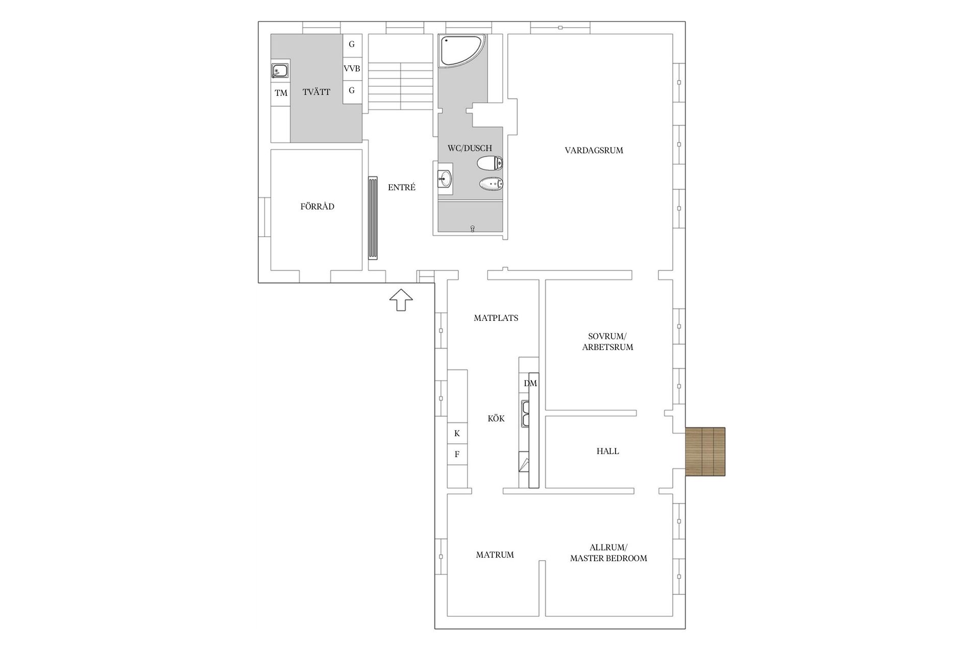
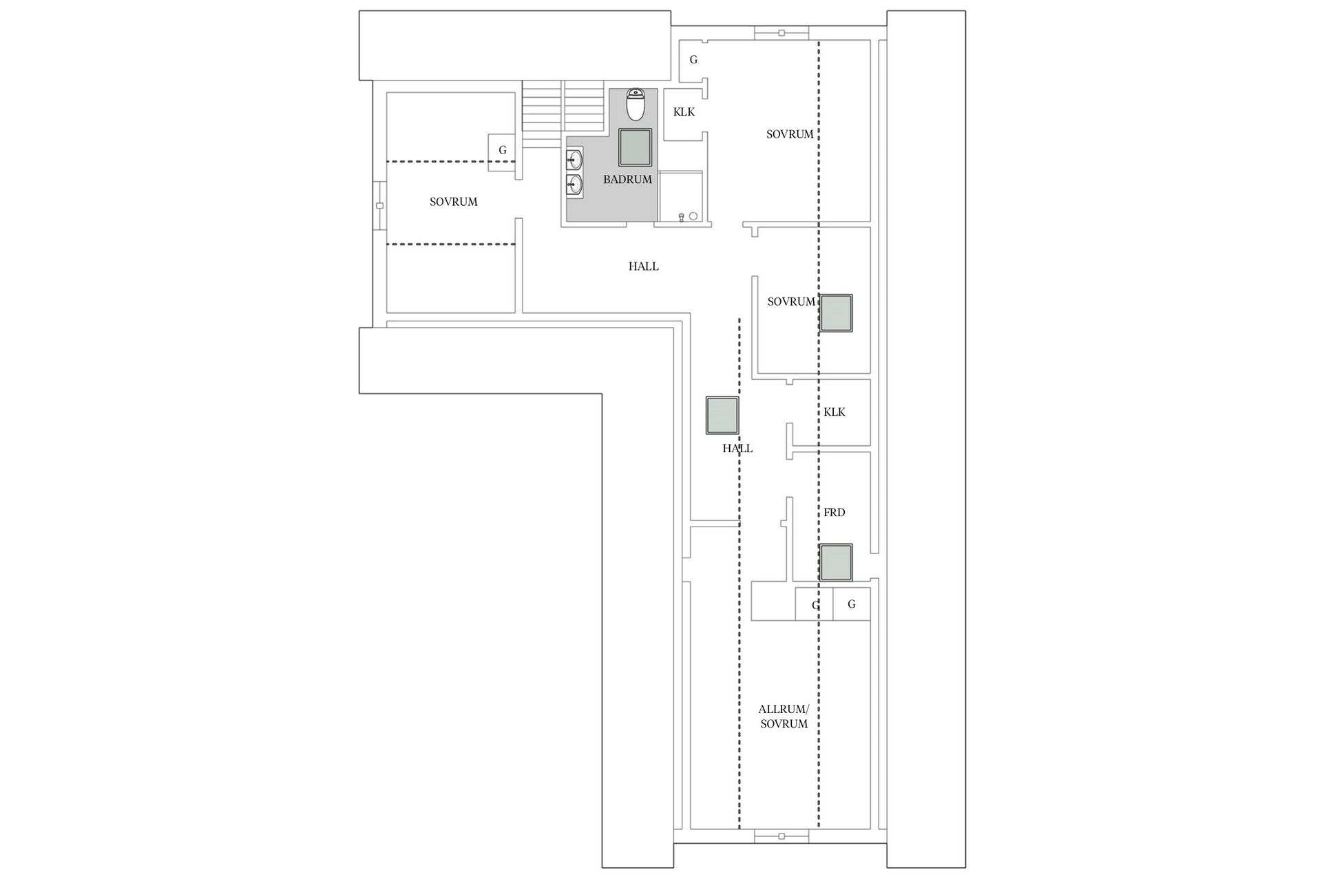
Interiört överraskas ni av en imponerande boyta på hela 180 kvadratmeter, fördelade på två plan och sju rum. Balansen mellan sociala och privata rum är idealisk och ger även fina förutsättningar för egenföretagaren som kan ha en lite avskild del i huset. Just den anpassningsbara planlösningen är ett av husets starka fördelar. Sällskapsytorna finns det flera av beroende på hur många sovrum man behöver. I vardagsrummet erbjuder en öppen spis som både ger värme och mysfaktor. Två exklusiva badrum som ligger på varsitt plan. Ett inflyttningsklart och bekvämt boende i fridfulla omgivningar.

Grönby är en småort i Trelleborgs kommun och kyrkby i Grönby socken på Söderslätt i Skåne. Grönby var tidigare ett livligt centrum med bland annat möllor, smedjor, vagnmakeriverkstad och pottmakeri. Byn är fortfarande stor och sträcker sig utmed vägen upp mot Norra Grönby. Grönby erbjuder en Gårdscharkuteri se; https://www.gronbychark.com och ligger 3 km från Anderslöv.

Anderslöv erbjuder bra med pendlingsläge, bussen har bla anslutning i Ö Grevie till Pågatåget som går mellan Trelleborg-Helsingborg. I byn finns bl a gym, förskola, skola F-9, vårdcentral, mataffärer, tandläkare, apotek, gym, utomhusbad, idrottsplats och Anita på Gästis Anderslövs. I en toppmodernt hus med spännande planlösning och flertal rum lever ni det stillsamma livet på landet utan ständigt underhåll. Husets framsida har en härlig gräsmatta som bjuder in till sommarlek och en vacker elgrind som välkomnar er in. Härifrån har vi finingången till huset. Uterummet som ligger på baksidan har ingång nära husets vardagsingång vilket ger dig/er enkelt möjligheten att njuta av era måltider här i uterummet och förlänga de varma och sköna dagarna utomhus. Här finns även en stenlagd uteplats samt gräsmatta med utsikt mot åkern. Taket är beklätts med solpaneler i två väderstreck vilket innebär väldigt låg driftkostnad för huset.

Välkomna på visning!
På G!
Först på Boneo
Grönby, Trelleborg

Landsvägen 2437

Villa7 rok180 + 12811 m² tomt

Mäklare

Mäklare

AwardBadge
Årets Mäklarkedja 2024, 2025
Vinnare av Boneo Awards
banner

Tjänster

Bolån

Räkna på bolån för Landsvägen 2437
nordeaAlltid personlig ränta på ditt bolånRäkna här
Jämför bolån från olika banker!
lanekollPersonlig hjälp hela vägen hem!Räkna direkt!
Bostaden du tittar på matchar med 443 personer i BoneoMatch™

Hur många vill köpa din bostad?

Vi matchar din bostad mot över 500 000 köpsugna personer som går på visningar just nu.

Loading...
På G!
Först på Boneo
Grönby, Trelleborg

Landsvägen 2437

Villa7 rok180 + 12811 m² tomt

Mäklare

Mäklare

AwardBadge
Årets Mäklarkedja 2024, 2025
Vinnare av Boneo Awards