linkedin pixel
Tillbaka till sökresultatet
Fullskärm
Fullskärm
Tillbaka till sökresultatet
Nyproduktion
Lägenhet5 rok124

Fakta om bostaden

  • Pris2 895 000 kr
  • BoendetypLägenhet
  • Antal rum5 rok
  • Boyta124
  • UpplåtelseformBostadsrätt
  • Kvadratmeterpris (kr/m²) 23 347 kr/m²
  • Byggnadsår2026
  • Dagar på Boneo26 dagar
  • Våning 0 av 2
  • HissNej
  • Avgift till föreningen5 900 kr/mån

Beskrivning

Välkommen till ett nytt bostadsprojekt på Västeräng i Skurup!

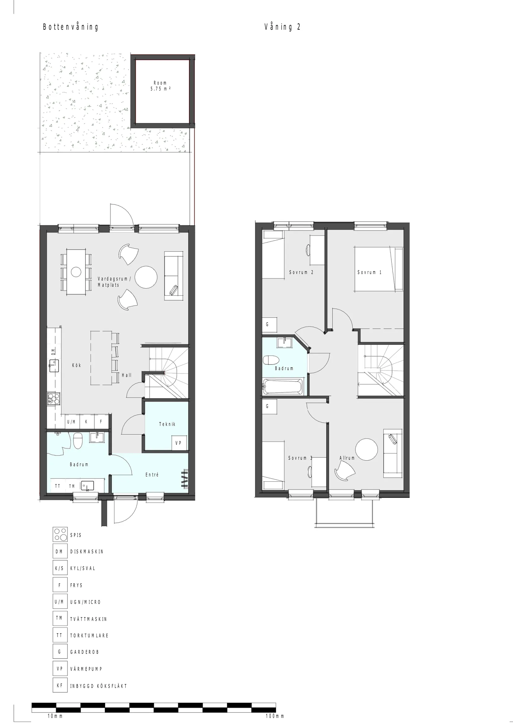
På Västeräng i Skurup uppför Stenhusspecialisten 16 moderna radhus om 124 kvm, fördelade på två plan. Här skapas hem som kombinerar genomtänkt arkitektur med funktionella ytor och en vardag som är enkel att trivas i – från första dagen.

Bostäderna är planerade för ett bekvämt och modernt liv, med ljusa rum, öppna sällskapsytor och materialval som håller över tid. Eftersom allt är helt nytt kan du flytta in utan att behöva tänka på renoveringar eller större underhåll, och istället lägga tiden på att bo, leva och forma ditt hem. De moderna lösningarna ger dessutom en energieffektiv bostad med låga driftkostnader och en trygghet som följer med nybyggda hem.

Västeräng är ett helt nytt och barnvänligt område där mycket redan är färdigställt. Förskola och en stor park med flera lekområden finns på plats och bidrar till en trygg och levande miljö. Under hösten 2026 öppnar en helt ny skola och idrottsanläggning, vilket gör området ännu mer attraktivt för barnfamiljer och för framtiden.

Radhusen säljs med bostadsrätt och erbjuder välplanerade ytor i två plan. Entréplanet rymmer hall med goda förvaringsmöjligheter, badrum samt kök i öppen planlösning mot vardagsrummet – en naturlig samlingspunkt för familj och vänner. På övre plan finns tre sovrum, ytterligare ett badrum samt ett allrum som enkelt kan anpassas efter familjens behov.

Till varje bostad hör egen parkeringsplats, separat förråd i den egna trädgården och en privat uteplats, vilket skapar en fin balans mellan sociala ytor och privatliv – både inne och ute.

Läget på Västeräng ger närhet till både vardag och fritid. Kommunikationerna är smidiga med E65 och tåg inom räckhåll, vilket gör pendlingen enkel mot Malmö och Ystad. Samtidigt finns ett rikt service- och fritidsutbud med butiker, idrott, friluftsbad och vacker natur runt knuten. Utflyktsmål som Svaneholms Slott och kustmiljöerna kring Abbekås ger extra livskvalitet året runt.

Illustrationerna som visas är exempelbilder från tidigare genomfört projekt. Avvikelser kan förekomma i bostäderna som uppförs på Västeräng 2.
Nyproduktion
Skurup Västeräng 2, Skurup

Hus 12

Lägenhet5 rok124

Mäklare

banner

Tjänster

Bolån

Räkna på bolån för Hus 12
nordeaAlltid personlig ränta på ditt bolånRäkna här
Jämför bolån från olika banker!
lanekollPersonlig hjälp hela vägen hem!Räkna direkt!

Hur många vill köpa din bostad?

Med BoneoMatch™ ser du hur många som letar efter en liknande bostad i ditt område.

Läs mer
Loading...
Nyproduktion
Skurup Västeräng 2, Skurup

Hus 12

Lägenhet5 rok124

Mäklare