linkedin pixel
Tillbaka till sökresultatet
Fullskärm
Fullskärm
Tillbaka till sökresultatet
Budgivning pågår
Visa bud
Villa5 rok125 + 19426 m² tomt

Fakta om bostaden

  • Pris2 690 000 kr
  • BoendetypVilla
  • Antal rum5 rok
  • Boyta125
  • UpplåtelseformFriköpt
  • Biarea19
  • Tomtarea426 m²
  • Kvadratmeterpris (kr/m²) 21 520 kr/m²
  • Byggnadsår1990
  • Dagar på Boneo42 dagar

Beskrivning

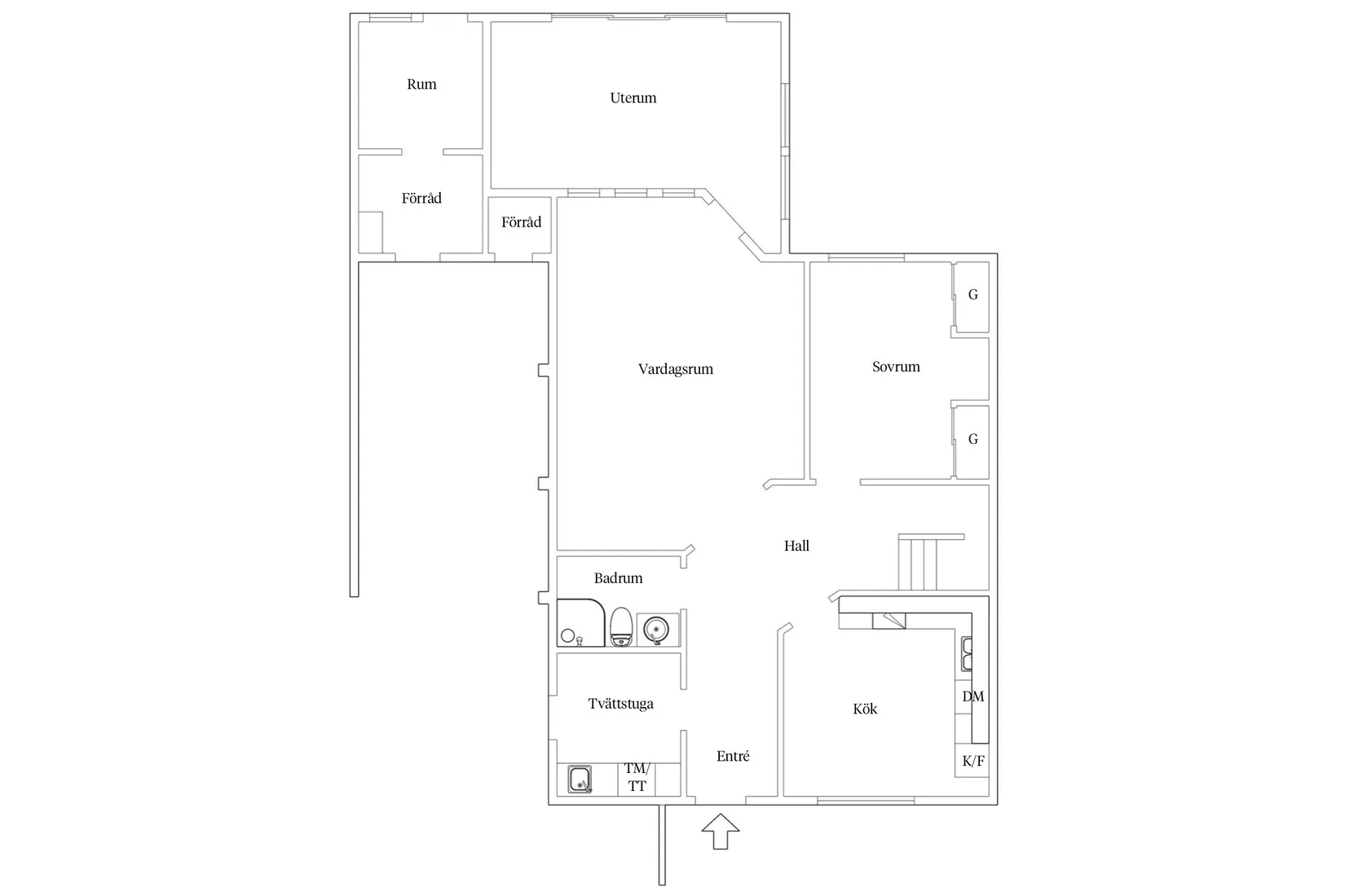
Välkommen till detta friköpta kedjehus om 125 kvm med ett härligt uterum om cirka 19 kvm beläget i ett lugnt och familjevänligt område i Stehag med närhet till allt som underlättar vardagen.

Huset erbjuder en funktionell planlösning med fyra sovrum vilket passar perfekt för den växande familjen eller för dig som önskar hemmakontor eller gästrum. Köket är fräscht och välutrustat med två generösa kyl- och frysskåp, diskmaskin samt gott om arbetsytor och förvaring. Här finns plats för både vardagsmatlagning och sociala middagar. Bostaden har två badrum, ett på vardera plan, båda i gott och fräscht skick. I den praktiska tvättstugan finns både tvättmaskin och torktumlare.

Bostaden har vattenburen uppvärmning samt FTX-ventilation vilket bidrar till ett behagligt inomhusklimat och god energieffektivitet. Bostaden har genomgått flera förbättringar. Det rymliga uterummet har uppgraderats med termoglas, isolerade väggar och tak samt stilren träpanel vilket gör det till en naturlig förlängning av huset och en plats att njuta av under stora delar av året. Dessförinnan har även cirkulationspumpen i värmepumpen bytts ut.

Utomhus finns flera trevliga ytor att njuta av. På framsidan finns trädäck samt en gruslagd yta, uppfarten är asfalterad och har goda parkeringsmöjligheter under carport. Bakom uppfarten finns praktiska förråd som erbjuder gott om förvaring. Baksidan bjuder på en generös gräsmatta samt ett trädäck i anslutning till uterummet vilket skapar en perfekt plats för grillkvällar, lek och avkoppling.

Läget är mycket attraktivt. Här bor du med promenadavstånd till skola, idrottsplats och fotbollsplan samt nära matbutik. För dig som pendlar finns mycket goda kommunikationer med tågstationen i Stehag inom bekvämt promenadavstånd. Vid stationen finns även en bussstation med smidiga bussförbindelser till bland annat Klippan och andra närliggande orter. Dessutom har man cykelavstånd till Ringsjön. Kort sagt ett välskött hem i ett lugnt och trivsamt område där familjen kan bo bekvämt med närhet till både service och kommunikationer.

Visningar

Budgivning pågår
Visa bud
Stehag, Eslöv

Klövabäcksvägen 7

Villa5 rok125 + 19426 m² tomt

Mäklare

Mäklare

AwardBadge
Årets Mäklarkedja 2024, 2025
Vinnare av Boneo Awards
banner

Tjänster

Bolån

Räkna på bolån för Klövabäcksvägen 7
nordeaAlltid personlig ränta på ditt bolånRäkna här
Jämför bolån från olika banker!
lanekollPersonlig hjälp hela vägen hem!Räkna direkt!
Bostaden du tittar på matchar med 492 personer i BoneoMatch™

Hur många vill köpa din bostad?

Vi matchar din bostad mot över 500 000 köpsugna personer som går på visningar just nu.

Loading...
Budgivning pågår
Visa bud
Stehag, Eslöv

Klövabäcksvägen 7

Villa5 rok125 + 19426 m² tomt

Mäklare

Mäklare

AwardBadge
Årets Mäklarkedja 2024, 2025
Vinnare av Boneo Awards