linkedin pixel
Fullskärm
Fullskärm
externalLinkIconAlla bilder
Budgivning pågår
Visa bud
Lägenhet2 rok37

Fakta om bostaden

  • Pris3 995 000 kr
  • BoendetypLägenhet
  • Antal rum2 rok
  • Boyta37
  • UpplåtelseformBostadsrätt
  • Kvadratmeterpris (kr/m²) 107 973 kr/m²
  • Byggnadsår1939
  • Dagar på Boneo5 dagar
  • Våning 2
  • HissJa
  • Avgift till föreningen2 166 kr/mån

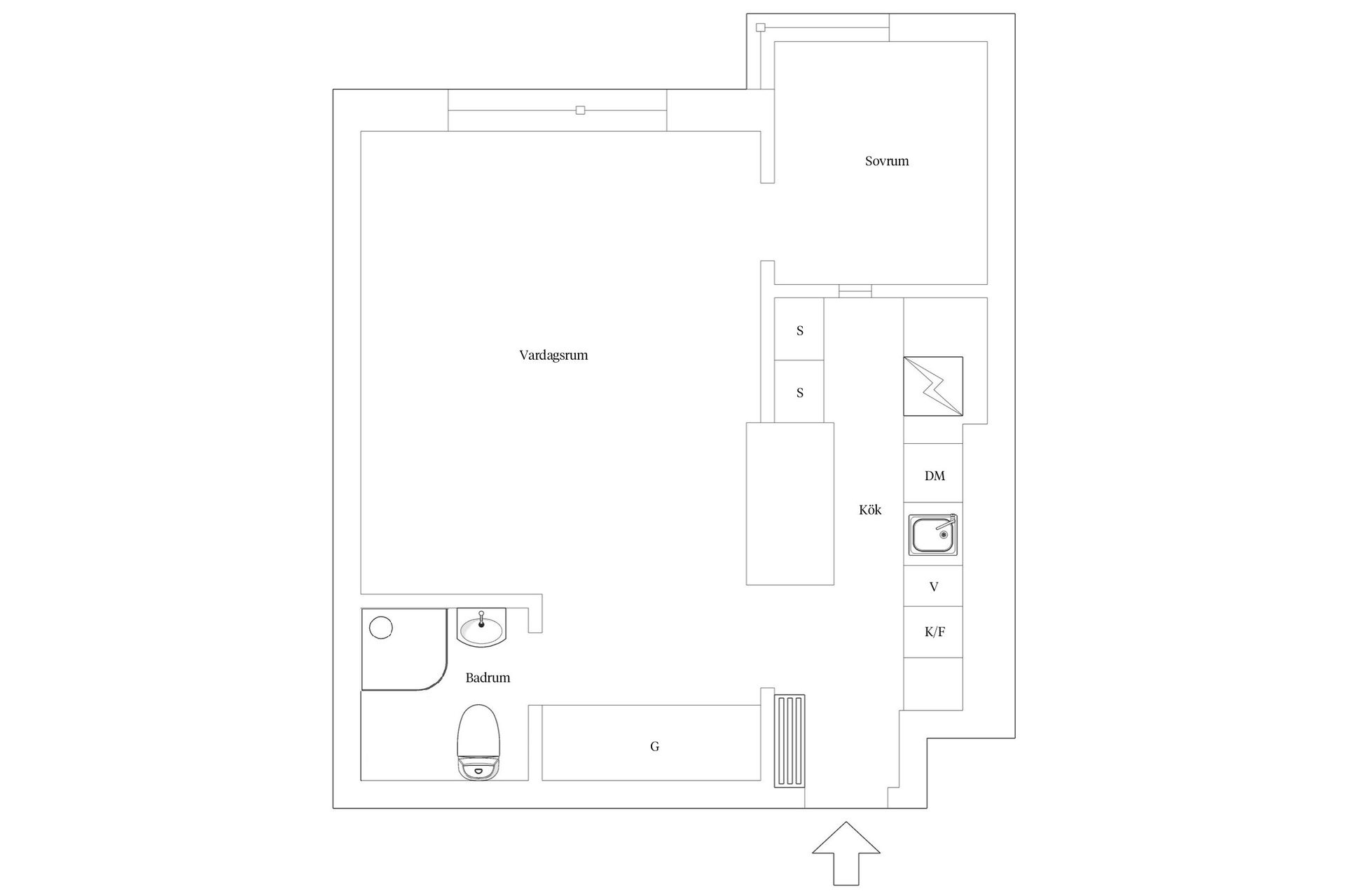
Beskrivning

Charmig tvåa

Välkommen till en välplanerad och ljus bostad med social och inbjudande planlösning i attraktivt läge vid Fridhemsplan och Västermalmsgallerian. Här bor du med närhet till ett brett utbud av restauranger, caféer, shopping och utmärkta kommunikationer – med populära Les Petits Boudins som granne i huset.

Redan i hallen möts du av en stilren och välkomnande entré med klinkergolv samt vitmålade väggar och tak. Här finns gott om plats för avhängning och förvaring.

Bostadens hjärta utgörs av det luftiga vardagsrummet i öppen planlösning mot köket. Ett stort fönsterparti med fönsterbänk i sten ger ett fint ljusinsläpp och förstärker den rymliga känslan. Här finns plats för både soffgrupp och matbord, vilket skapar en naturlig samlingspunkt för såväl vardag som sociala tillfällen.
Köket erbjuder generösa arbetsytor, god förvaring samt full maskinell utrustning med kyl/frys, diskmaskin, mikrovågsugn, vinkyl och fläkt. Det svarta kaklet ovan arbetsbänken ger ett stilrent och samtida uttryck.

Sovrummet är rofyllt med vackert ljusinsläpp och plats för större säng.

Badrummet är helkaklat i ljusa toner med grått klinkergolv och utrustat med dusch, WC, handfat samt goda förvaringsmöjligheter i både kommod och spegelskåp.

Sammanfattningsvis en mycket trivsam bostad med genomgående fina materialval, god förvaring och en planlösning som maximerar både yta och funktion – i ett av Kungsholmens mest eftertraktade lägen.
Fridhemsplan är en knutpunkt på Kungsholmen med två tunnelbanelinjer och inte mindre än tre av de blå stadsbussarna.
Närhet till flertalet matbutiker, uppskattade caféer och restauranger, samt naturområden. Området har flera pubar och många populära restauranger såsom AG, Bar Abrovinsch och Boteco da Silvania. Trappan ner till Kungsholms Strand tar dig snabbt och enkelt ner till de omtyckta promenadstråken och vidare till Hornsbergs Strand, Fredhäll med badklippor och bort till Norr Mälarstrand.
Budgivning pågår
Visa bud
Kungsholmen - Fridhemsplan, Stockholm

Fridhemsgatan 60, 2tr

Lägenhet2 rok37

Mäklare

Mäklare

AwardBadge
Årets Mäklarkedja 2024, 2025
Vinnare av Boneo Awards
banner

Tjänster

Bolån

Räkna på bolån för Fridhemsgatan 60, 2tr
nordeaAlltid personlig ränta på ditt bolånRäkna här
Jämför bolån från olika banker!
lanekollPersonlig hjälp hela vägen hem!Räkna direkt!
Bostaden du tittar på matchar med 1 954 personer i BoneoMatch™

Hur många vill köpa din bostad?

Vi matchar din bostad mot över 500 000 köpsugna personer som går på visningar just nu.

Loading...
Budgivning pågår
Visa bud
Kungsholmen - Fridhemsplan, Stockholm

Fridhemsgatan 60, 2tr

Lägenhet2 rok37

Mäklare

Mäklare

AwardBadge
Årets Mäklarkedja 2024, 2025
Vinnare av Boneo Awards