linkedin pixel
Tillbaka till sökresultatet
Fullskärm
Fullskärm
Tillbaka till sökresultatet
På G!
Först på Boneo
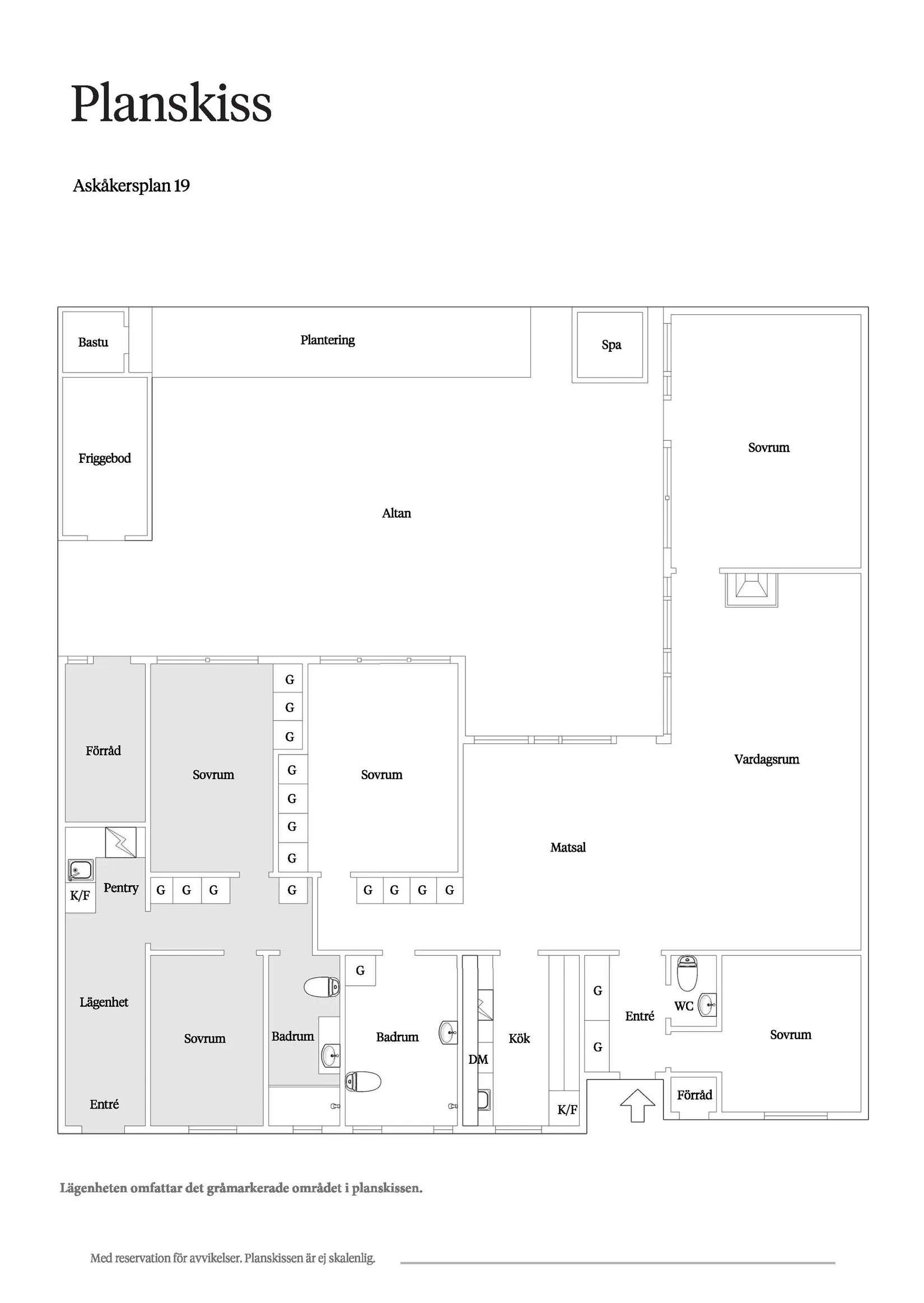
Villa6 rok138 + 16380 m² tomt

Fakta om bostaden

  • Pris6 490 000 kr
  • BoendetypVilla
  • Antal rum6 rok
  • Boyta138
  • UpplåtelseformFriköpt
  • Biarea16
  • Tomtarea380 m²
  • Kvadratmeterpris (kr/m²) 47 029 kr/m²
  • Byggnadsår1967

Beskrivning

Välkommen till detta trivsamma och mycket välplanerade radhus i hjärtat av populära Askim. Ett hem som kombinerar generösa ytor, flexibel planlösning och ett fantastiskt läge nära hav, natur och skolor.

Här möts du av en insynsskyddad atriumgård, en privat oas med gott om plats för stora middagar, sommarens grillkvällar och avkopplande stunder i solen. Runt huset finns dessutom flera uteplatser i olika väderstreck, vilket ger möjlighet att följa solen från morgon till kväll. Gavelläget ger dessutom en extra tomtyta och en luftig känsla runt bostaden.

Invändigt välkomnas du av en ljus och inbjudande hall med siktlinje mot bostadens generösa umgängesytor. De sociala delarna är i öppen planlösning, men med en naturlig rumsindelning som skapar både rymd och en ombonad känsla. Här finns en mysig kamin som blir hemmets självklara samlingspunkt under årets kallare månader.
Köket är stilrent och ljust med fönster mot framsidan. Den vita köksinredningen kombineras smakfullt mörka bänkskivor, ljust kakel och en varm parkett , en tidlös och varm helhet med gott om arbetsytor och förvaring.

Bostaden erbjuder idag fem sovrum ( två i lägenheten) i varierande storlek, Perfekt för stora familjen, för dig som arbetar hemifrån eller för dig som önskar hobbyrum eller gästrum. Planlösningen ger stora möjligheter att anpassa efter just era behov.

I anslutning till hallen finns en gästtoalett. Från mitten av huset nås ett större badrum med tvätt och torktumlare. Samtliga rum, förutom gästtoaletten, har fönster som ger ett fint ljusinsläpp och vetter mot antingen framsidan eller mot atriumgården. Förvaringsmöjligheterna är mycket goda.

Som en extra och mycket attraktiv bonus har radhuset även en egen separat lägenhet, perfekt för generationsboende, uthyrning eller tonåringen som önskar ett mer självständigt boende. Lägenheten disponeras med eget badrum, kök, ett mindre vardagsrum med förvaring/garderober samt ett sovrum. En flexibel lösning som skapar både möjligheter och mervärde.


Två parkeringsplatser finns reserverade på samfällighetens mark och i anslutning till ena parkeringen erbjuds egen elstolpe.

Här bor ni i ett barnvänligt och omtyckt område med närhet till flera förskolor och skolor. På promenadavstånd når ni salta bad, vackra kuststråk och grönskande natur. Samtidigt har ni smidiga kommunikationer och all tänkbar service och handel inom bekvämt räckhåll.








Visningar

På G!
Först på Boneo
Askim , Göteborg

Askåkersplan 19

Villa6 rok138 + 16380 m² tomt

Mäklare

Mäklare

AwardBadge
Årets Mäklarkedja 2024, 2025
Vinnare av Boneo Awards
banner

Tjänster

Bolån

Räkna på bolån för Askåkersplan 19
nordeaAlltid personlig ränta på ditt bolånRäkna här
Jämför bolån från olika banker!
lanekollPersonlig hjälp hela vägen hem!Räkna direkt!
Bostaden du tittar på matchar med 527 personer i BoneoMatch™

Hur många vill köpa din bostad?

Vi matchar din bostad mot över 500 000 köpsugna personer som går på visningar just nu.

Loading...
På G!
Först på Boneo
Askim , Göteborg

Askåkersplan 19

Villa6 rok138 + 16380 m² tomt

Mäklare

Mäklare

AwardBadge
Årets Mäklarkedja 2024, 2025
Vinnare av Boneo Awards