linkedin pixel
Tillbaka till sökresultatet
Fullskärm
Fullskärm
Tillbaka till sökresultatet
externalLinkIconAlla bilder
På G!
Först på Boneo
Lägenhet4 rok121

Fakta om bostaden

  • Pris5 500 000 kr
  • BoendetypLägenhet
  • Antal rum4 rok
  • Boyta121
  • UpplåtelseformBostadsrätt
  • Kvadratmeterpris (kr/m²) 45 455 kr/m²
  • Byggnadsår2007
  • Våning 1 av 2
  • HissNej
  • Avgift till föreningen7 642 kr/mån

Beskrivning

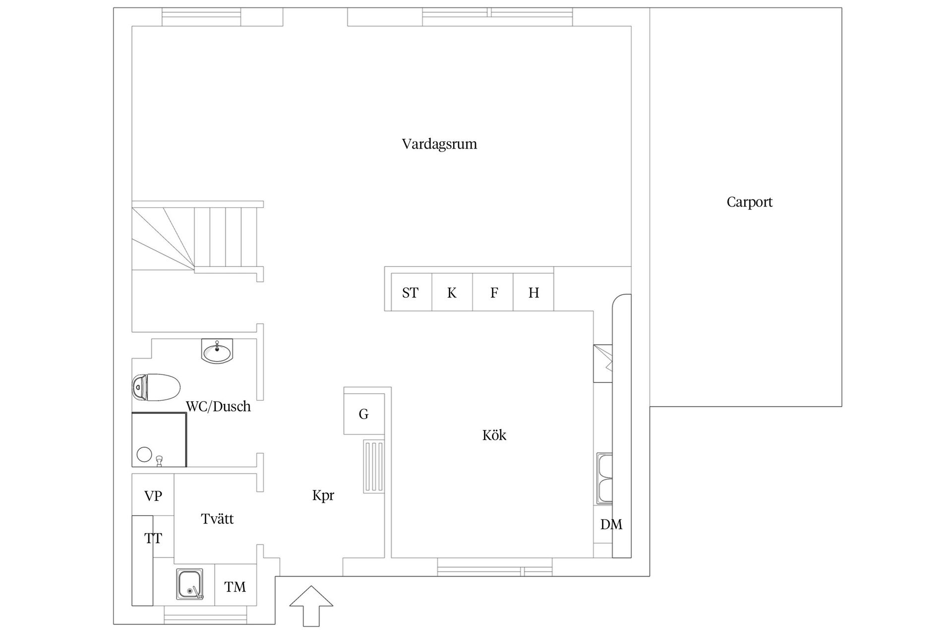
Välkommen till detta moderna och påkostade bostadsrättsradhus om ca 121 kvm, i populära trädgårdsstaden Hildedal. Här bor du i en lugn oas med villakänsla nära Göteborgs innerstad. Underbart läge med en av de en fantastisk uteplats med både altan och gräsmatta. Här erbjuds du sol under hela dagen. Egen parkering med plats för två bilar, och till och med en tredje beroende på storlek varav en under carport. Stor och rymlig uteplats på trädäck samt gräsmatta. Uteplatsen vetter mot ett soligt söderläge. Här finns även ett rymligt förråd. Den andra uteplatsen med gräsmatta nås från framsidan. Denna bostad är uppförd 2006-2007 och är genomgående ljus och rymlig. Lägenheten har en effektiv planlösning som gör det till en bostad att trivas i. Fina och genomtänkta val med smakfulla detaljer på båda plan ger en påtaglig kvalitetskänsla. På nedre plan ges goda möjligheter till umgänge i kök och vardagsrum. Övre plan innehåller 3 st sovrum, ett av två badrum och en rymlig klädkammare. I hallen på första plan finns det andra badrummet samt en separat tvättavdelning.

Trädgårdsstaden Hildedal med sina gröna omgivningar är en modern idyll som lockar många. Området är lugnt och barnvänligt med närhet till barnomsorg, fina strövområden, sportanläggning, golfbanor och köpcentrum. Mycket goda kommunikationer genom hållplatser för stombuss och vanlig buss inom bekvämt avstånd. En bostad för er som söker ett kvalitetsboende med ett mycket bra läge i området.
På G!
Först på Boneo
Hildedal, Göteborg

Taklöksvägen 25

Lägenhet4 rok121

Mäklare

Mäklare

AwardBadge
Årets Mäklarkedja 2024, 2025
Vinnare av Boneo Awards
banner

Tjänster

Bolån

Räkna på bolån för Taklöksvägen 25
nordeaAlltid personlig ränta på ditt bolånRäkna här
Jämför bolån från olika banker!
lanekollPersonlig hjälp hela vägen hem!Räkna direkt!
Bostaden du tittar på matchar med 110 personer i BoneoMatch™

Hur många vill köpa din bostad?

Vi matchar din bostad mot över 500 000 köpsugna personer som går på visningar just nu.

Loading...
På G!
Först på Boneo
Hildedal, Göteborg

Taklöksvägen 25

Lägenhet4 rok121

Mäklare

Mäklare

AwardBadge
Årets Mäklarkedja 2024, 2025
Vinnare av Boneo Awards