linkedin pixel
Tillbaka till sökresultatet
Fullskärm
Fullskärm
Tillbaka till sökresultatet
externalLinkIconAlla bilder
På G!
Först på Boneo
Radhus5 rok124 + 4235 m² tomt

Fakta om bostaden

  • BoendetypRadhus
  • Antal rum5 rok
  • Boyta124
  • UpplåtelseformFriköpt
  • Biarea4
  • Tomtarea235 m²
  • Byggnadsår2006

Beskrivning

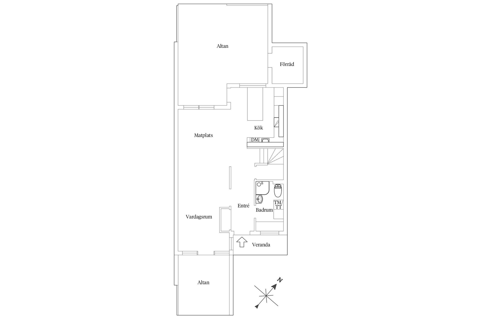
Välkommen till detta tilltalande radhus i attraktiva Sjöhagen. Läget får anses vara bästa möjliga, med en bilfri innergård och naturen tätt inpå. Här slingrar sig populära radhus och villakvarter längs naturens terräng, med svalkande bad och naturen inpå knuten. Detta hem fördelar sig över två plan och har en boarea om ca 128 kvm vilket skapar potential för storfamiljen. Ett få förunnat boende med generösa ytor som möter vackra detaljer och modern funktion i kök och bad på allra bästa sätt. Planlösningen är socialt och modernt disponerad med en halvöppen planlösning mellan kök och vardagsrum. Den öppna ytan skapar en fantastisk rymd och ett generöst ljusinsläpp till hela bostaden via de stora glaspartierna som vetter ut mot de båda uteplatserna. Ljusa väggar möter en slipad och vitpigmenterad ekparkett som löper genom hela bostaden. Nedre våningsplanet har även vattenburen golvvärme.

Entréplan har en halvöppen och social planlösning mellan kök, matplats och vardagsrum. Köket rakt fram renoverades 2018 och är signerat Länghemskök. Köket är påkostat med bänkskiva i carraramarmor och helintegrerad maskinpark. Här finns följande utrustning; 90 cm induktionshäll, ugn, 90 cm fläkt, mikro, diskmaskin, kyl, frys och avfallskvarn. Köksön bidrar både med förvaring och sällskaplig närvaro. I anslutning till köket når ni den träbelagda altanen. Plats för loungegrupp, blomsterarrangemang och den viktiga grillen. Här finns en lekstuga, robotgräsklippare och plats för studsmattan. Sol långt fram på kvällen. I vardagsrumsdelen har man tagit ner en vägg för att skapa yta för fest, mingel och dans. Här ryms stort matsalsbord, soffa med tillhörande möblemang, tv-möbel, bokhyllor och läshörna. Rummet ihop med köket har fönster i motsatta väderstreck vilket skapar ett helt fantastiskt ljusflöde genom hemmet. Entréplanet har också ett badrum. Vitt kakel möter gråa klinkerplattor. Här finns dusch, wc, handfat med kommod och ovanhängande spegel samt en praktiskt tvättavdelning med tvättmaskin, torktumlare och en värmepump Nibe fighter 310P.

Trappan som leder er upp till övre plan är vitmålad och är inbyggd för ytterligare förvaring. Här möts ni av ett stort och härligt allrum. För den stora familjen finns möjlighet för ytterligare sovrum. Från allrummet tar man sig ut på den härliga balkongen. Balkongen har sol under förmiddag fram till lunch. Här njuter ni av morgonkaffet mot den lugna innergården. Master bedroom rymmer en dubbelsäng och har tre garderober som löser förvaringen. De två övriga sovrummen är jämnstora varav det ena har två platsbyggda garderober. Plats för säng och skrivbordsmöbel. På övreplan finner man det stora badrummet. Vita kaklade väggar möter ett grått klinkergolv. Här finns wc, handfat med kommod, spegel med inbyggda spotlights samt bubbelbad.

Sjöhagen är ett familjevänligt område i attraktiva Sjömarken. Som boende bor man med gångavstånd till den vackra naturen och Sjömarkenskolan som har årskurs f-6. Området består till stor del av nyare bebyggelse och till största del av villor. Sjömarken präglas också starkt av närheten till Viaredssjön och de fina bad- och fiskemöjligheterna. Samhället ligger väster om Borås och granne med Sandared där man har tillgång till allmän service och högstadieskola. Nära inpå ligger även Citygross. Bor du i Sjömarken kan du arbetspendla med buss, bil och cykel. På fina cykelvägar tar du dig snabbt till vad näromårdet har att erbjuda eller in till Borås. Kommunikationerna i området är ypperliga. Flera hållplatser trafikeras av linje 5 och 151.

Visningar

På G!
Först på Boneo
Sjömarken, Borås

Sjöhagsvägen 63

Radhus5 rok124 + 4235 m² tomt

Mäklare

Mäklare

AwardBadge
Årets Mäklarkedja 2024, 2025
Vinnare av Boneo Awards
banner

Tjänster

Bolån

Räkna på bolån för Sjöhagsvägen 63
nordeaAlltid personlig ränta på ditt bolånRäkna här
Jämför bolån från olika banker!
lanekollPersonlig hjälp hela vägen hem!Räkna direkt!
Bostaden du tittar på matchar med 2 337 personer i BoneoMatch™

Hur många vill köpa din bostad?

Vi matchar din bostad mot över 500 000 köpsugna personer som går på visningar just nu.

Loading...
På G!
Först på Boneo
Sjömarken, Borås

Sjöhagsvägen 63

Radhus5 rok124 + 4235 m² tomt

Mäklare

Mäklare

AwardBadge
Årets Mäklarkedja 2024, 2025
Vinnare av Boneo Awards