linkedin pixel
Tillbaka till sökresultatet
Fullskärm
Fullskärm
Tillbaka till sökresultatet
externalLinkIconAlla bilder
På G!
Först på Boneo
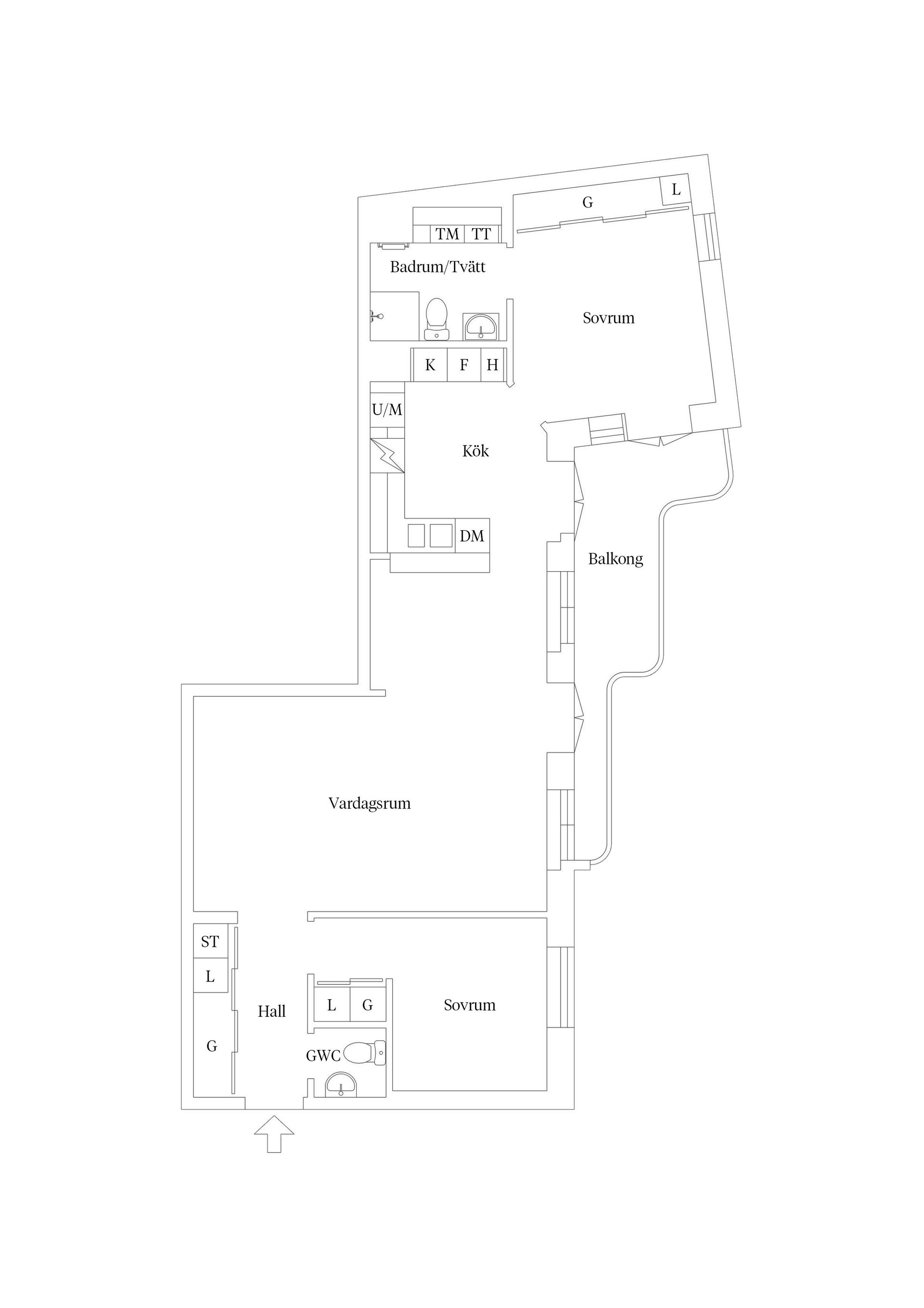
Lägenhet3 rok80

Fakta om bostaden

  • Pris5 495 000 kr
  • BoendetypLägenhet
  • Antal rum3 rok
  • Boyta80
  • UpplåtelseformBostadsrätt
  • Kvadratmeterpris (kr/m²) 68 688 kr/m²
  • Byggnadsår2021
  • Våning 6 av 8
  • HissJa
  • Avgift till föreningen6 115 kr/mån

Beskrivning

Klättrande rådhusvin omsluter den tegelbeklädda huskroppen som är ett välkänt inslag på Davidshallstorg. Det gamla polishuset är onekligen en kulturskatt som på nytt har skapat en historia, i detta fall som bostadshus med påkostade lägenheter. Att en så omfattande ombyggnation har gjorts kan inte anas det minsta från gatan. Husets fasad mot torget är sig på pricken likt. Polishuset uppfördes 1934 efter ritningar av Frans Evers och användes av polisen fram till 2015. Därefter genomfördes en omfattande ombyggnation till dagens Brf Neo, där historisk karaktär möter modern komfort. På den pittoreska innergården ligger de nybyggda gårdshusen där den aktuella bostaden är belägen. Utöver bostäder erbjuder föreningen faciliteter som övernattningsrum med tillhörande uteplats, gemensam takterrass och ett vackert orangeri med direktutgång till gården och tillhörande pentry samt en festlokal med kök i den gamla, anrika ordersalen.

På sjätte våningen i ett av föreningens gårdshus finner du denna väldisponerade trerummare med stilren boendemiljö, generöst tilltagna sällskapsytor och vackert ljusinsläpp från stora fönsterpartier mot öster och söder. Kök och vardagsrum förenas i en social, öppen planlösning med gott om plats för sociala sammankomster och utgång till en härlig hörnbalkong i sydost som bjuder på utsikt mot föreningens innergård. Utöver detta erbjuder bostaden ett rymligt badrum med tvättmöjligheter, ett praktiskt gäst-WC och två gårdsvända sovrum. Från hemmets master bedroom nås såväl balkong som badrum. Goda förvaringsmöjligheter erbjuds i flertalet garderober och i källarförrådet som tillhör bostaden.

Att så många lockas att bosätta sig just runt Davidshallstorg finns det många goda skäl till. Här bor du mitt i stan med gångavstånd till precis allt men i ett skönt, lugnt tempo. Livet runt torget påminner lite om italiensk piazza där folk strosar runt i små personliga butiker, tar en paus för en kopp kaffe, ett glas vin eller en god bit mat på en av många uteserveringar. Utbudet är stort men charmigt. För längre promenader lockar Kungsparken och Pildammsparken med dess fina promenadstråk. Utmärkta kommunikationer erbjuds via innerstadsbussar samt Citytunneln vid Triangeln. Köpcentret Triangeln lockar runt hörnet med dess goda shoppingmöjligheter. För den kulturintresserade nås operan och konsthallen på några minuters promenadavstånd.

Välkommen på visning!

Visningar

På G!
Först på Boneo
Davidshall, Malmö

Storgatan 43H

Lägenhet3 rok80

Mäklare

Mäklare

AwardBadge
Årets Mäklarkedja 2024, 2025
Vinnare av Boneo Awards
banner

Tjänster

Bolån

Räkna på bolån för Storgatan 43H
nordeaAlltid personlig ränta på ditt bolånRäkna här
Jämför bolån från olika banker!
lanekollPersonlig hjälp hela vägen hem!Räkna direkt!
Bostaden du tittar på matchar med 1 605 personer i BoneoMatch™

Hur många vill köpa din bostad?

Vi matchar din bostad mot över 500 000 köpsugna personer som går på visningar just nu.

Loading...
På G!
Först på Boneo
Davidshall, Malmö

Storgatan 43H

Lägenhet3 rok80

Mäklare

Mäklare

AwardBadge
Årets Mäklarkedja 2024, 2025
Vinnare av Boneo Awards