linkedin pixel
Fullskärm
Fullskärm
externalLinkIconAlla bilder
Lägenhet3 rok76

Fakta om bostaden

  • Pris1 195 000 kr
  • BoendetypLägenhet
  • Antal rum3 rok
  • Boyta76
  • UpplåtelseformBostadsrätt
  • Kvadratmeterpris (kr/m²) 15 724 kr/m²
  • Byggnadsår1959
  • Dagar på Boneo1 dag
  • Våning 1 av 4
  • HissNej
  • Avgift till föreningen5 668 kr/mån

Beskrivning

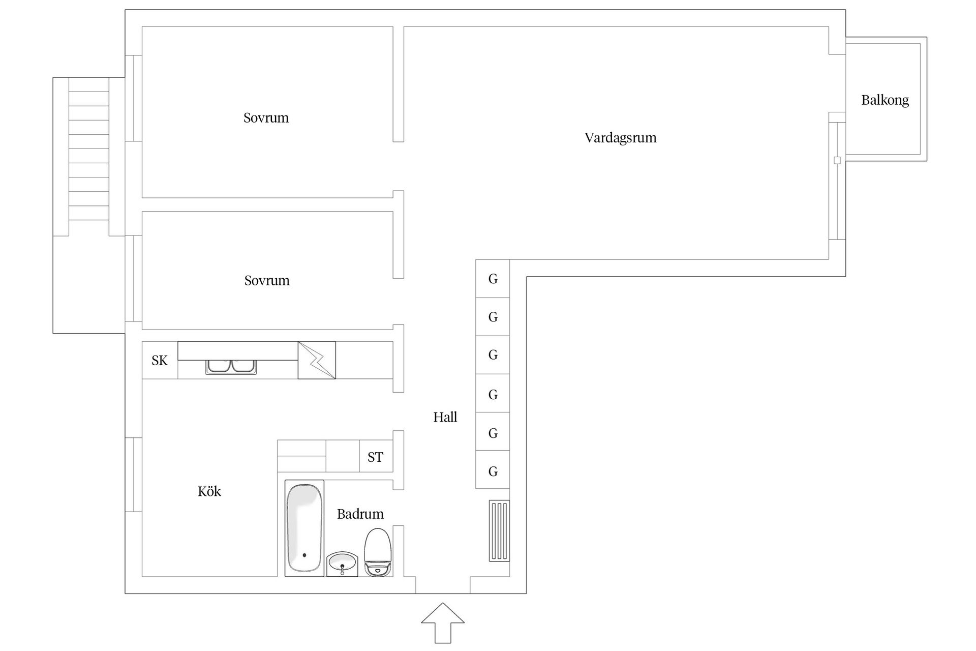
Välkommen till denna trivsamma och välplanerade 3:a om 76 kvm, bekvämt belägen på första våningen.

Bostaden erbjuder ett generöst vardagsrum med gott om plats för både soffgrupp och matplats, varifrån du når den stora inglasade balkongen i härligt västerläge – en perfekt plats att njuta av eftermiddagssolen. Planlösningen är genomgående och skapar ett fint ljusinsläpp samt en luftig känsla i hela hemmet.

Här finns en rymlig hall med bra förvaringsmöjligheter, ett charmigt kök i originalskick med plats för matbord och fina möjligheter att sätta sin egen prägel vid en framtida renovering, två rogivande sovrum mot den lugna innergården samt ett badrum i original inrett med skönt badkar.

Det centrala läget ger dig närhet till all tänkbar service inom gångavstånd. Runt hörnet finns butiker, restauranger och vardagens bekvämligheter. För fritid och rekreation finns både Stadsparken och badhus på kort promenadavstånd – ett område som passar såväl unga som äldre.

Goda kommunikationer med närliggande tåg- och busstation gör vardagen smidig, oavsett om du pendlar lokalt eller längre sträckor. Här bor du i ett omtyckt område som kombinerar stadens puls med småstadens charm.

Detta är ett hem med stor potential – en perfekt möjlighet att skapa något eget och personligt, med bra grundförutsättningar redan på plats.

Visningar

Trelleborg - Centralt, Trelleborg

Hesekillegatan 32

Lägenhet3 rok76

Mäklare

Mäklare

AwardBadge
Årets Mäklarkedja 2024, 2025
Vinnare av Boneo Awards
banner

Tjänster

Bolån

Räkna på bolån för Hesekillegatan 32
nordeaAlltid personlig ränta på ditt bolånRäkna här
Jämför bolån från olika banker!
lanekollPersonlig hjälp hela vägen hem!Räkna direkt!
Bostaden du tittar på matchar med 88 personer i BoneoMatch™

Hur många vill köpa din bostad?

Vi matchar din bostad mot över 500 000 köpsugna personer som går på visningar just nu.

Loading...
Trelleborg - Centralt, Trelleborg

Hesekillegatan 32

Lägenhet3 rok76

Mäklare

Mäklare

AwardBadge
Årets Mäklarkedja 2024, 2025
Vinnare av Boneo Awards