linkedin pixel
Tillbaka till sökresultatet
Fullskärm
Fullskärm
Tillbaka till sökresultatet
externalLinkIconAlla bilder
På G!
Först på Boneo
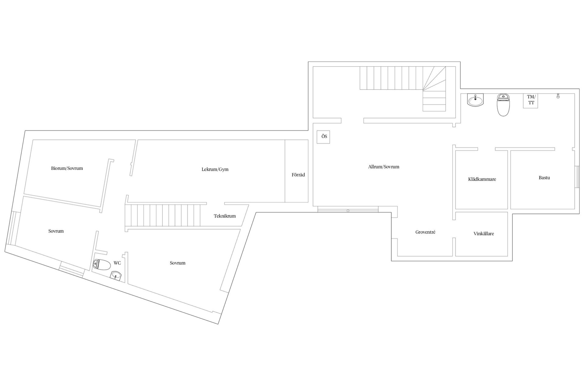
Villa8 rok247 + 402 480 m² tomt

Fakta om bostaden

  • Pris6 995 000 kr
  • BoendetypVilla
  • Antal rum8 rok
  • Boyta247
  • UpplåtelseformFriköpt
  • Biarea40
  • Tomtarea2 480 m²
  • Kvadratmeterpris (kr/m²) 28 320 kr/m²
  • Byggnadsår1977

Beskrivning

Arkitektritad drömvilla i Långvik med garage

Välkommen till detta fantastiska hem på Gubbdalsvägen 8 – ett exklusivt och smakfullt renoverat hem i hjärtat av vackra Långvik på Ingarö. Här får du uppleva ett boende utöver det vanliga, där stilren arkitektur möter funktionalitet och naturskön omgivning i perfekt harmoni. Med en total boyta på 247 kvm och en generös tomt på 2 480 kvm, erbjuder detta hem både rymd och komfort, samt närhet till skärgårdens bästa kvaliteter. Huset är väldigt energieffektivt och har energiklass B som ger grönt bo lån.

Villan är genomgående modern med noggrant utvalda material och en öppen planlösning som präglas av ljus och rymd. Stora fönsterpartier suddar ut gränsen mellan ute och inne och släpper in det naturliga ljuset året om.

Interiören bjuder på ett exklusivt och tidlöst uttryck, där varje detalj är noggrant avvägd – från de ljusa ytskikten, de stora fönsterpartierna till den vackra murade öppna spisen med insats, installerad 2022. Husets planlösning är både social och funktionell. Köket är rymligt och välutrustat, perfekt för dig som älskar att laga mat och umgås, med en stor matplats och loungeyta. Vardagsrummet är en självklar samlingsplats med utsikt mot trädgården och direkt access via stora skjutpartier till altan och uteplatser i soligt och insynsskyddat läge. Här finns gott om plats för både vardagsliv och festligheter.

Fastigheten har närhet till Långviks egna båthamn och badplats med sandstrand, vilket gör detta hem till en perfekt plats för både avkoppling och fritidsaktiviteter. Huset erbjuder även 4-5 sovrum, ett biorum och ett lekrum/gym, vilket gör det idealiskt för både stora familjer och sociala tillställningar.
Ett stort plus är det friliggande, nybyggda garaget på 40 kvm som uppfördes 2024. Det är isolerat och ger gott om utrymme för både bil, förvaring och hobbyverksamhet. Garaget nås via den nyanlagda vägen upp på berget.

Fastigheten har genomgått omfattande renoveringar och tillbyggnader mellan 2012 och 2025, inklusive helrenovering av den äldre husdelen, nybyggnation av en stor arkitektritad tillbyggnad samt uppdateringar av värme- och ventilationssystem. Idag värms huset upp med en effektiv luft/vattenvärmepump från Nibe, och ventilationssystemet är ett FTX-system – allt för att skapa ett energieffektivt och behagligt inomhusklimat. Energiklass B vittnar om låg energiförbrukning och modern standard.
Husets belysning styrs av Plejd och dubbla fiberuttag i alla rum.

OMRÅDET
Långvik är ett mycket lugnt och omtyckt område med stor del permanentboende. Populär förskola finns alldeles i närheten. Gångavstånd är det även till härligt bad med brygga och sandstrand i Säbyviken. Som fastighetsägare har du rätt till båtplats genom samfällighetsföreningen Ingarö-Långviks hamn. Naturreservatet Långviksträsk bjuder på vildmark inpå knuten. Här häckar fiskgjusen varje år på orörd mark. Vill man byta lugn mot storstad finns busshållplatsen endast ett par minuter bort. Med direktbuss tar man sig till Slussen på ca 40 minuter.
Ingarö har många fördelar. Vid Björkvik finns ett av Storstockholms bästa havsbad, samt många fina badstränder och insjöar. Skog och natur dominerar, bland annat i Björnö naturreservat, med härliga strövområden. Idrottsföreningen Ingarö IF är stor inom fotboll, innebandy och friidrott. Närhet till stad och närhet till grönska är en av Ingarös många fördelar. Ingarö Golfklubb erbjuder två 18-hålsbanor. Ingarö är Sveriges 16:e största ö. Besök gärna Ingarö Hembygdsförening för mer information om Ingarö. www.ingarofakta.se

Visningar

På G!
Först på Boneo
Ingarö - Långvik, Värmdö

Gubbdalsvägen 8

Villa8 rok247 + 402 480 m² tomt

Mäklare

Mäklare

AwardBadge
Årets Mäklarkedja 2024, 2025
Vinnare av Boneo Awards
banner

Tjänster

Bolån

Räkna på bolån för Gubbdalsvägen 8
nordeaAlltid personlig ränta på ditt bolånRäkna här
Jämför bolån från olika banker!
lanekollPersonlig hjälp hela vägen hem!Räkna direkt!

Hur många vill köpa din bostad?

Med BoneoMatch™ ser du hur många som letar efter en liknande bostad i ditt område.

Läs mer
Loading...
På G!
Först på Boneo
Ingarö - Långvik, Värmdö

Gubbdalsvägen 8

Villa8 rok247 + 402 480 m² tomt

Mäklare

Mäklare

AwardBadge
Årets Mäklarkedja 2024, 2025
Vinnare av Boneo Awards