linkedin pixel
Tillbaka till sökresultatet
Fullskärm
Fullskärm
Tillbaka till sökresultatet
externalLinkIconAlla bilder
På G!
Först på Boneo
Lägenhet1 rok30,10

Fakta om bostaden

  • Pris1 495 000 kr
  • BoendetypLägenhet
  • Antal rum1 rok
  • Boyta30,10
  • UpplåtelseformBostadsrätt
  • Kvadratmeterpris (kr/m²) 49 668 kr/m²
  • Byggnadsår1957
  • Våning 4 av 4
  • HissJa
  • Avgift till föreningen891 kr/mån

Beskrivning

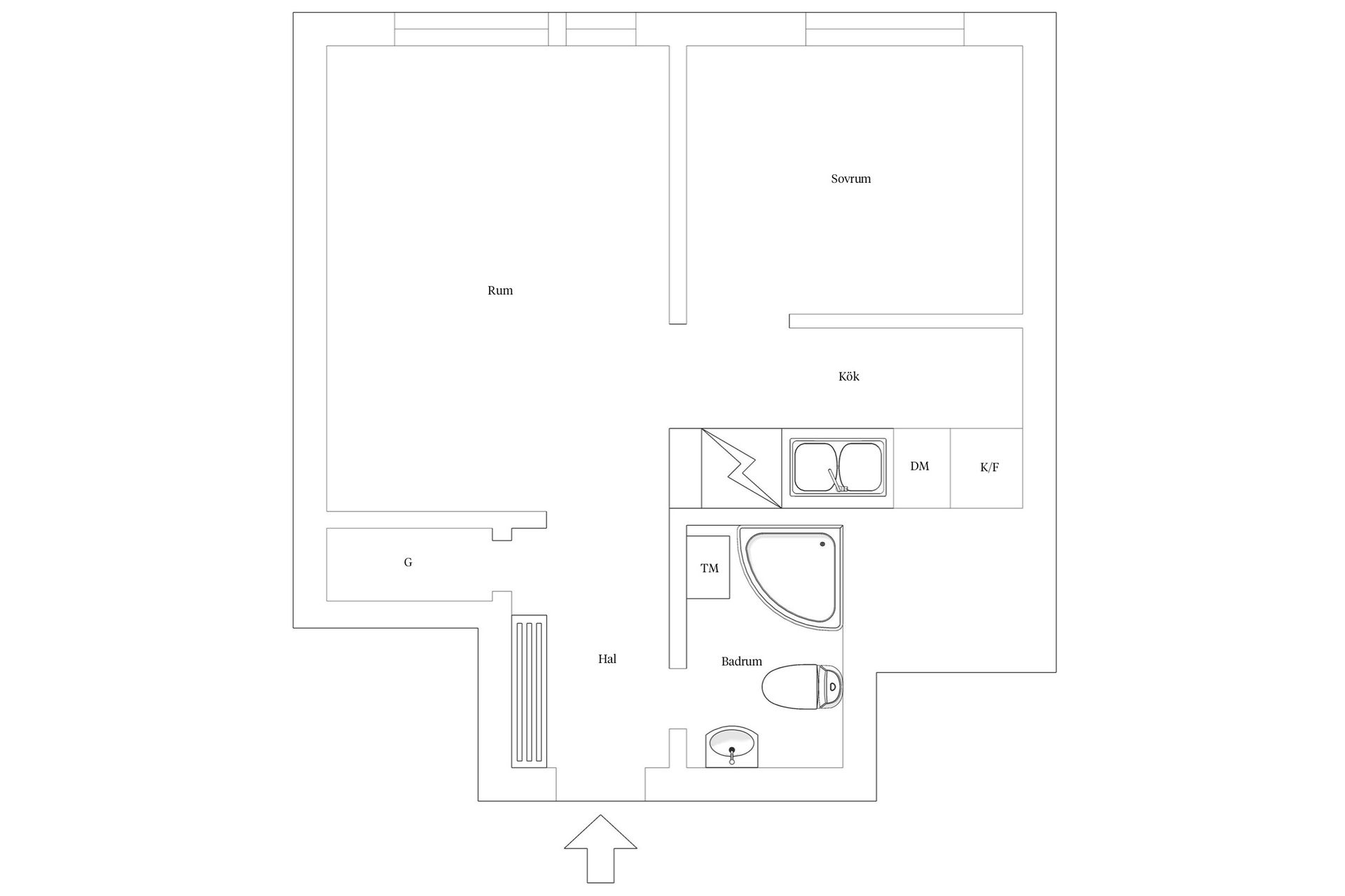
Varmt välkommen till Nygatan 15 och denna kvadratsmarta och smakfullt renoverade etta i eftertraktade Haga. Här erbjuds en bostad som kombinerar funktion, stil och ekonomi på ett mycket tilltalande sätt – perfekt för förstagångsköparen, studenten eller som övernattningslägenhet.

Lägenheten är genomgående renoverad med moderna och tidlösa materialval. Köket är nyligen uppdaterat med stilrena ytskikt samt tillfredsställande arbetsytor som gör matlagningen både enkel och trivsam. Det helkaklade badrummet håller en hög standard och ger ett fräscht och harmoniskt intryck.

I hallen möts du av ett vackert klinkergolv som sätter tonen direkt vid entré. Bostaden erbjuder dessutom ett separat sovrum, en ovanlig och mycket uppskattad detalj för en etta. Detta skapar en tydlig uppdelning mellan sociala ytor och vila.

Vardagsrummet är ljust och luftigt med plats för både mindre soffgrupp och matplats. Härifrån nås även den franska balkongen som bidrar med ett fint ljusinsläpp och en vacker utsikt.

En av bostadens stora fördelar är den ovanligt låga månadsavgiften om enbart 891 kr/månad.

Här bor du i ett lugnt och trivsamt område med närhet till Karlstads centrum, universitetet, goda kommunikationer samt service och grönområden.

En perfekt bostad för dig som söker något inflyttningsklart med det lilla extra!
På G!
Först på Boneo
Haga, Karlstad

Nygatan 15

Lägenhet1 rok30,10

Mäklare

Mäklare

AwardBadge
Årets Mäklarkedja 2024, 2025
Vinnare av Boneo Awards
banner

Tjänster

Bolån

Räkna på bolån för Nygatan 15
nordeaAlltid personlig ränta på ditt bolånRäkna här
Jämför bolån från olika banker!
lanekollPersonlig hjälp hela vägen hem!Räkna direkt!
Bostaden du tittar på matchar med 84 personer i BoneoMatch™

Hur många vill köpa din bostad?

Vi matchar din bostad mot över 500 000 köpsugna personer som går på visningar just nu.

Loading...
På G!
Först på Boneo
Haga, Karlstad

Nygatan 15

Lägenhet1 rok30,10

Mäklare

Mäklare

AwardBadge
Årets Mäklarkedja 2024, 2025
Vinnare av Boneo Awards