linkedin pixel
Fullskärm
Fullskärm
externalLinkIconAlla bilder
På G!
Först på Boneo
Villa7 rok218 + 77814 m² tomt

Fakta om bostaden

  • Pris10 900 000 kr
  • BoendetypVilla
  • Antal rum7 rok
  • Boyta218
  • UpplåtelseformFriköpt
  • Biarea77
  • Tomtarea814 m²
  • Kvadratmeterpris (kr/m²) 50 000 kr/m²
  • Byggnadsår1962

Beskrivning

Välkommen till en klassisk och rymlig villa med tydlig 50-talskaraktär, belägen i idylliska och historiska Nya Varvet. Här möts tidstypisk arkitektur, generösa ytor och en varm atmosfär i ett hem som har bevarat många av sina originaldetaljer. Huset uppfördes 1962 men bär tydliga drag från 1950-talets formspråk, med vackra parkettgolv, stora fönsterpartier, funktionell planlösning och en inbjudande öppen spis som naturlig samlingspunkt.

Med sina 218 kvm boyta samt ytterligare 77 kvm biyta erbjuds gott om plats för familjeliv, arbete och umgänge. Här finns flera rymliga sällskapsrum, generösa sovrum och praktiska biytor som skapar flexibilitet över tid. Bostaden har en tydlig struktur där sociala ytor och privata delar samspelar på ett naturligt sätt — ett kännetecken för välplanerade hus från denna era.

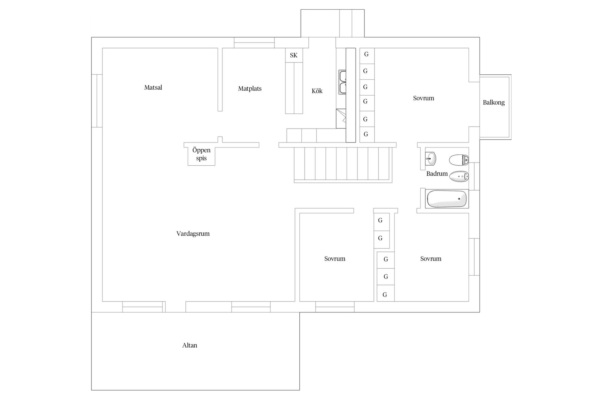
Entréplanet välkomnar med en rymlig hall med goda möjligheter för avhängning, ett större sällskapsrum, gästtoalett, tvättstuga. Trappan tar oss upp till husets centrala sällskapsytor. Här finns vardagsrum med öppen spis och stora fönster som ger ett fint ljusinsläpp och kontakt med trädgården och den fria omgivningen. Från rummet når man den stora balkongen i västerläge, där man kan njuta av varma sommarkvällar. Intill vardagsrummet ligger matplats och kök som vittnar om en svunnen tid, med charmiga smörgula luckor samt gott om arbetsytor och förvaring och med utgång till trädgården på husets baksida. Planlösningen skapar naturliga flöden mellan rummen och goda möjligheter för både vardag och större sammankomster. På mellanplanet finns även tre sovrum i bra storlek och ett badrum med badkar.

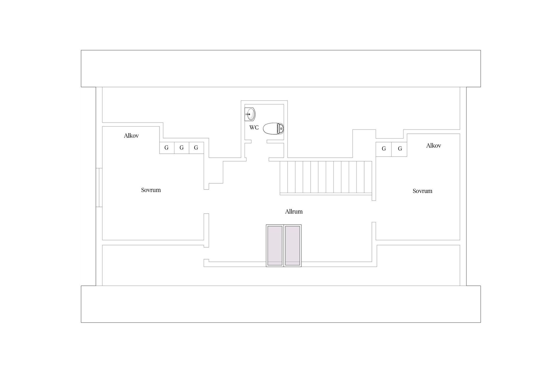
På de översta planet finns ett allrum med ett härligt ljusinsläpp från två takfönster. Det finns även två stycken sovrum på vardera sida av allrummet, av bra storlek och med goda förvaringsmöjligheter. Här finns även ett badrum med toalett. Med outnyttjade vindsutrymmen finns möjligheter att utöka både sovrum, förvaring och badrum i storlek.

Husets biytor omfattar bland annat tvättutrymmen, förråd och garage för en bil som förenklar vardagen och ger flexibilitet för olika behov.

Tomten erbjuder gräsmatta, grönska och uteplatser i olika nivåer i ett lugnt och familjevänligt kvarter. Det finns även ett litet växthus i trädgården på baksidan. Läget i Nya Varvet är svårslaget — här bor du med närhet till havet och småbåtshamnarna i Långedrag, samtidigt som du har gång- och cykelavstånd till restauranger, caféer och service kring Nya varvet, Mariaplan och Majorna. Med goda kommunikationer når du centrala Göteborg på kort tid.

Detta är ett hem för dig som uppskattar arkitektur, rymd och karaktär — och som vill bo i ett område där historia, hav och stad möts.

Visningar

På G!
Först på Boneo
Långedrag - Nya Varvet, Göteborg

Nya Varvsallén 11A

Villa7 rok218 + 77814 m² tomt

Mäklare

Mäklare

AwardBadge
Årets Mäklarkedja 2024, 2025
Vinnare av Boneo Awards
banner

Tjänster

Bolån

Räkna på bolån för Nya Varvsallén 11A
nordeaAlltid personlig ränta på ditt bolånRäkna här
Jämför bolån från olika banker!
lanekollPersonlig hjälp hela vägen hem!Räkna direkt!
Bostaden du tittar på matchar med 499 personer i BoneoMatch™

Hur många vill köpa din bostad?

Vi matchar din bostad mot över 500 000 köpsugna personer som går på visningar just nu.

Loading...
På G!
Först på Boneo
Långedrag - Nya Varvet, Göteborg

Nya Varvsallén 11A

Villa7 rok218 + 77814 m² tomt

Mäklare

Mäklare

AwardBadge
Årets Mäklarkedja 2024, 2025
Vinnare av Boneo Awards