linkedin pixel
Fullskärm
Fullskärm
externalLinkIconAlla bilder
På G!
Först på Boneo
Fritidshus2 rok19450 m² tomt

Fakta om bostaden

  • Pris495 000 kr
  • BoendetypFritidshus
  • Antal rum2 rok
  • Boyta19
  • UpplåtelseformArrende
  • Tomtarea450 m²
  • Kvadratmeterpris (kr/m²) 26 053 kr/m²
  • Byggnadsår1958

Beskrivning

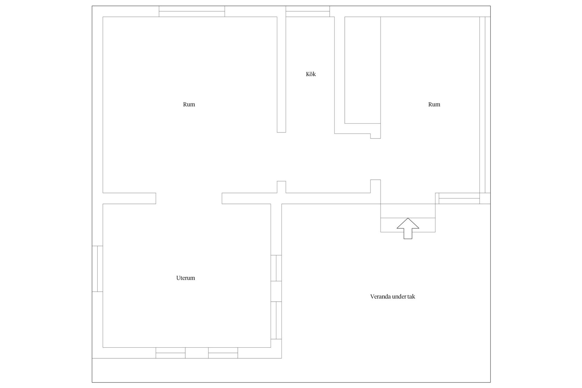
Välkommen till en idyllisk kolonistuga som andas sommar, lugn och livskvalitet. På Fjällvägen 67 har du en av de större tomterna i området, hela 450 kvm, jämfört med de övriga som vanligtvis är cirka 300 kvm. Stugan har ett populärt läge med sol, fin utsikt och en altan i söderläge.

Ett perfekt ställe för dig som längtar efter en fridfull plats att njuta av lediga dagar, läsa en bok i solen eller pyssla med växterna. Stugan erbjuder ett litet kök med indragen el, ett mysigt sällskapsrum och ett sovrum. För den som önskar vatten är det förberett framdraget till huset.

Tomten är en blomstrande oas med ett överflöd av frukt och bär. Här kan du plocka äpplen och plommon direkt från träden, njuta av solmogna amerikanska blåbär och smaka på jordgubbar som vuxit i sommarsolen. Skörda svarta vinbär och gör kanske din egen saft. Här finns även växthus och odlingsland. Förutom allt ätbart bjuder trädgården på riklig blomsterprakt.

Det här är platsen där sommaren känns lite längre, där kaffet smakar bättre utomhus och där kvällarna avslutas med fågelkvitter och utsikt över området från din alldeles egna lilla stuga.

Tokarps koloniområde ligger strax utanför stan, lättillgängligt med cykel, buss eller bil. Förutom den egna stugan får du som innehavare tillgång till områdets gemensamma faciliteter såsom toaletter, duschar och tvättmöjligheter. Här finns även en trivsam samlingslokal och en gäststuga som medlemmarna i föreningen har möjlighet att boka.
På G!
Först på Boneo
Tokarp- Tokarps koloniförening, Jönköping

Fjällvägen 67-68 (Tokarps koloniförening)

Fritidshus2 rok19450 m² tomt

Mäklare

Mäklare

AwardBadge
Årets Mäklarkedja 2024, 2025
Vinnare av Boneo Awards
banner

Tjänster

Bolån

Räkna på bolån för Fjällvägen 67-68 (Tokarps koloniförening)
nordeaAlltid personlig ränta på ditt bolånRäkna här
Jämför bolån från olika banker!
lanekollPersonlig hjälp hela vägen hem!Räkna direkt!

Hur många vill köpa din bostad?

Med BoneoMatch™ ser du hur många som letar efter en liknande bostad i ditt område.

Läs mer
Loading...
På G!
Först på Boneo
Tokarp- Tokarps koloniförening, Jönköping

Fjällvägen 67-68 (Tokarps koloniförening)

Fritidshus2 rok19450 m² tomt

Mäklare

Mäklare

AwardBadge
Årets Mäklarkedja 2024, 2025
Vinnare av Boneo Awards