linkedin pixel
Tillbaka till sökresultatet
Fullskärm
Fullskärm
Tillbaka till sökresultatet
Nyproduktion
Villa5 rok110,50320 m² tomt

Fakta om bostaden

  • Pris3 925 000 kr
  • BoendetypVilla
  • Antal rum5 rok
  • Boyta110,50
  • UpplåtelseformFriköpt
  • Tomtarea320 m²
  • Kvadratmeterpris (kr/m²) 35 520 kr/m²
  • Byggnadsår2026
  • Dagar på Boneo8 dagar

Beskrivning

I Falkenbergs östra delar fortsätter Derome bygga det familjära bostadsområdet Dals ängar. Nu kliver Kvintetten fram som nästa stora nummer. Här möts du av fem harmoniskt komponerade kedjehus redo för ditt nästa kapitel. Med naturen runt hörnet, cykelavstånd till stadskärnan och bekvämt gångavstånd till tågstationen ligger allt perfekt för dig som pendlar och vill bo nära havet i en av västkustens mysigaste städer.

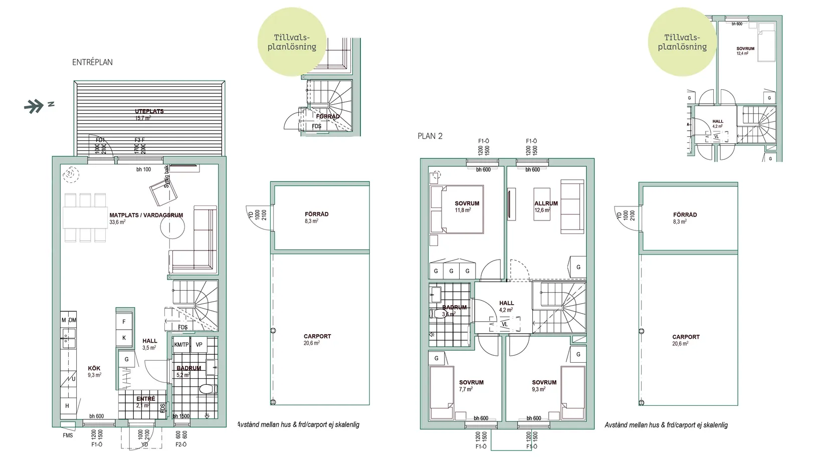
Husen är välplanerade och bjuder på 110,5 kvadratmeter boyta fördelad över två plan. På entréplan skapar kök, matplats och vardagsrum den sociala ytan som funkar lika bra för vardagslivet med läxläsning och matlagning som när du samlar vännerna på middag. En trappa upp väntar den mer privata delen med tre sovrum, ett allrum och badrum.

Husen byggs i trä och får en mörkt gråbrun kulör med grå plåtdetaljer och ockrafärgade dörrar. I din egen trädgård kan du skapa allt från blomstrande rabatter till en lugn uteplats för sommarkvällar med grill, skratt och något gott i glaset. Till huset hör ett utvändigt förråd och en carport och parkering med plats för två bilar.

I Kvintetten bor du nära allt som behövs för en smidig vardag. Tånga handelsområde erbjuder matbutiker, apotek, gym, restauranger och butiker. På Dals ängar finns dessutom en förskola och i närområdet finns grundskola och ett brett utbud av fritidsaktiviteter. En perfekt uppsättning för familjeliv i en av västkustens riktiga pärlor.
Nyproduktion
Dals Ängar , Falkenberg

Basfiolvägen 38 Hus 3

Villa5 rok110,50320 m² tomt

Mäklare

banner

Tjänster

Bolån

Räkna på bolån för Basfiolvägen 38 Hus 3
nordeaAlltid personlig ränta på ditt bolånRäkna här
Jämför bolån från olika banker!
lanekollPersonlig hjälp hela vägen hem!Räkna direkt!
Bostaden du tittar på matchar med 302 personer i BoneoMatch™

Hur många vill köpa din bostad?

Vi matchar din bostad mot över 500 000 köpsugna personer som går på visningar just nu.

Loading...
Nyproduktion
Dals Ängar , Falkenberg

Basfiolvägen 38 Hus 3

Villa5 rok110,50320 m² tomt

Mäklare