linkedin pixel
Tillbaka till sökresultatet
Fullskärm
Fullskärm
Tillbaka till sökresultatet
externalLinkIconAlla bilder
På G!
Först på Boneo
Villa7 rok169 + 19521 m² tomt

Fakta om bostaden

  • Pris5 990 000 kr
  • BoendetypVilla
  • Antal rum7 rok
  • Boyta169
  • UpplåtelseformFriköpt
  • Biarea19
  • Tomtarea521 m²
  • Kvadratmeterpris (kr/m²) 35 444 kr/m²
  • Byggnadsår2016

Beskrivning

Välkommen till denna trivsamma och välplanerade villa i ett barnvänligt och omtyckt villaområde. Här bor du i en rymlig villa med kommunalt VA samt nybyggnationens fördelar i form av låga driftkostnader.

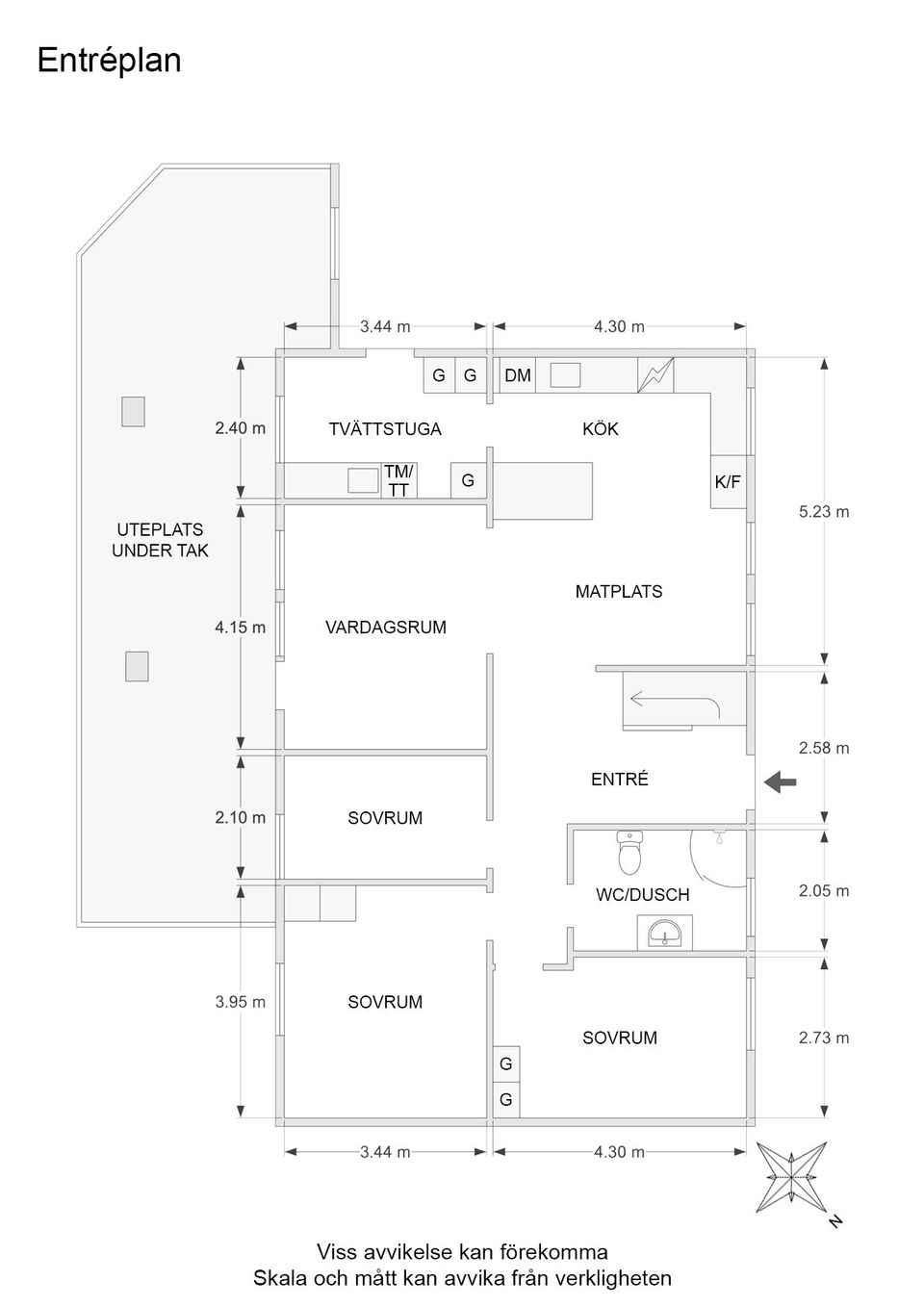
Entréplanet präglas av öppna och ljusa ytor där kök, matplats och vardagsrum smälter samman på ett naturligt sätt. Det fina köket har goda arbetsytor och en köksö. Intill finns matplats med plats för ett större matbord. I anslutning ligger vardagsrummet, där stora fönsterpartier släpper in rikligt med ljus och skapar en trivsam atmosfär. Härifrån nås även bostadens uteplats– en härlig förlängning av vardagsrummet under årets varmare månader.

På entréplanet finns även två sovrum i bra storlek, ett kontor, ett badrum med dusch samt en praktisk tvättstuga som dessutom erbjuder direkt access till garaget, vilket underlättar vardagen.

En trappa upp möts du av ett ljust och generöst allrum – perfekt som extra sällskapsyta, lekrum eller tv-rum. Här finns även två större sovrum, klädkammare samt ytterligare ett badrum. Intill huset finns garage och uppfart med plats för flera bilar.

Området erbjuder goda kommunikationer med buss, med regelbundna avgångar till Ytterby och Kungälv där vidare anslutningar finns till Göteborg. Busshållplatsen ligger på bekvämt gångavstånd från bostaden, vilket gör pendlingen enkel och smidig.

Välkommen att anmäla ditt intresse för mer information!
På G!
Först på Boneo
Tjuvkil, Kungälv

Matskärsvägen 6

Villa7 rok169 + 19521 m² tomt

Mäklare

banner

Tjänster

Bolån

Räkna på bolån för Matskärsvägen 6
nordeaAlltid personlig ränta på ditt bolånRäkna här
Jämför bolån från olika banker!
lanekollPersonlig hjälp hela vägen hem!Räkna direkt!
Bostaden du tittar på matchar med 66 personer i BoneoMatch™

Hur många vill köpa din bostad?

Vi matchar din bostad mot över 500 000 köpsugna personer som går på visningar just nu.

Loading...
På G!
Först på Boneo
Tjuvkil, Kungälv

Matskärsvägen 6

Villa7 rok169 + 19521 m² tomt

Mäklare