linkedin pixel
Tillbaka till sökresultatet
Fullskärm
Fullskärm
Tillbaka till sökresultatet
externalLinkIconAlla bilder
På G!
Först på Boneo
Radhus4 rok120219 m² tomt

Fakta om bostaden

  • Pris3 895 000 kr
  • BoendetypRadhus
  • Antal rum4 rok
  • Boyta120
  • UpplåtelseformFriköpt
  • Tomtarea219 m²
  • Kvadratmeterpris (kr/m²) 32 458 kr/m²
  • Byggnadsår1973

Beskrivning

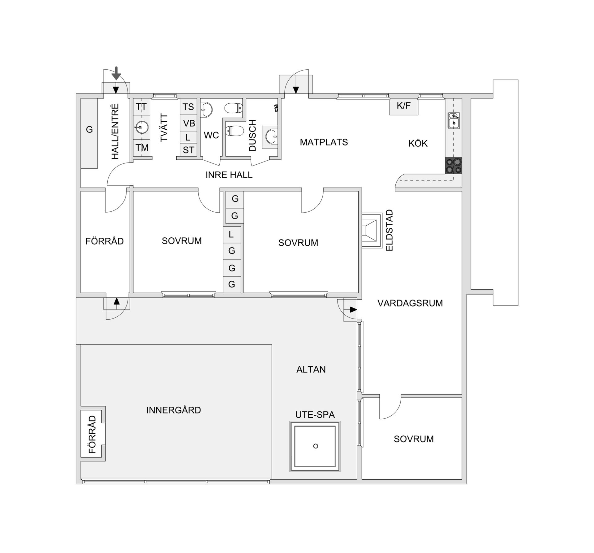
Välkommen till ett välplanerat enplanshus i vinkel om ca 120 kvm. Huset erbjuder rymligt vardagsrum med stor murad eldstad, kök i öppen planlösning med matplats för 8 - 10 personer, tre sovrum med möjlighet till fyra, helkaklat duschrum, extra gäst-wc och tvättstuga. Gott om förvaringsutrymme och garage i länga. Altan med utespa på skyddad baksida med bästa solläge.

Från en trevlig farstukvist stiger man in i en välkomnande och praktisk hall med gott om plats för avhängning i stor skjutdörrsgarderob. Vita väggar och snyggt klinker med golvvärme. I anslutning till hallen finns ett stort förråd med utgång till baksidan. Rummet kan även användas som klädkammare, kontor eller hobbyrum.

Från den inre hallen nås tvättstugan med fönster mot framsidan. Här finns arbetsbänk med tvättho och överskåp, tvättmaskin, torktumlare, torkskåp, linneskåp, städskåp och husets varmvattenberedare.

Modernt helkaklat duschrum med grått klinker med golvvärme och vitkaklade väggar. Här ryms duschhörna med glasvägg och väggnisch för schampoflaskor, tvättställ och spegel med inbyggd belysning ovan samt wc.

I hallen finns även en gäst-wc med likadan inredning som duschrummet. Här finns vädringsfönster, tvättställ och spegel med inbyggd belysning ovan samt wc.

Den inre hallen öppnar upp sig mot ett kök i öppen planlösning med rymlig matplats vid fönster för ca 8 - 10 personer. Vit äldre köksinredning med grönmålat kakel ovanför bänkytorna. Utrustningen består av kyl & frys, spis, fläkt och diskmaskin. Vid matplatsen finns utgång till farstukvisten på framsidan och ovanför dörren sitter en luftvärmepump för effektiv värmespridning till sällskapsytorna.

Ljust och trevligt vardagsrum med flera fönster och utgång till altan på skyddad baksida. Stor murad kronspis för värme och trivsel. Vita väggar och parkettgolv.

Tre stora sovrum, med möjlighet att dela av till fyra vid behov. Samtliga sovrum har fönster mot baksidan och innergården. Två av sovrummen har inbyggda garderober för klädförvaring.

Centralt läge nära kommunikationer, bra för- och grundskolor samt 10 minuters promenadavstånd till havsbadet Fiskartorpet.

Söra är ett barnvänligt område i centrala Åkersberga med närhet till allt.

Varmt välkommen på visning!
På G!
Först på Boneo
Söra, Österåker

Söravägen 101

Radhus4 rok120219 m² tomt

Mäklare

banner

Tjänster

Bolån

Räkna på bolån för Söravägen 101
nordeaAlltid personlig ränta på ditt bolånRäkna här
Jämför bolån från olika banker!
lanekollPersonlig hjälp hela vägen hem!Räkna direkt!
Bostaden du tittar på matchar med 149 personer i BoneoMatch™

Hur många vill köpa din bostad?

Vi matchar din bostad mot över 500 000 köpsugna personer som går på visningar just nu.

Loading...
På G!
Först på Boneo
Söra, Österåker

Söravägen 101

Radhus4 rok120219 m² tomt

Mäklare