linkedin pixel
Fullskärm
Fullskärm
externalLinkIconAlla bilder
Tomt1 120 m² tomt

Fakta om bostaden

  • Pris4 978 200 kr
  • BoendetypTomt
  • UpplåtelseformFriköpt
  • Tomtarea1 120 m²
  • Dagar på Boneomaj 2025

Beskrivning

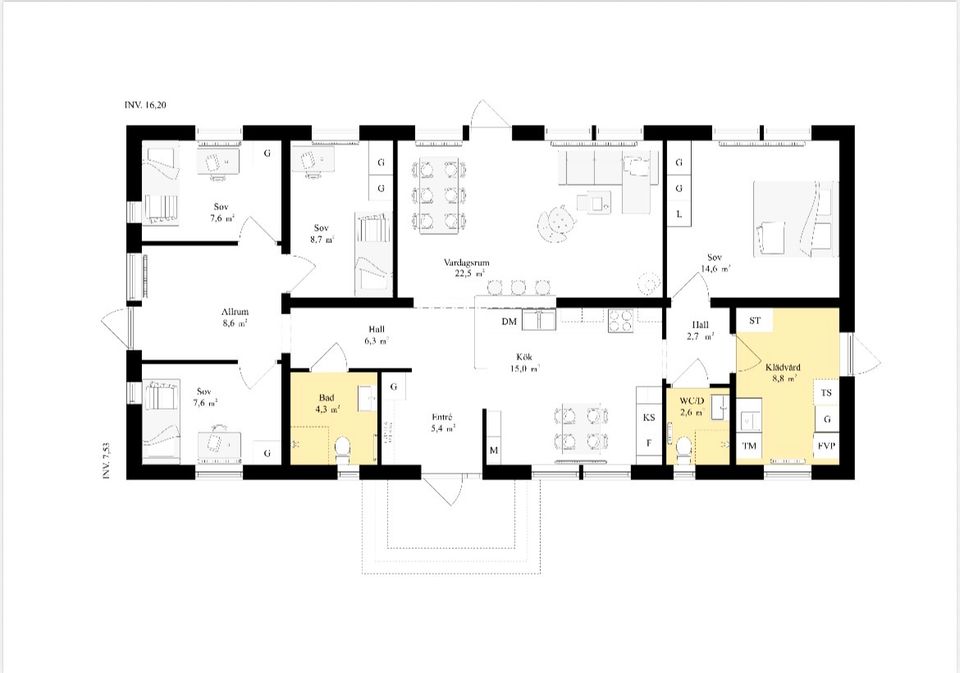
Bygg ditt drömhus!

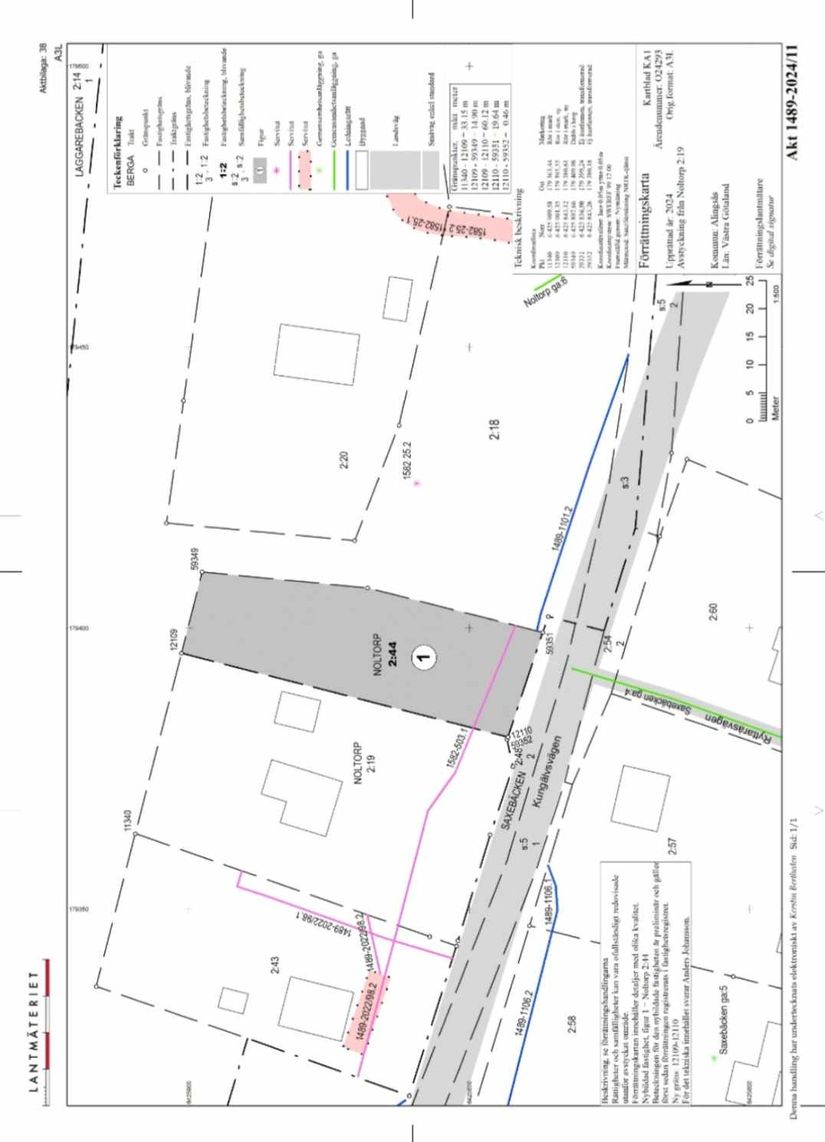
Varmt välkomna till Laggarebacken, strax utanför Alingsås stadskärna. Här erbjuds nu en avstyckad tomt på 1 120 kvm med naturen alldeles inpå tomten.

Här planeras det att byggas 1-plansvillan "Fredriksdal" från välrenommerade SmålandsVillan. Huset är på 122 kvm med öppna sociala ytor, helkaklat badrum, separat wc, rymlig tvättstuga och möjlighet att få upp till 4 sovrum, där husets master bedroom ligger avskilt från de övriga sovrummen. Fastigheten kommer dessutom att vara ansluten till det kommunala v/a-nätet, vilket också är inkluderat i priset.

Villan kommer vara nyckelfärdig och skapas med omsorg av SmålandsVillan, där möjlighet finns att göra skräddarsydda tillval för att passa just dig och din familj. Hela byggprocessen går genom SmålandsVillan som kommer att ta hand om hela entreprenaden, vilket innebär att det är både tryggt och smidigt för dig som köpare.

Bygglovsansökan ingår i priset och SmålandsVillan hjälper till med ansökan. När man köper denna tomt är det bara att luta sig tillbaka och med spänning följa en rolig resa och uppleva varje steg till ditt framtida drömhem.

Vid frågor kring byggnationen, vänligen kontakta fastighetsmäklare Robin Almanakis eller Peter Andersson på SmålandsVillan:
Tel: 0705-903932
Mail: peter.f.andersson@smalandsvillan.se

Vid intresse är ni välkomna att själva åka till tomten när det passar eller boka en tid med ansvarig fastighetsmäklare för privat visning på plats på överenskommen tid.

Varmt välkomna att höra av er till Robin Almanakis vid intresse av denna tomt/byggnation!
Laggarebacken, Alingsås

Kungälvsvägen 81 (Närmsta adress. Ny adress ej fastställd ännu).

Tomt1 120 m² tomt

Mäklare

banner

Tjänster

Bolån

Räkna på bolån för Kungälvsvägen 81 (Närmsta adress. Ny adress ej fastställd ännu).
nordeaAlltid personlig ränta på ditt bolånRäkna här
Jämför bolån från olika banker!
lanekollPersonlig hjälp hela vägen hem!Räkna direkt!

Hur många vill köpa din bostad?

Med BoneoMatch™ ser du hur många som letar efter en liknande bostad i ditt område.

Läs mer
Loading...
Laggarebacken, Alingsås

Kungälvsvägen 81 (Närmsta adress. Ny adress ej fastställd ännu).

Tomt1 120 m² tomt

Mäklare