linkedin pixel
Fullskärm
Fullskärm
externalLinkIconAlla bilder
Bostadsrättsradhus5 rok112

Fakta om bostaden

  • Pris2 395 000 kr
  • BoendetypBostadsrättsradhus
  • Antal rum5 rok
  • Boyta112
  • UpplåtelseformBostadsrätt
  • Kvadratmeterpris (kr/m²) 21 384 kr/m²
  • Byggnadsår2017
  • Dagar på Boneojanuari 2026
  • Våning 0
  • Avgift till föreningen8 462 kr/mån

Beskrivning

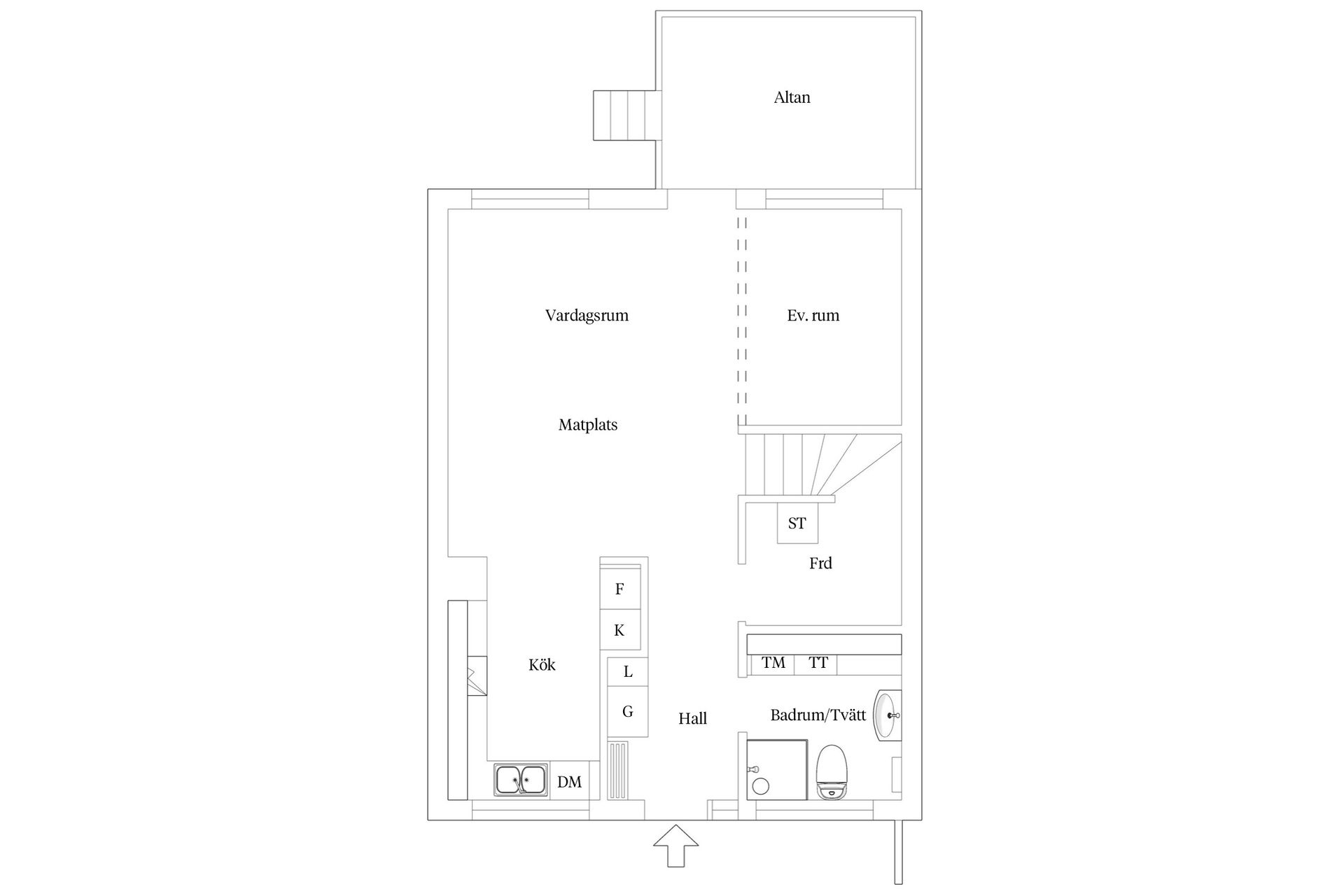
På Symfonigatan 47 finner ni detta bostadsrättsradhus från 2017, beläget på ett av de mest attraktiva lägena i området. Hemmet är väl genomtänkt och fördelat över två plan, med två badrum, gott om förvaringsutrymme och fyra sovrum, vilket gör det perfekt för den större familjen. Boendet erbjuder rymliga ytor, elegant design och modern funktionalitet i kök och badrum. Här möts ni av påkostade tillval och generös takhöjd på entréplanet, där kök och vardagsrum smälter samman i en öppen planlösning. Intill huset finns en charmig uteplats på den lugna baksidan, i en idyllisk del av Trädgårdsstaden. Här finns också möjlighet att hyra en p-plats. Förskola och skola ligger på bekvämt gångavstånd. Från bostaden når du snabbt det vackra naturområdet Rya Åsar och utsiktsplatsen Ryssby Klint på bara fem minuter. Dessutom ligger sjön Kolbränningen alldeles i närheten, perfekt för svalkande bad och rofyllt fiske vid bryggan.

Bostaden ligger i idylliska Hestra Trädgårdsstad med betande får runt knuten. Området består av hus med olika karaktär och skiftande arkitektur. Allt för att skapa ett levande kvarter och förstärka citykänslan samtidigt som intrycket av en småskalig blandstad ska bestå. Husen har en stark egen identitet där naturmaterial, nyanser och stil varierar. Föreningen består av 58 lägenheter och har en inbjudande gård. Här finns flera olika zoner med vackra planteringar och sittgrupper. I föreningen finns det tillgång till lekplatser, boulebana, bastu, festlokal och ett gym. Det finns även möjlighet att utan kostnad hyra odlingslott i området. Den måttliga biltrafiken gör det säkert för områdets barn när de ska cykla hem till en kompis något hus bort. Ett tryggt och lugnt område för både vuxna och barn med gångavstånd till förskola och skola samt bekvämligt avstånd till centrum och riksväg 40 mot Göteborg. Varmt välkomna på visning!
Hestra/Hestra Trädgårdsstad, Borås

Symfonigatan 47

Bostadsrättsradhus5 rok112

Mäklare

Mäklare

AwardBadge
Årets Mäklarkedja 2024, 2025
Vinnare av Boneo Awards
banner

Tjänster

Bolån

Räkna på bolån för Symfonigatan 47
nordeaAlltid personlig ränta på ditt bolånRäkna här
Jämför bolån från olika banker!
lanekollPersonlig hjälp hela vägen hem!Räkna direkt!
Bostaden du tittar på matchar med 601 personer i BoneoMatch™

Hur många vill köpa din bostad?

Vi matchar din bostad mot över 500 000 köpsugna personer som går på visningar just nu.

Loading...
Hestra/Hestra Trädgårdsstad, Borås

Symfonigatan 47

Bostadsrättsradhus5 rok112

Mäklare

Mäklare

AwardBadge
Årets Mäklarkedja 2024, 2025
Vinnare av Boneo Awards