linkedin pixel
Tillbaka till sökresultatet
Fullskärm
Fullskärm
Tillbaka till sökresultatet
Villa4 rok1011 040 m² tomt

Fakta om bostaden

  • Pris4 679 000 kr
  • BoendetypVilla
  • Antal rum4 rok
  • Boyta101
  • UpplåtelseformFriköpt
  • Tomtarea1 040 m²
  • Kvadratmeterpris (kr/m²) 46 327 kr/m²
  • Byggnadsår2026
  • Dagar på Boneoseptember 2024

Beskrivning

Välkomna till Trädlyckan!

Bygg drömhuset tillsammans med A-hus och projekt Trädlyckan i natursköna Gånsta i Enköping. Här kan vi erbjuda fem mycket bra, byggklara tomter med kommunalt VA. Gånsta är ett familjevänligt bostadsområde med fina naturområden i närheten. På bra bekvämt avstånd finns även förskolor, skolor och här finns bra kommunikationer till Enköping centrum. En utmärkt plats att bo på för dig som pendlar till Stockholm, Västerås, Örebro eller Uppsala.

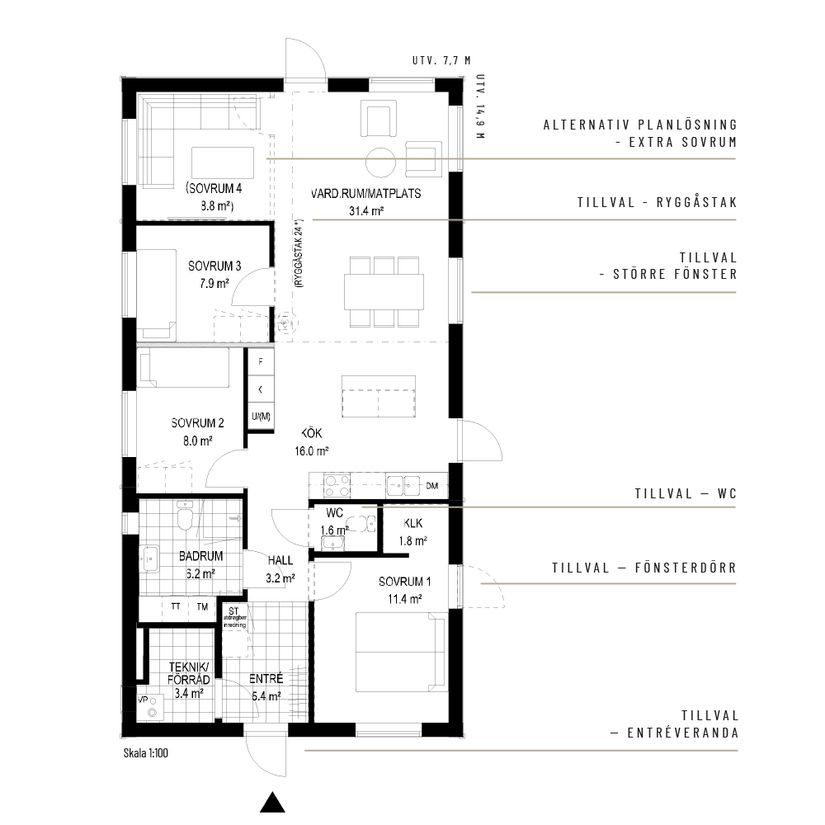
Villa Furuvik i modern stil är ett 1-planshus på 100 välplanerade kvadrat där alla får utrymme att trivas.
I Villa Furuvik har vi maximerat varje kvadratmeter och kan samtidigt erbjuda en stor flexibilitet i planlösningen. Allt för att bygga ett framtidssäkrat och energieffektivt hem. På 100 m2 har du möjligheten att välja upp till fyra sovrum, tre klädkammare samt en härlig inramning av gemensamhetsytorna genom ryggåstaket.

Självklart kan man välja ett annat hus ur A-hus breda utbud av husmodeller så länge det följer detaljplanen. Kontakta oss för att ta reda på vilket hus som passar er bäst.

Observera att det endast är exempelbilder som kan innehålla tillval som kan påverka priset.
Bjurfors förmedlar endast tomten. Entreprenadkontrakt skrivs med A-hus.
Gånsta, Enköping

Hagmarksvägen 4

Villa4 rok1011 040 m² tomt

Mäklare

Mäklare

AwardBadge
Årets Mäklarkedja 2024, 2025
Vinnare av Boneo Awards
banner

Tjänster

Bolån

Räkna på bolån för Hagmarksvägen 4
nordeaAlltid personlig ränta på ditt bolånRäkna här
Jämför bolån från olika banker!
lanekollPersonlig hjälp hela vägen hem!Räkna direkt!

Hur många vill köpa din bostad?

Med BoneoMatch™ ser du hur många som letar efter en liknande bostad i ditt område.

Läs mer
Loading...
Gånsta, Enköping

Hagmarksvägen 4

Villa4 rok1011 040 m² tomt

Mäklare

Mäklare

AwardBadge
Årets Mäklarkedja 2024, 2025
Vinnare av Boneo Awards