linkedin pixel
Fullskärm
Fullskärm
externalLinkIconAlla bilder
Villa8 rok280 + 1401 361 m² tomt

Fakta om bostaden

  • Pris1 495 000 kr
  • BoendetypVilla
  • Antal rum8 rok
  • Boyta280
  • UpplåtelseformFriköpt
  • Biarea140
  • Tomtarea1 361 m²
  • Kvadratmeterpris (kr/m²) 5 339 kr/m²
  • Byggnadsår1936
  • Dagar på Boneojanuari 2025

Beskrivning

Mitt i Säfsen!

Ett hem för både vardag och fritid.
Huset är byggt med omtanke och stil, med generösa ytor för hela familjen. Här finns ljusa och luftiga rum för både socialt umgänge och privat avkoppling. På entrévåningen möts du av stora sällskapsytor, sovrum, badrum och ett välutrustat kök med matplats. Övervåningen erbjuder hela fyra sovrum, ett stort kök med öppen planlösning mot vardagsrummet samt ett renoverat badrum.

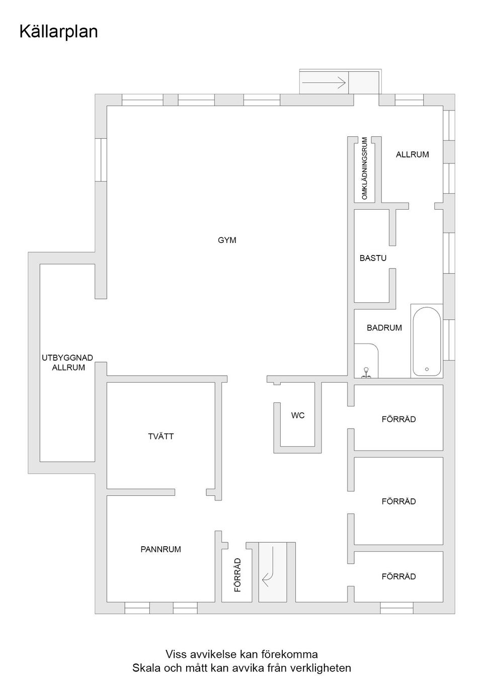
Lyxig källare med gym och relax
I källaren väntar en alldeles egen oas! Här finns ett modernt gym för den träningsintresserade och en avkopplande relaxavdelning där du kan varva ner efter en dag i naturen. Bastu, jacuzzi och dusch ger extra guldkant på tillvaron och gör detta till ett hus med det lilla extra.

Smart och hållbart med bergvärme
Med bergvärme som värmekälla är huset både energieffektivt och miljövänligt – en stor fördel för både plånboken och miljön.

Goda uthyrningsmöjligheter
Fastighetens attraktiva läge i Säfsen, med närhet till skidbackar, längdspår och andra friluftsaktiviteter, gör det till en eftertraktad destination för turister året runt. Här finns en stor potential att hyra ut huset som semesterboende och skapa en stadig inkomstkälla.

Senaste året har nuvarande ägare nyttjat övervåningen för eget bruk och hyrt ut entrévåningen. Hyresintäkter har under 2025 uppgått till ca 130.000 kr.

Välkommen att kontakta mäklare för att boka visning och övriga frågor.

Visningar

Fredriksberg/Säfsen, Ludvika

Filipstadsvägen 3

Villa8 rok280 + 1401 361 m² tomt

Mäklare

Tjänster

Bolån

Räkna på bolån för Filipstadsvägen 3
nordeaAlltid personlig ränta på ditt bolånRäkna här
Jämför bolån från olika banker!
lanekollPersonlig hjälp hela vägen hem!Räkna direkt!

Hur många vill köpa din bostad?

Med BoneoMatch™ ser du hur många som letar efter en liknande bostad i ditt område.

Läs mer
Loading...
Fredriksberg/Säfsen, Ludvika

Filipstadsvägen 3

Villa8 rok280 + 1401 361 m² tomt

Mäklare