linkedin pixel
Tillbaka till sökresultatet
Fullskärm
Fullskärm
Tillbaka till sökresultatet
externalLinkIconAlla bilder
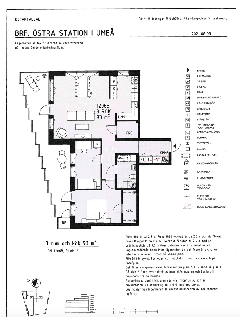
Lägenhet3 rok93

Fakta om bostaden

  • Pris3 595 000 kr
  • BoendetypLägenhet
  • Antal rum3 rok
  • Boyta93
  • UpplåtelseformBostadsrätt
  • Kvadratmeterpris (kr/m²) 38 656 kr/m²
  • Dagar på Boneojanuari 2025
  • Våning 2 av 5
  • HissJa
  • Avgift till föreningen5 098 kr/mån

Beskrivning

Välkommen till denna moderna och stilfulla bostad som erbjuder hög standard, en genomtänkt planlösning och ett utmärkt läge. Med en stor balkong som nås från två utgångar är detta hemmet för dig som uppskattar

Denna nybyggda lägenhet kombinerar modern arkitektur med bekvämlighet och stil. Direkt när du kliver in möts du av en rymlig hall med klinkergolv och gott om förvaring. Lägenheten har en generös takhöjd på 2,70 meter, vilket tillsammans med stora fönsterpartier skapar en ljus och luftig känsla.
Vardagsrummet är rymligt och har fönster i två väderstreck som släpper in rikligt med dagsljus. Härifrån når du även den stora balkongen.
Det moderna köket är utrustat med induktionshäll, diskmaskin, mikro och ugn i högskåp samt hel kyl och frys. Här finns gott om arbetsytor och förvaring, vilket gör köket både praktiskt och estetiskt tilltalande.
Lägenheten har två sovrum, varav det större har en egen utgång till balkongen samt en rymlig klädkammare. Det andra sovrummet passar perfekt som gästrum, kontor eller barnrum.
Det helkaklade badrummet håller hög standard med golvvärme, duschhörna samt både tvättmaskin och torktumlare.

Lägenheten är belägen i ett attraktivt område med närhet till strandpromenaden och stadens bekvämligheter.
Det finns 7st gemensamma takterrasser varav en med fast grill. Det finns även Bastu och övernattningsrum.
I samma hus finns en Coop butik och i huset mitt i mot finns USM - Gym samt en restaurang.
Tågstationen Umeå Östra och genomgång till Nus ligger endast 75 meter från huset.
Umeå

Östermalmsgatan 65B

Lägenhet3 rok93

Mäklare

banner

Tjänster

Bolån

Räkna på bolån för Östermalmsgatan 65B
nordeaAlltid personlig ränta på ditt bolånRäkna här
Jämför bolån från olika banker!
lanekollPersonlig hjälp hela vägen hem!Räkna direkt!
Bostaden du tittar på matchar med 244 personer i BoneoMatch™

Hur många vill köpa din bostad?

Vi matchar din bostad mot över 500 000 köpsugna personer som går på visningar just nu.

Loading...
Umeå

Östermalmsgatan 65B

Lägenhet3 rok93

Mäklare