linkedin pixel
Tillbaka till sökresultatet
Fullskärm
Fullskärm
Tillbaka till sökresultatet
Tomt1 127 m² tomt

Fakta om bostaden

  • Pris2 495 000 kr
  • BoendetypTomt
  • UpplåtelseformFriköpt
  • Tomtarea1 127 m²
  • Dagar på Boneofebruari 2025

Beskrivning

Exklusiv fjälltomt med ski-in/ski-out, fantastisk utsikt och oslagbart läge i Lofsdalen

Nu har du chansen att förverkliga drömmen om ett fjällboende på en av de bästa tomterna i området! Tomten ligger perfekt placerad precis vid Tvärenliften, vilket ger ski-in/ski-out-läge med direkt anslutning till skidbackarna. Dessutom finns både längdskidspår och skoterled inom ett stenkast, vilket gör det enkelt att ta sig ut i naturen.

Här bor du mitt i Härjedalens vackra fjällandskap, med en vidsträckt utsikt över fjälltopparna och dalgångarna. På vintern skapar de snötäckta vidderna en riktig fjällkänsla, medan sommaren bjuder på fantastiska möjligheter till vandring, cykling och fiske.

Trots det naturnära läget tar du dig till Lofsdalens by på bara ett minuter, där det finns affärer, restauranger och ett brett utbud av aktiviteter året om.

Tomten har en generös byggrätt på 170 kvm, med möjlighet att inreda två separata lägenheter. Perfekt för att skapa en exklusiv fjällvilla eller en smart investering.

Oavsett om du söker ett permanent boende, ett fritidshus eller uthyrningsmöjligheter är detta en unik chans att säkra en tomt i Lofsdalens mest attraktiva fjällområde!


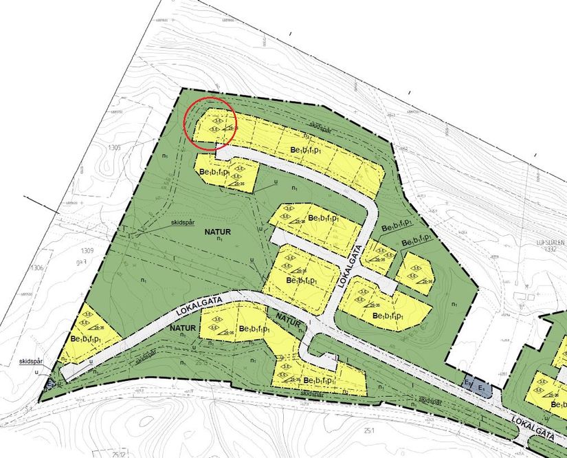
Detaljplan;
Tomen får bebyggas med högst två bostadshus och högst två lägenheter. Största byggnadsarea är 170 kvadratmeter, inom denna får komplementbyggnad med byggnadsarea om högst 30 kvadratmeter uppföras. Högsta byggnadshöjd för bostadshus är 5,5 meter och för komplementbyggnad 3,5 meter. Suterrängvåning och vind får inredas. Byggnadsplanen ligger i sin helhet under dokument i annonsen.

Anslutningar;
Anslutning för kommunalt vatten och avlopp ingår i priset.
El och fiber är inte draget i området än utan kommer att grävas ner i takt med att området bebyggs.
Anslutning till el 25 A tillkommer och är enligt schablon 54 125 kr inkl moms.
Kostnad för anslutning till fiber tillkommer och är för närvarande 26 900 kr.
Härjedalen

Lovsångsslingan 24

Tomt1 127 m² tomt

Mäklare

Tjänster

Bolån

Räkna på bolån för Lovsångsslingan 24
nordeaAlltid personlig ränta på ditt bolånRäkna här
Jämför bolån från olika banker!
lanekollPersonlig hjälp hela vägen hem!Räkna direkt!

Hur många vill köpa din bostad?

Med BoneoMatch™ ser du hur många som letar efter en liknande bostad i ditt område.

Läs mer
Loading...
Härjedalen

Lovsångsslingan 24

Tomt1 127 m² tomt

Mäklare