linkedin pixel
Fullskärm
Fullskärm
externalLinkIconAlla bilder
På G!
Först på Boneo
Lägenhet3 rok65

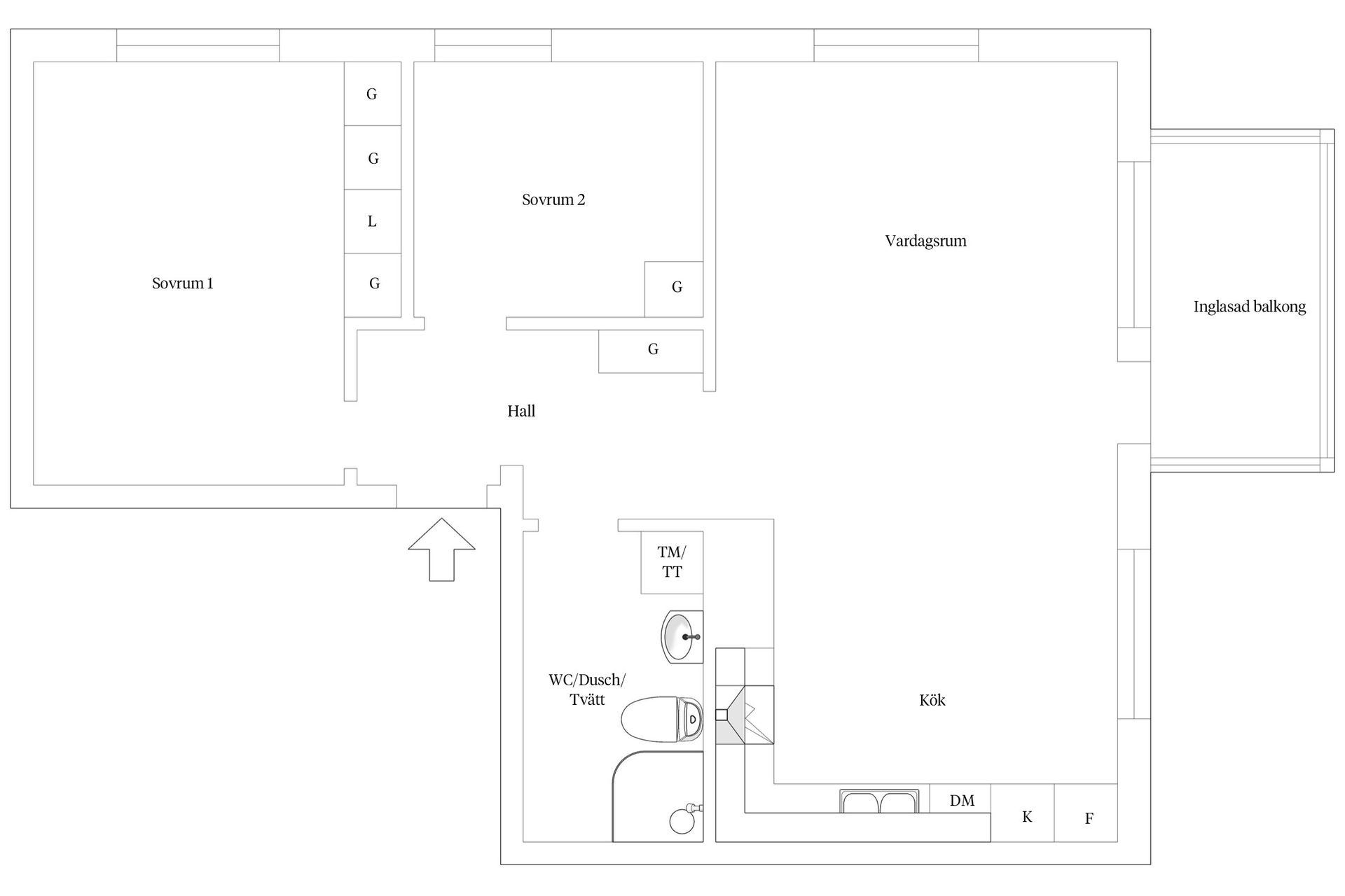
Fakta om bostaden

  • BoendetypLägenhet
  • Antal rum3 rok
  • Boyta65
  • UpplåtelseformBostadsrätt
  • Byggnadsår2011
  • Våning 4 av 7
  • HissJa
  • Avgift till föreningen3 911 kr/mån

Beskrivning

Välkommen till Kvillegatan 11 - En modern och välplanerad trea om 65 kvm på våning fyra. Du välkomnas av genomgående ljusa ytskikt och fönster i flera väderstreck som gör att ljuset flödar fritt. Här bor du på 65 välplanerade kvadratmetrar med öppen planlösning mellan kök och vardagsrum. Passar perfekt för social gemenskap! Vidare nås den härliga inglasade balkongen med både eftermiddagssol och kvällssol. Blickar ut och du möts av en härlig vy utöver Kvillebäcken. Längre bort ser man trädtopparna och toppen av Ramberget. Den inglasade balkongen passar perfekt att njuta av under vår, sommar eller höst. Under vintern passar även den inglasade balkongen perfekt som ett uterum. Badrummet är helkaklat i tidlösa toner med egen tvättavdelning och bostadens två sovrum är väl tilltagna med tillhörande förvaring. Till bostaden hör ett förråd.

I detta citynära boende har man lagt stor möda på att skapa harmoniska bostäder med hög standard. Området karaktäriseras av mysiga lugna gårdar där Kvillebäcken letar sig fram mellan husen. Du omgärdas på ena sidan av Brämaregården med utbud av mysiga caféer samt restauranger och på andra sidan av Hjalmar Brantingsplatsen samt Backaplan med stort shoppingutbud. Här ifrån tar du dig till centrala Göteborg på knappa 4 minuter med buss och spårvagn eller med cykel på ca 10. För dig som lockas av naturen finner du det mysiga grönområdet Keillers park och Ramberget med en av stans bästa utsikter.

Kontakta mäklaren för mer information!
På G!
Först på Boneo
Centrala Hisingen, Göteborg

Kvillegatan 11

Lägenhet3 rok65

Mäklare

Mäklare

AwardBadge
Årets Mäklarkedja 2024, 2025
Vinnare av Boneo Awards
banner

Tjänster

Bolån

Räkna på bolån för Kvillegatan 11
nordeaAlltid personlig ränta på ditt bolånRäkna här
Jämför bolån från olika banker!
lanekollPersonlig hjälp hela vägen hem!Räkna direkt!
Bostaden du tittar på matchar med 2 755 personer i BoneoMatch™

Hur många vill köpa din bostad?

Vi matchar din bostad mot över 500 000 köpsugna personer som går på visningar just nu.

Loading...
På G!
Först på Boneo
Centrala Hisingen, Göteborg

Kvillegatan 11

Lägenhet3 rok65

Mäklare

Mäklare

AwardBadge
Årets Mäklarkedja 2024, 2025
Vinnare av Boneo Awards