linkedin pixel
Pålsjö, Helsingborg

Kantorsgatan 22

Lägenhet3 rok85

Fakta

  • Pris2 995 000 kr
  • BoendetypLägenhet
  • Rum3 rok
  • Boyta85
  • UpplåtelseformBostadsrätt
  • Pris/m² 35 235 kr/m²
  • Byggnadsår2019
  • Dagar på Boneojuni 2025
  • Våning 1 av 6
  • HissJa
  • Månadsavgift5 294 kr

Beskrivning

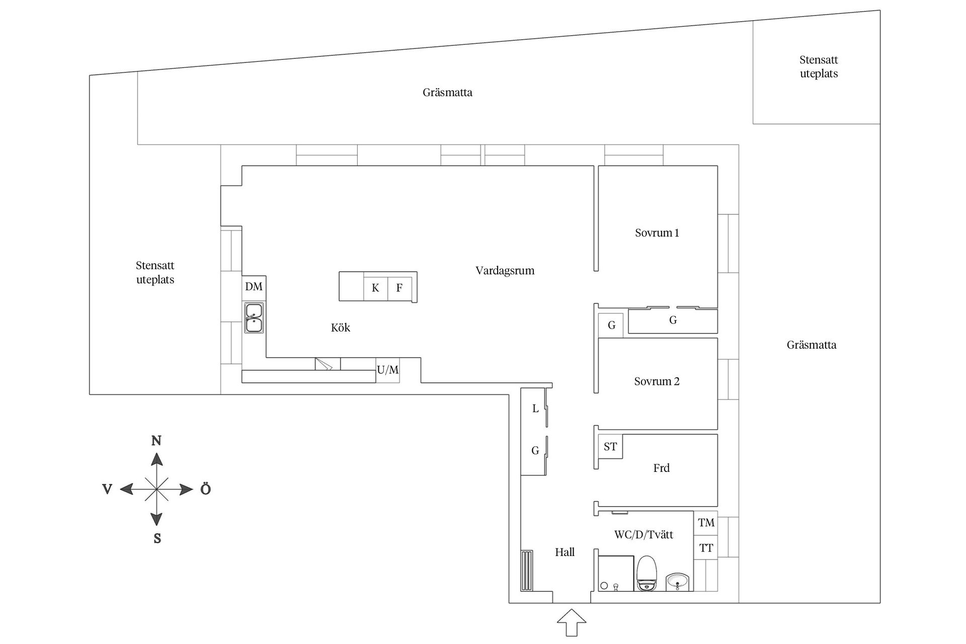
Välkommen till denna ljusa och rymliga markplanslägenhet på Kantorsgatan 22 i Helsingborg! Denna trerummare om 85 kvm erbjuder en öppen planlösning och ett härligt ljusinsläpp från fönster i tre vädersträck.

En av de stora fördelarna med bostaden är den stora, privata gräsmattan på 132 kvm som går runt hela lägenheten och är delvis stensatt. Här finns gott om plats för både avkoppling och sociala tillställningar, och du kan njuta av soliga dagar i total privathet.

Den moderna och stilrena inredningen är perfekt för den som söker ett ljust och luftigt hem. Köket är öppet mot vardagsrummet och skapar en inbjudande yta för umgänge. Lägenheten erbjuder även två bra sovrum, där det ena idag används som kontor, vilket gör det till ett flexibelt boende för både familjen eller paret som behöver extra utrymme.

Läget är också något utöver det vanliga – beläget i ett lantligt, skogsnära område vid Pålsjö Skog, samtidigt som du har ett bekvämt avstånd till stadens alla bekvämligheter. Den grönskande, insynsskyddade vyn påminner om närheten till naturen och ger ett lugn till vardagen.

Bostaden har en välplanerad yta med bland annat ett stort badrum med separat tvättavdelning, samt en stor hall med god förvaring. Förrådet om 4 kvm, praktiskt beläget intill lägenhetsdörren, ger extra utrymme för förvaring.

För den som har bil eller cykel finns bekväma parkeringsmöjligheter på fastigheten. Vägen genom skogen tar dig snabbt till både centrum och stranden, vilket ger en fin start på dagen. I området finns även bra service med en välsorterad ICA-butik, vårdcentral, apotek, samt omtyckta skolor och förskolor. Från närliggande Maria Station går både stadsbussar och tåg.

Välkommen på visning och upptäck denna fantastiska bostad för livsnjutaren!

Visningar

Mäklare

Gabriel Rolland Andersson
Ansvarig mäklare
Gabriel Rolland Andersson
AwardBadge
Årets Mäklarkedja 2024
Vinnare av Boneo Awards
Bjurfors Helsingborg Norr
Drottninggatan 96, Helsingborg
Agency
Agency
AwardBadge
Årets Mäklarkedja 2024
Vinnare av Boneo Awards
banner

Planritning

Tjänster

Bolån

Räkna på bolån för Kantorsgatan 22
nordeaAlltid personlig ränta på ditt bolånRäkna här
Jämför bolån från olika banker!
lanekollPersonlig hjälp hela vägen hem!Räkna direkt!

Hur många vill köpa din bostad?

Med BoneoMatch™ ser du hur många som letar efter en liknande bostad i ditt område.

Läs mer
Loading...