linkedin pixel
Fullskärm

Vi har flest På G-bostäder

Hitta dem här, först

externalLinkIconAlla bilder
På G!
Först på Boneo
Lägenhet2 rok38

Fakta om bostaden

  • BoendetypLägenhet
  • Antal rum2 rok
  • Boyta38
  • UpplåtelseformBostadsrätt
  • Byggnadsår2016
  • Våning 1 av 6
  • HissJa
  • Avgift till föreningen2 146 kr/mån

Beskrivning

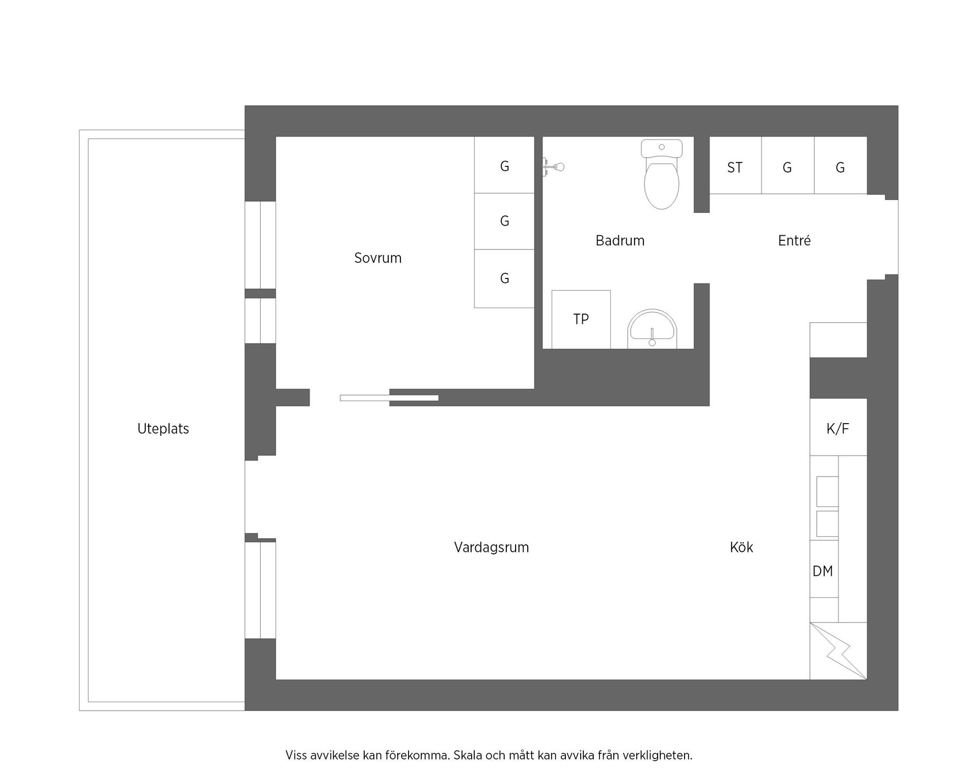
Välkommen till denna fantastiska tvårumslägenhet om 38 kvm där varje kvadratmeter är noggrant planerad för att skapa ett rymligt, funktionellt och trivsamt hem. Här bor du smart och yteffektivt utan att tumma på komfort och stil!

Lägenheten imponerar med sin genomtänkta planlösning, där nuvarande ägare har skapat ett separat sovrum genom att dela av vardagsrummet med skjutdörrar. Trots detta bibehåller bostaden en luftig och social känsla tack vare den öppna planlösningen som knyter samman vardagsrum och kök. Här får du en perfekt balans mellan praktisk funktion och trivsam atmosfär.

Badrummet är helkaklat och i mycket gott skick, vilket ger en fräsch och modern känsla. Här finns allt du behöver för ett bekvämt boende.

Bostaden är bekvämt belägen på bottenplan och har en härlig altan om ca 7 kvm – en idealisk plats för att njuta av morgonkaffet eller umgås med vänner under ljumma sommarkvällar. En lugn och mysig oas där du kan koppla av i en privat och grönskande miljö.

Attraktivt område med suveräna kommunikationer
Du bor i ett tryggt och populärt område med närhet till matbutiker, restauranger, apotek och annan service. Tunnelbanan ligger bara ett stenkast bort och tar dig snabbt till centrala Stockholm. För extra flexibilitet finns även smidiga bussförbindelser samt fina cykelvägar som gör det enkelt att ta sig runt i området och vidare genom staden.

Denna bostad passar perfekt för förstagångsköparen, paret eller den som söker ett välplanerat och hemtrevligt boende i ett populärt område.

I Brf Laboratoriet bor du med extra komfort och bekvämlighet!
Efter en lång dag på jobbet eller en hektisk vecka kan du koppla av i föreningens gemensamma spabad och bastu, belägna i föreningsbyggnaden. Här kan du njuta av en lugn stund, varva ner och ladda om – allt för att skapa en trivsam och harmonisk vardag.
Denna bostad är registrerad som en 1:a men disponeras idag som en 2:a.

I denna förening har man tänkt på allt för att du ska trivas i ditt hem!

Missa inte denna chans – varmt välkommen på visning!
På G!
Först på Boneo
Västra Skogen/ Huvudsta, Solna

Arvid Tydéns allé 2

Lägenhet2 rok38

Mäklare

banner

Tjänster

Bolån

Räkna på bolån för Arvid Tydéns allé 2
nordeaAlltid personlig ränta på ditt bolånRäkna här
Jämför bolån från olika banker!
lanekollPersonlig hjälp hela vägen hem!Räkna direkt!
Bostaden du tittar på matchar med 121 personer i BoneoMatch™

Hur många vill köpa din bostad?

Vi matchar din bostad mot över 500 000 köpsugna personer som går på visningar just nu.

Loading...
På G!
Först på Boneo
Västra Skogen/ Huvudsta, Solna

Arvid Tydéns allé 2

Lägenhet2 rok38

Mäklare