linkedin pixel
Lorensberg, Göteborg

Hedåsgatan 4

Lägenhet3,5 rok95

Fakta

  • Pris8 500 000 kr
  • BoendetypLägenhet
  • Rum3,5 rok
  • Boyta95
  • UpplåtelseformBostadsrätt
  • Pris/m² 89 474 kr/m²
  • Byggnadsår1914
  • Dagar på Boneoapril 2025
  • Våning 6 av 6
  • HissJa
  • Månadsavgift5 044 kr

Beskrivning

Uppe på våningens stora takterrass är utsikten öppen. Kvällssolen glöder i takåsarna, du ser ner på Hedens gröna planer och ända bort till höjderna vid Keillers park på andra sidan city. Domkyrkans torn sticker upp ur grönskan och bortom gatans andra ände snurrar attraktionerna på Liseberg. Innanför glaspartiet öppnar sig ekgolvet över de öppna och fria sällskapsytorna. Känslan av en internationell takvåning anpassad till ett aktivt innerstadsliv är tydlig.

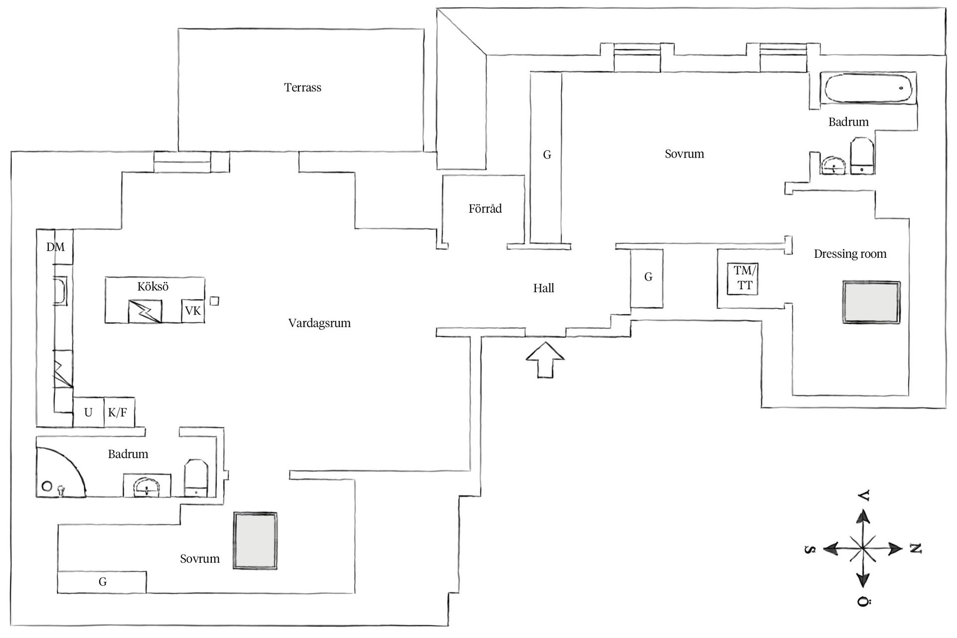
Den ljusa våningen är om 95 kvm och 3,5 rum. Intrycket domineras av de ljusa sällskapsytorna i öppen planlösning med köket. Allt är inramat av sobra material och rena arkitekturlinjer. En slags diskret exklusivitet vilar över de ljusa ytorna. Bakom ett stort glasparti öppnar sig en sällsynt stor takterrass. Köket är i en minimalistisk ton signerat Poggenpohl med köksö och integrerade vitvaror från Gaggenau. Från hallen överraskar våningen med en smakfull master bedroom-svit med direkt access till sobert badrum och platsbyggt dressing room. Uppe i våningens lugn är det svårt att förstå att du befinner dig mitt i city. Ett par kvarter bort, och ungefär lika många minuter, sträcker sig evenemangsstråket och åt andra hållet står du på Avenyn efter bara en kort promenad. Efter ytterligare några minuters vandring omfamnas du av tystnaden i Vasaparkens grönska.

Mäklare

Jonas Rutberg
Ansvarig mäklare
AwardBadge
Årets Mäklarkontor 2024, Årets Mäklarkedja 2024
Vinnare av Boneo Awards
Bjurfors Göteborg City
Engelbrektsgatan 30, GÖTEBORG
Agency
Agency
AwardBadge
Årets Mäklarkontor 2024, Årets Mäklarkedja 2024
Vinnare av Boneo Awards
banner

Planritning

Tjänster

Bolån

Räkna på bolån för Hedåsgatan 4
nordeaAlltid personlig ränta på ditt bolånRäkna här
Jämför bolån från olika banker!
lanekollPersonlig hjälp hela vägen hem!Räkna direkt!
Bostaden du tittar på matchar med 360 personer i BoneoMatch™

Hur många vill köpa din bostad?

Vi matchar din bostad mot över 500 000 köpsugna personer som går på visningar just nu.

Loading...