linkedin pixel
Tillbaka till sökresultatet
Fullskärm
Fullskärm
Tillbaka till sökresultatet
externalLinkIconAlla bilder
Lägenhet3 rok52 + 12

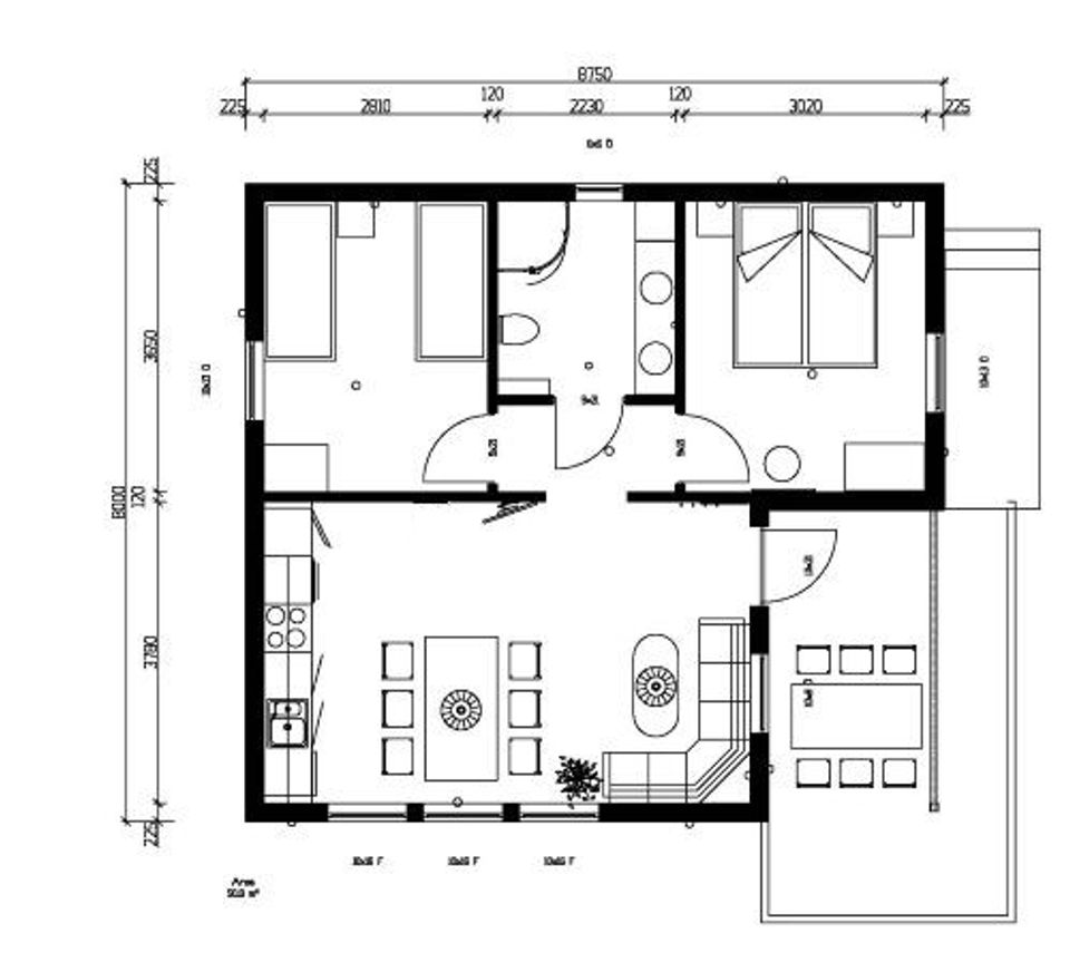
Fakta om bostaden

  • Pris1 495 000 kr
  • BoendetypLägenhet
  • Antal rum3 rok
  • Boyta52
  • UpplåtelseformBostadsrätt
  • Biarea12
  • Kvadratmeterpris (kr/m²) 28 750 kr/m²
  • Byggnadsår2018
  • Dagar på Boneoapril 2025
  • Våning 1 av 1
  • HissNej
  • Avgift till föreningen2 989 kr/mån

Beskrivning

NYTT PRIS! Välkomna till en trevlig bostadsrätt om tre rum och kök i det uppskattade området kring Fröjel Resort. Fullt utrustat för permanentboende och med en bra och modern planlösning. Två sovrum, stort vardagsrum i öppen planlösning mot kök där det även är öppet upp till nock, samt ett helkaklat badrum med dusch och tvättmaskin. Genomgående golvvärme i hela bostadshuset som även är uppfört i slitstarkt kvalitetsmateriel. Ett bra semesterboende likväl som ett trevligt och enkelt seniorboende då bostadsrättsföreningen sköter det yttre underhållet.

I övertagandet ingår ett basmöblemang med fyra sängar, bäddsoffa, bord, matgrupp samt husgeråd mm. så stugan är redo att brukas direkt! Till bostadsrätten hör även ett yttre förråd som ligger i anslutning till den egna parkeringen.

Från stugorna har man endast en kort promenad till en av Gotlands vackraste kuststräckor med utsikt mot Karlsöarna. Området har länge varit en attraktiv turistort och under sommaren blommar verksamheter upp. Flera restauranger i området är öppna året runt.

Varmt välkomna på visning!
Fröjel, Gotland

Fröjel Balders väg 10A

Lägenhet3 rok52 + 12

Mäklare

banner

Tjänster

Bolån

Räkna på bolån för Fröjel Balders väg 10A
nordeaAlltid personlig ränta på ditt bolånRäkna här
Jämför bolån från olika banker!
lanekollPersonlig hjälp hela vägen hem!Räkna direkt!

Hur många vill köpa din bostad?

Med BoneoMatch™ ser du hur många som letar efter en liknande bostad i ditt område.

Läs mer
Loading...
Fröjel, Gotland

Fröjel Balders väg 10A

Lägenhet3 rok52 + 12

Mäklare