linkedin pixel
Baggeby, Lidingö

Baggebytorget 5

Lägenhet2 rok58

Fakta

  • Pris2 995 000 kr
  • BoendetypLägenhet
  • Rum2 rok
  • Boyta58
  • UpplåtelseformBostadsrätt
  • Pris/m² 51 638 kr/m²
  • Byggnadsår1953
  • Dagar på Boneoaugusti 2025
  • Våning 3 av 3
  • HissNej
  • Månadsavgift3 978 kr

Beskrivning

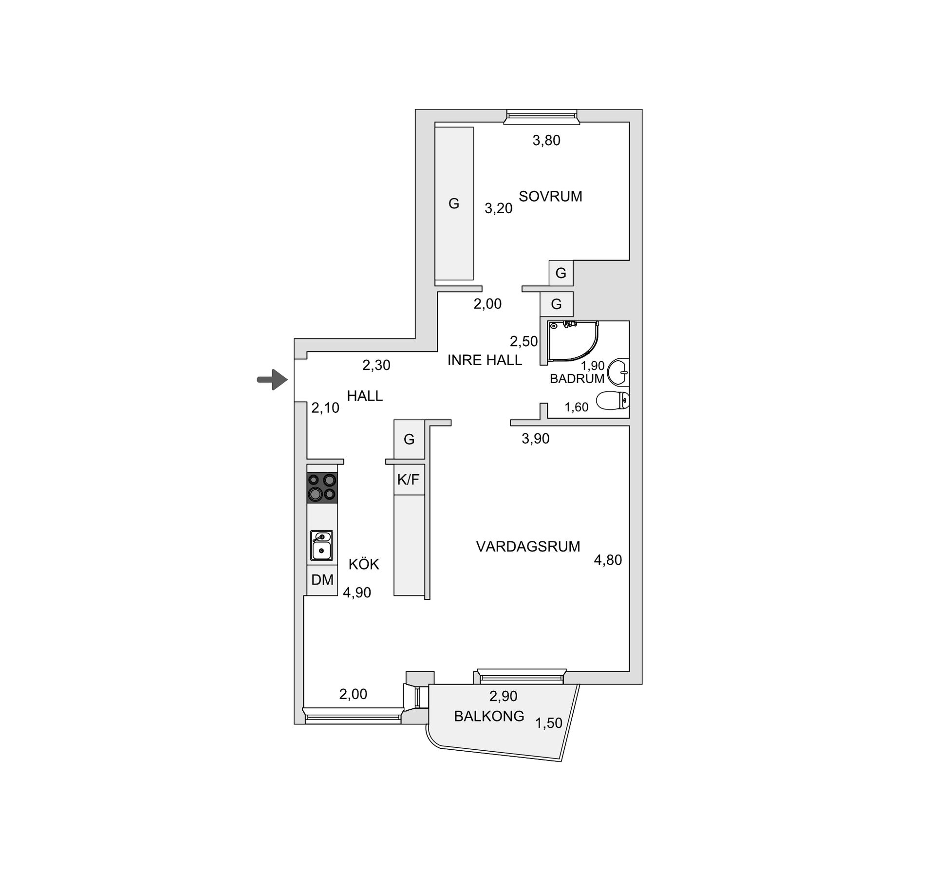
Nytt pris! Välkommen till en trivsam och genomtänkt tvåa med ett högt och fritt läge i populära Baggeby – ett hem som kombinerar funktion och komfort med närhet till både natur och stadspuls. Här bor du högst upp i huset med fri utsikt, i ett privat och ljust boende med genomgående bra skick. Planlösningen är smart och inbjudande med ett generöst kök där du enkelt får plats med ett större matbord. Det luftiga vardagsrummet ligger i direkt anslutning till köket och leder ut till en solig västerbalkong – perfekt för eftermiddagskaffet eller en middag i kvällssolen.

Det rymliga sovrummet har rikligt med förvaring och plats för dubbelsäng, medan det stambytta badrummet är helkaklat och förberett för tvättmaskin. Lägenheten disponerar dessutom både vinds- och källarförråd samt tillgång till föreningens parkeringsplatser. För den som önskar öppnare ytor finns möjlighet att ta ned väggen mellan kök och vardagsrum, samt den som önskar nyttja lägenheten som en 3:a kan ett extrarum byggas invid köket.

Här bor du i ett grönskande centralt område med fina promenad- och joggingstråk längs med vattnet. Sola på klipporna i Bodal/Baggeby eller vid Larsberg. För den som föredrar motionsslingor så finns Stockby motionsgård på cykelavstånd. För den sportintresserade finns Gångsätrahallen i närheten med både simhall, idrottshall och gym. I närområdet finns SATS, Fitness24seven och Nordic Wellness. Ypperliga kommunikationer med Lidingöbanans station Bodal och Baggeby och buss som avgår från Bodalsvägen. På bara några få minuter tar du dig snabbt och enkelt till Ropsten eller Lidingö Centrum med dess utbud av butiker och service. Med bil tar det bara ett par minuter till Ropsten och drygt 10 minuter till Stockholms innerstad. Närmaste mataffärer finns på promenadavstånd och består av Tempo vid Baggeby torg, i närområdet finns Willys och Ica Kvantum. Det finns även flera restauranger på Baggeby torget. I närområdet finns många förskolor och skolor.

Kontakta ansvarig mäklare, Wilhelm Hammarskiöld, vid frågor om bostaden och för att boka in dig på visning. Välkommen!

Mäklare

Wilhelm Hammarskiöld
Ansvarig mäklare
Wilhelm Hammarskiöld
HusmanHagberg Lidingö
Agavägen 58, Lidingö
Agency
Agency
banner

Planritning

Tjänster

Bolån

Räkna på bolån för Baggebytorget 5
nordeaAlltid personlig ränta på ditt bolånRäkna här
Jämför bolån från olika banker!
lanekollPersonlig hjälp hela vägen hem!Räkna direkt!
Bostaden du tittar på matchar med 452 personer i BoneoMatch™

Hur många vill köpa din bostad?

Vi matchar din bostad mot över 500 000 köpsugna personer som går på visningar just nu.

Loading...